Yopa says ..
OFFERED WITH NO CHAIN IS THIS IDEAL INVESTMENT OPPORTUNITY WITH POTENTIAL TO EXTEND OR FIRST TIME BUY CLOSE TO DERBY CITY CENTRE. All amenities are an easy walk away including shops, bus and rail links and surrounded by excellent road networks.
Property Oracle says ..
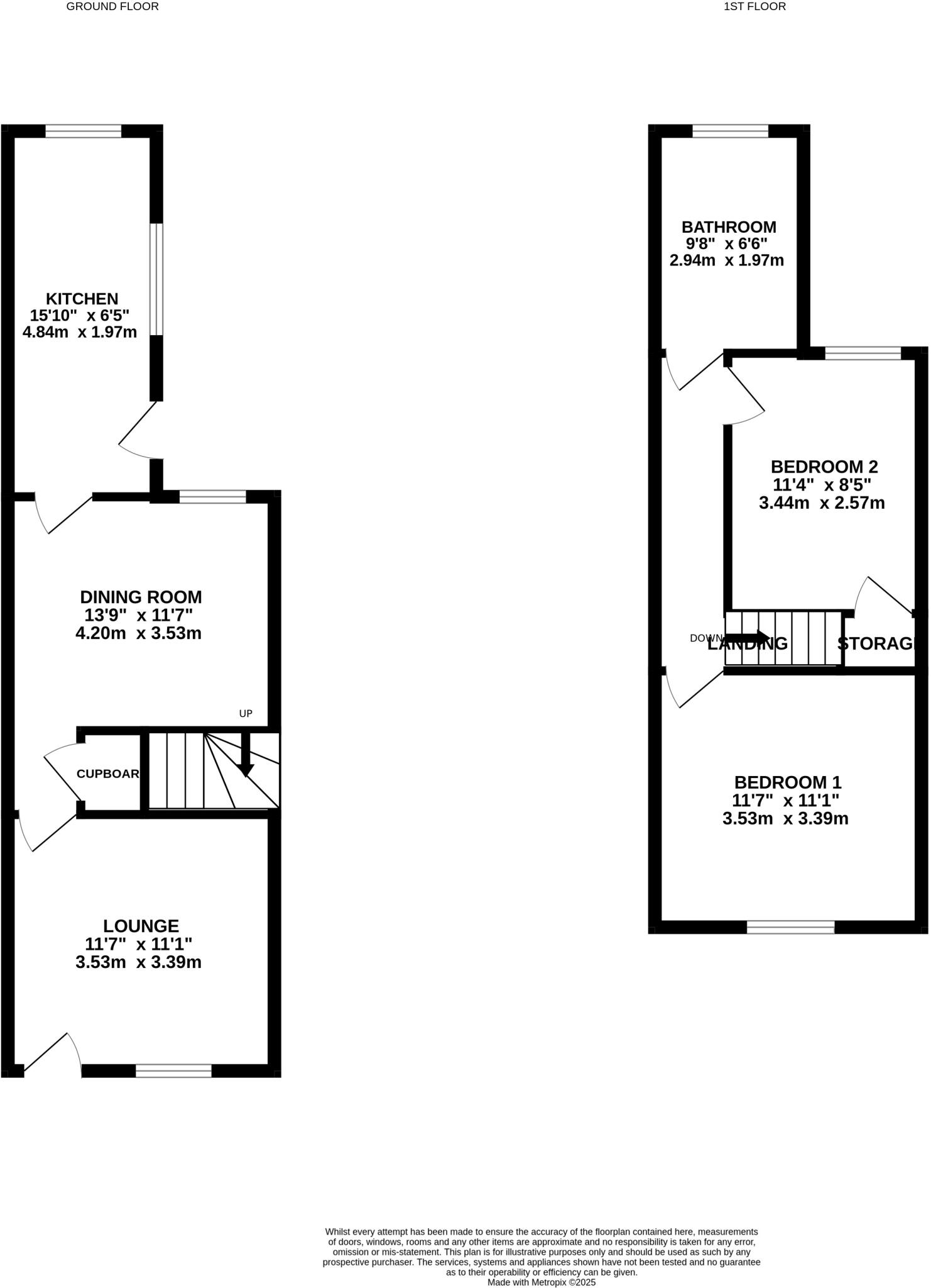
This is a two-bedroom terraced house on Spring Street, Abbey, Derby. The property is listed with Yopa for £130,000. It features a garden and is located within a reasonable distance of local amenities, including Becket Primary School and Derby train station. While the property requires some modernisation, it presents a good opportunity for first-time buyers or investors. The price is in line with the local market, considering the condition and features.
Therefore, we give this property 6 / 10. *Disclaimer: This is our option and does constitute a recommendation or financial advice. Do your own research. *
- Price
- 7
- Condition
- 5
- Location
- 7
- Land
- 7
- Bedrooms
- 2
- Bathrooms
- 1
- Sqft (est)
- 676.94
The heatmap indicates the level of crime in the area. The color of the heatmap indicates the crime severity and recency.
Metrics Year-on-Year
- Average area value
- 350,323.00 £Decreased by 1.18 %
- Est sale value
- 291,761.14 £Increased by 20.73 %
- Average area rental value
- 1,334.00 £/moDecreased by 2.49 %
- Est letting value
- 676.94 £/moUnchanged by 0.00 %
- Est rental Yield
- 4.57 %Decreased by 1.30 %
- Crime Rate
- 6.00 %Unchanged by 0.00 %
Agent Activity
Yopa created the listing.
Nearby Schools
| Name | Type | Ofsted | Distance |
|---|---|---|---|
| Becket Primary School | Community School | Good | 0.15 KM |
| Becket Children'S Centre | Children's Centre | 0.22 KM | |
| St Joseph'S Catholic Voluntary Academy | Academy Converter | 0.61 KM | |
| Babington Children'S Centre | Children's Centre | 0.67 KM | |
| Firs Primary School | Academy Sponsor Led | 0.68 KM |
Images
Nearby Streets
| Name | Average Price | Average Sqft | Distance |
|---|---|---|---|
| Arbor Close | £ 119,950 | 0 | 0.00 KM |
| Summerbrook Court | £ 120,000 | 0 | 0.00 KM |
| Boyer Street | £ 0 | 0 | 0.00 KM |
| Boyer Walk | £ 0 | 0 | 0.00 KM |
| Spa Court | £ 0 | 0 | 0.00 KM |
Nearby Transport
| Name | NLC | TLC | Distance |
|---|---|---|---|
| Derby | 1823 | DBY | 2.49 KM |
| Peartree | 1687 | PEA | 2.61 KM |
| Duffield | 1691 | DFI | 7.97 KM |
| Spondon | 1699 | SPO | 8.29 KM |
Nearby Listings
| Address | Price | Type | Score | Distance |
|---|---|---|---|---|
| Spring Street, Derby, DE22 | £ 130,000 | BUY | 6 / 10 | 0.00 KM |
| Spring Street, Derby | £ 110,000 | BUY | 5 / 10 | 0.03 KM |
| Pelham Street, Derby | £ 125,000 | BUY | 4 / 10 | 0.04 KM |
| Pelham Street, Derby, Derbyshire, DE22 | £ 125,000 | BUY | 5 / 10 | 0.04 KM |
| Sun Street, Derby, Derbyshire, DE22 3UL | £ 165,000 | BUY | 6 / 10 | 0.06 KM |
Nearby Properties
| Address | Price | Distance |
|---|---|---|
| 23 Spring Street | £ 54,950 | 0.01 KM |
| 42 Spring Street | £ 78,000 | 0.01 KM |
| 50 Spring Street | £ 95,000 | 0.01 KM |
| 21 Spring Street | £ 128,000 | 0.01 KM |
| 47 Spring Street | £ 33,000 | 0.01 KM |