Stanley Lodge, Epsom
ST

Stanley Lodge, Epsom

By Stratton & King Ltd

£ 600,000

Reviews

3 out of 5 stars

Stratton & King Ltd says ..

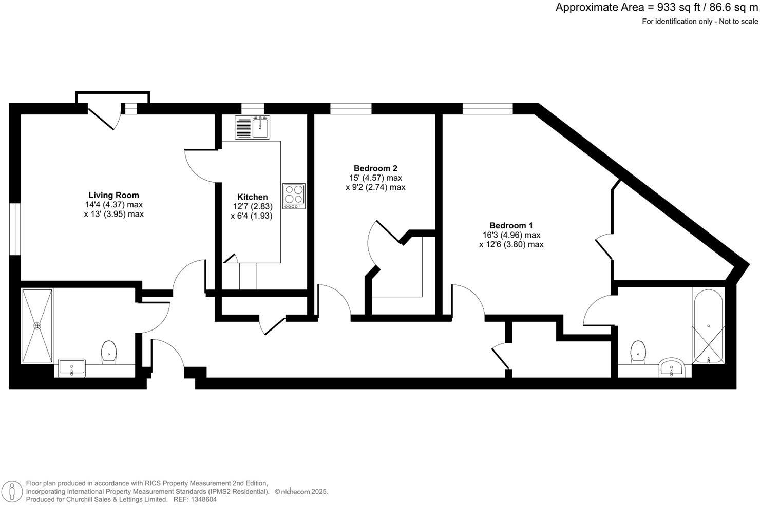
DRAFT PARTICULARS - Awaiting verification from the seller **TWO BEDROOM GROUND FLOOR RETIREMENT APARTMENT WITH JULIET BALCONY** Situated in a fantastic position in the development is this delightful two bedroom apartment which benefits from a Juliet Balcony overlooking the commu...

Property Oracle says ..

Therefore, we give this property 6 / 10. *Disclaimer: This is our option and does constitute a recommendation or financial advice. Do your own research. *

Price
4
Condition
9
Location
7
Land
7
Bedrooms
2
Bathrooms
2
Sqft (est)
608.03

The heatmap indicates the level of crime in the area. The color of the heatmap indicates the crime severity and recency.

Metrics Year-on-Year

Average area value
266,389.00 £
Decreased by 21.19 %
from 338,026.00 £
Est sale value
221,322.92 £
Decreased by 6.43 %
from 236,523.67 £
Average area rental value
792.00 £/mo
Decreased by 33.45 %
from 1,190.00 £/mo
Est letting value
608.03 £/mo
Unchanged by 0.00 %
from 608.03 £/mo
Est rental Yield
3.57 %
Decreased by 15.40 %
from 4.22 %
Crime Rate
3.00 %
Unchanged by 0.00 %
from 3.00 %

Agent Activity

  • Stratton & King Ltd created the listing.

Nearby Schools

NameTypeOfstedDistance
Epsom Downs Sure Start Children'S CentreChildren's Centre0.44 KM
Epsom Downs Primary School And Children'S CentreCommunity SchoolGood0.47 KM
The Surrey Teaching CentrePupil Referral UnitOutstanding1.85 KM
The Children'S Trust SchoolNon-maintained Special SchoolGood1.85 KM
Warren Mead Infant SchoolAcademy Converter1.87 KM

Images

1348604-11-68bef67e497fb.jpg Owners Lounge.jpg 1348604-4-68bef6098f272.jpg 1348604-9-68bef65d7bcfc.jpg 1348604-8-68bef64d071a3.jpg 1348604-3-68bef6056620d.jpg 1348604-18-68bef711ecae9.jpg 1348604-17-68bef70275c4c.jpg 1348604-16-68bef6f24da49.jpg 1348604-14-68bef6d496011.jpg 1348604-5-68bef60d43a59.jpg 1348604-10-68bef6690df15.jpg 1348604-6-68bef61bc79c2.jpg 1348604-1-68bef5fdbd4e0.jpg 1348604-15-68bef6e66de16.jpg 1348604-13-68bef6b0e9e14.jpg Owners Lodge 2.jpg

Nearby Streets

NameAverage PriceAverage SqftDistance
Chapel Grove £ 000.00 KM
Mallow Close £ 000.00 KM
Broad Walk £ 000.00 KM
Troy Close £ 000.00 KM
Kemnore Close £ 000.00 KM

Nearby Transport

NameNLCTLCDistance
Tattenham Corner5387TAT0.70 KM
Epsom Downs5361EPD1.75 KM
Tadworth5386TAD1.84 KM
Kingswood5366KND3.15 KM
Banstead5348BAD3.48 KM

Nearby Listings

AddressPriceTypeScoreDistance
Stanley Lodge, Epsom £ 600,000BUY6 / 100.00 KM
Stanley Lodge, Epsom £ 415,000BUY7 / 100.02 KM
Great Tattenhams, Epsom £ 424,950BUY6 / 100.03 KM
Great Tattenhams, Epsom £ 425,000BUY6 / 100.06 KM
Stanley Lodge, Epsom £ 599,950BUY6 / 100.06 KM

Nearby Properties

AddressPriceDistance
4 Straight Mile Place £ 610,0000.08 KM
6 Merland Rise £ 460,0000.13 KM
34 Merland Rise £ 514,0000.13 KM
10 Merland Rise £ 499,9990.13 KM
12 Merland Rise £ 639,9500.13 KM