SE
Benner Lane, West End, Woking, Surrey, GU24
By Seymours Estate Agents
£ 685,000
Reviews
3 out of 5 stars
Seymours Estate Agents says ..
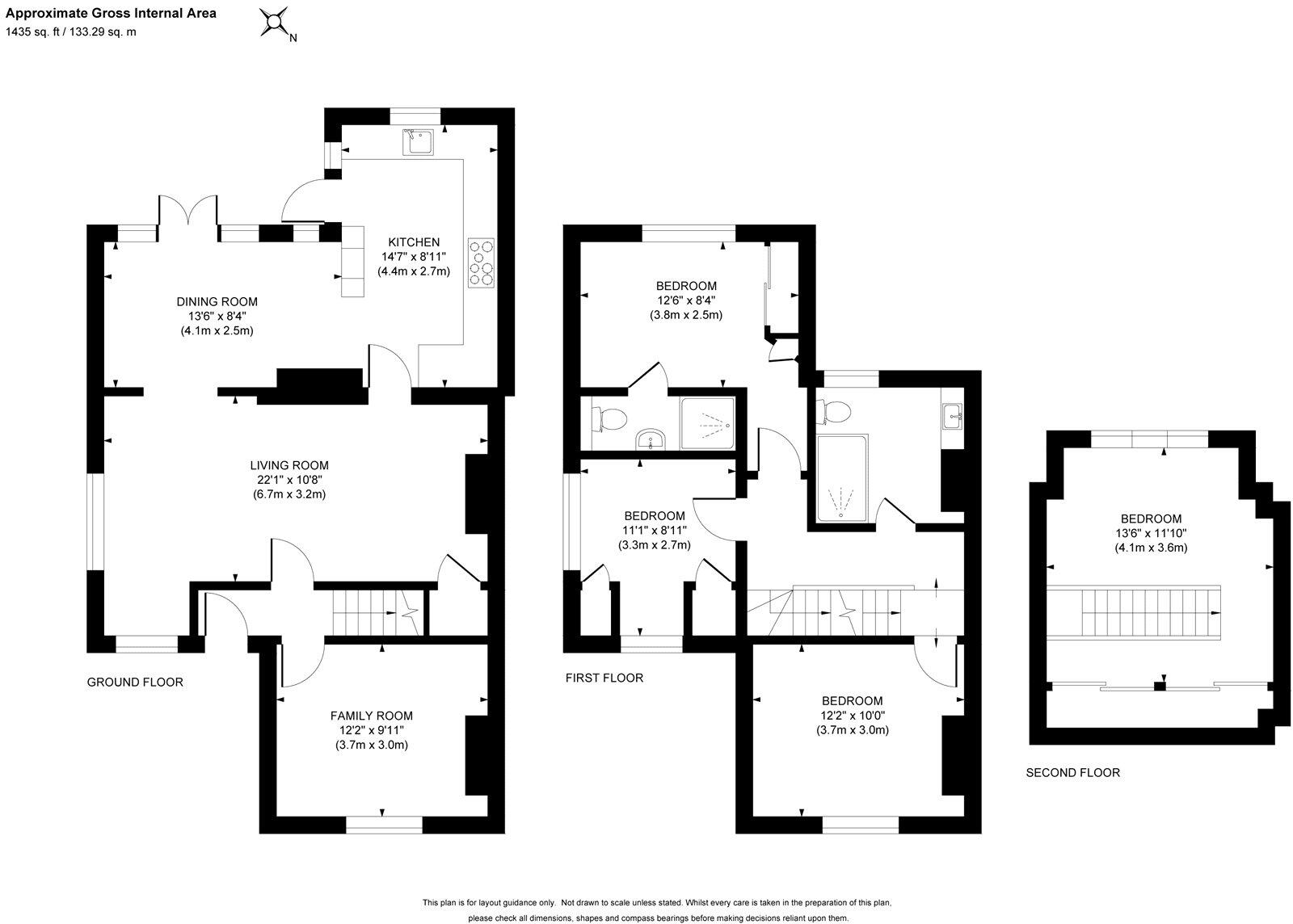
Every now and then a very special home comes to the market and captures the imagination like no other. This extended character semi detached property very much falls into that category with style and character in abundance. The property falls approximately 890 metres from Gordons school and is no...
Property Oracle says ..
Therefore, we give this property 7 / 10. *Disclaimer: This is our option and does constitute a recommendation or financial advice. Do your own research. *
- Price
- 7
- Condition
- 8
- Location
- 8
- Land
- 7
- Bedrooms
- 4
- Bathrooms
- 2
- Sqft (est)
- 1,085.21
The heatmap indicates the level of crime in the area. The color of the heatmap indicates the crime severity and recency.
Metrics Year-on-Year
- Average area value
- 644,188.00 £Increased by 3.54 %
- Est sale value
- 460,129.04 £Decreased by 26.64 %
- Average area rental value
- 2,466.00 £/moDecreased by 21.84 %
- Est letting value
- 1,085.21 £/moDecreased by 50.00 %
- Est rental Yield
- 4.59 %Decreased by 24.63 %
- Crime Rate
- 11.00 %Unchanged by 0.00 %
from 622,146.00 £
from 627,251.38 £
from 3,155.00 £/mo
from 2,170.42 £/mo
from 6.09 %
from 11.00 %
Agent Activity
Seymours Estate Agents created the listing.
Nearby Schools
| Name | Type | Ofsted | Distance |
|---|---|---|---|
| Holy Trinity Cofe Primary School | Academy Converter | 0.16 KM | |
| Gordon'S School | Academy Converter | Outstanding | 1.39 KM |
| Bisley Cofe Primary School | Voluntary Aided School | Good | 1.67 KM |
| Knaphill School | Academy Converter | 2.81 KM | |
| Valley End Cofe Infant School | Voluntary Controlled School | Outstanding | 2.83 KM |
Images
Nearby Streets
| Name | Average Price | Average Sqft | Distance |
|---|---|---|---|
| Sarsen Court | £ 625,000 | 0 | 0.00 KM |
| Queens Place | £ 0 | 0 | 0.00 KM |
| Iris Drive | £ 0 | 0 | 0.00 KM |
| Strawberry Fields | £ 925,000 | 0 | 0.00 KM |
| Halebourne Lane | £ 3,000,000 | 0 | 0.00 KM |
Nearby Transport
| Name | NLC | TLC | Distance |
|---|---|---|---|
| Brookwood | 5687 | BKO | 3.98 KM |
| Sunningdale | 5671 | SNG | 5.84 KM |
| Bagshot | 5681 | BAG | 6.58 KM |
| Longcross | 5674 | LNG | 6.75 KM |
| Worplesdon | 5686 | WPL | 8.05 KM |
Nearby Listings
| Address | Price | Type | Score | Distance |
|---|---|---|---|---|
| Benner Lane, West End, Woking, Surrey, GU24 | £ 685,000 | BUY | 7 / 10 | 0.00 KM |
| Benner Lane, West End, Woking, Surrey, GU24 | £ 850,000 | BUY | Unknown | 0.00 KM |
| WEST END | £ 775,000 | BUY | Unknown | 0.01 KM |
| Benner Lane, West End, Woking, GU24 | £ 635,000 | BUY | Unknown | 0.01 KM |
| Benner Lane, West End, Woking, Surrey, GU24 | £ 925,000 | BUY | 7 / 10 | 0.11 KM |
Nearby Properties
| Address | Price | Distance |
|---|---|---|
| 36 Benner Lane | £ 1,090,000 | 0.00 KM |
| 9 Benner Lane | £ 473,000 | 0.00 KM |
| 1a Benner Lane | £ 688,000 | 0.00 KM |
| 5 Benner Lane | £ 250,000 | 0.00 KM |
| 21 Benner Lane | £ 374,950 | 0.00 KM |