ST
Whitegate Road, Brightlingsea
By Stoneridge Estates
£ 330,000
Reviews
3 out of 5 stars
Stoneridge Estates says ..
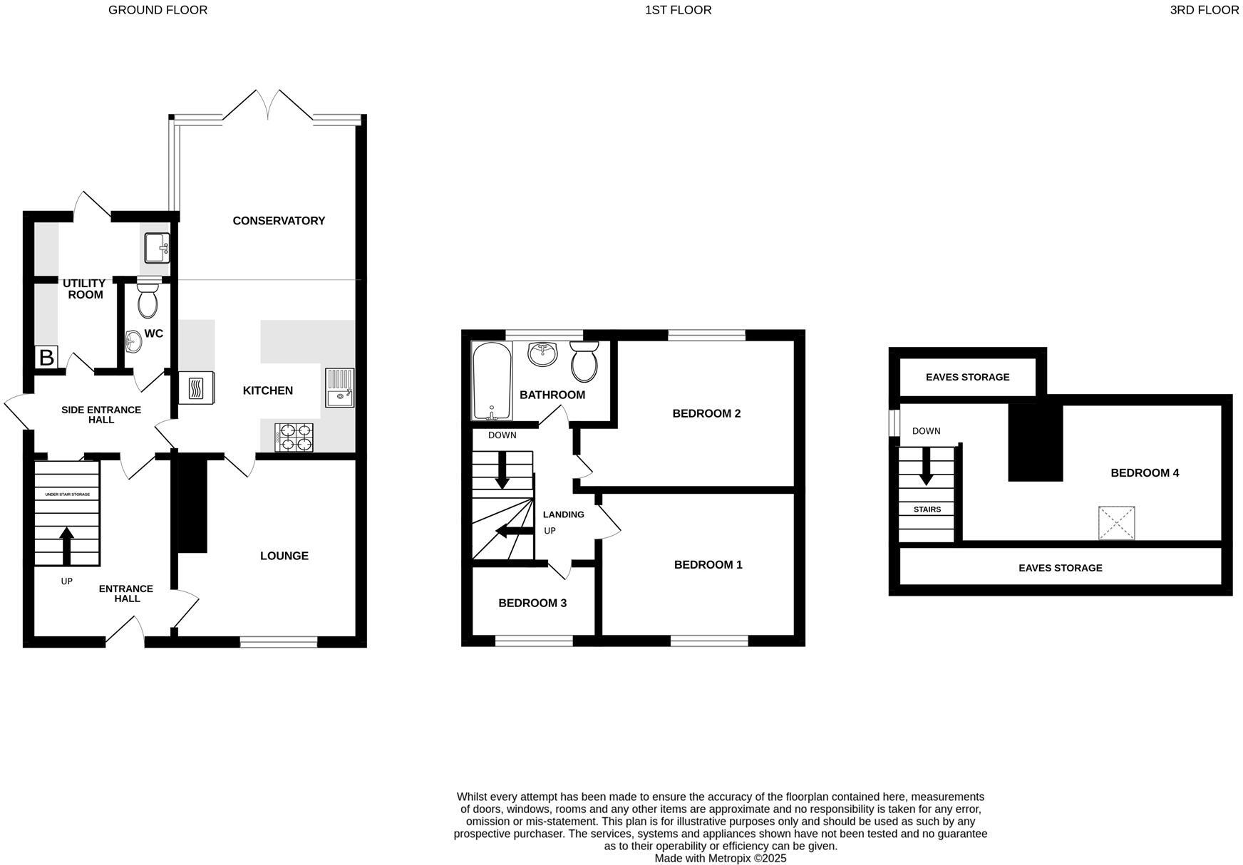
** GUIDE PRICE OF £330,000 - £340,000 ** Spacious 3/4 Bedroom Semi-Detached Home in a prime Brightlingsea location; nestled just a minutes walk from the popular Hurst Green, this well-presented semi-detached home offers generous living space, flexible accommodation, and a fantastic (cont.)
Property Oracle says ..
Therefore, we give this property 7 / 10. *Disclaimer: This is our option and does constitute a recommendation or financial advice. Do your own research. *
- Price
- 8
- Condition
- 7
- Location
- 7
- Land
- 7
- Bedrooms
- 4
- Bathrooms
- 1
- Sqft (est)
- 1,044.00
The heatmap indicates the level of crime in the area. The color of the heatmap indicates the crime severity and recency.
Metrics Year-on-Year
- Average area value
- 350,323.00 £Decreased by 1.18 %
- Est sale value
- 449,964.00 £Increased by 20.73 %
- Average area rental value
- 1,334.00 £/moDecreased by 2.49 %
- Est letting value
- 1,044.00 £/moUnchanged by 0.00 %
- Est rental Yield
- 4.57 %Decreased by 1.30 %
- Crime Rate
- 17.00 %Unchanged by 0.00 %
from 354,508.00 £
from 372,708.00 £
from 1,368.00 £/mo
from 1,044.00 £/mo
from 4.63 %
from 17.00 %
Agent Activity
Stoneridge Estates created the listing.
Nearby Schools
| Name | Type | Ofsted | Distance |
|---|---|---|---|
| Brightlingsea Primary School And Nursery | Community School | Requires improvement | 1.37 KM |
| Colne Community School And College (Secondary And 16 To 19 Provision) | Academy Converter | 1.72 KM | |
| St Osyth Church Of England Primary School | Academy Sponsor Led | Requires improvement | 5.45 KM |
| Great Bentley Primary School | Community School | Outstanding | 5.59 KM |
| Alresford Primary School | Community School | Good | 5.79 KM |
Images
Nearby Streets
| Name | Average Price | Average Sqft | Distance |
|---|---|---|---|
| Panell Place | £ 0 | 0 | 0.00 KM |
| Charles Road | £ 0 | 0 | 0.00 KM |
| Blind Lane | £ 0 | 0 | 0.00 KM |
| Shipyard Estate | £ 0 | 0 | 0.00 KM |
| Windsor Court | £ 0 | 0 | 0.00 KM |
Nearby Transport
| Name | NLC | TLC | Distance |
|---|---|---|---|
| Great Bentley | 6855 | GRB | 5.66 KM |
| Alresford (Essex) | 6847 | ALR | 6.23 KM |
| Wivenhoe | 6860 | WIV | 9.96 KM |
Nearby Listings
| Address | Price | Type | Score | Distance |
|---|---|---|---|---|
| Whitegate Road, Brightlingsea | £ 330,000 | BUY | 7 / 10 | 0.00 KM |
| Whitegate Road, Brightlingsea, Colchester, CO7 | £ 239,995 | BUY | Unknown | 0.01 KM |
| Whitegate Road, Brightlingsea CO7 | £ 295,000 | BUY | 6 / 10 | 0.04 KM |
| Kirkhurst Close, Brightlingsea | £ 495,000 | BUY | 7 / 10 | 0.08 KM |
| Kirkhurst Close, Brightlingsea, CO7 | £ 450,000 | BUY | 7 / 10 | 0.10 KM |
Nearby Properties
| Address | Price | Distance |
|---|---|---|
| 10 Whitegate Road | £ 98,000 | 0.00 KM |
| 41 Whitegate Road | £ 152,000 | 0.00 KM |
| 18 Whitegate Road | £ 167,000 | 0.00 KM |
| 14 Whitegate Road | £ 225,000 | 0.00 KM |
| 27 Whitegate Road | £ 194,000 | 0.00 KM |