North Wall says ..
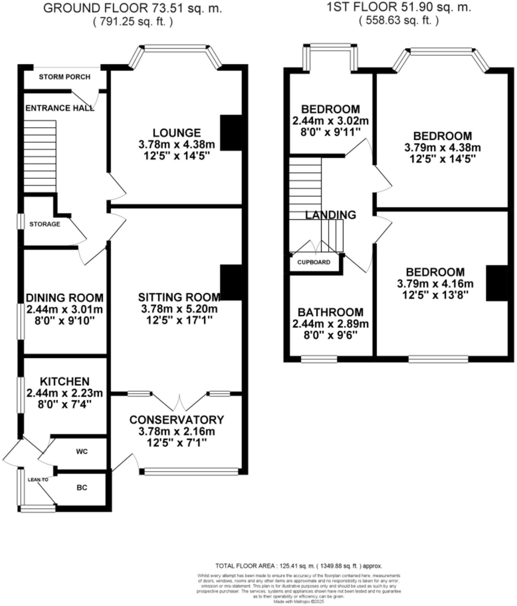
Rare opportunity to transform this 3-bed semi-detached in Crosby. Original features, 3 reception rooms with fireplaces, off-road parking, and private garden. Catchment for top schools.
Property Oracle says ..
Therefore, we give this property 6 / 10. *Disclaimer: This is our option and does constitute a recommendation or financial advice. Do your own research. *
- Price
- 8
- Condition
- 4
- Location
- 8
- Land
- 7
- Bedrooms
- 3
- Bathrooms
- 0
- Sqft (est)
- 1,117.94
The heatmap indicates the level of crime in the area. The color of the heatmap indicates the crime severity and recency.
Metrics Year-on-Year
- Average area value
- 387,843.00 £Increased by 1.47 %
- Est sale value
- 432,642.78 £Increased by 24.84 %
- Average area rental value
- 1,806.00 £/moIncreased by 16.22 %
- Est letting value
- 1,117.94 £/moUnchanged by 0.00 %
- Est rental Yield
- 5.59 %Increased by 14.55 %
- Crime Rate
- 8.00 %Unchanged by 0.00 %
from 382,238.00 £
from 346,561.40 £
from 1,554.00 £/mo
from 1,117.94 £/mo
from 4.88 %
from 8.00 %
Agent Activity
North Wall created the listing.
Nearby Schools
| Name | Type | Ofsted | Distance |
|---|---|---|---|
| St Luke'S Halsall Church Of England Primary School | Voluntary Aided School | Good | 0.38 KM |
| Sacred Heart Catholic College | Voluntary Aided School | Requires improvement | 0.55 KM |
| Crosby High School | Community Special School | Good | 0.58 KM |
| Merchant Taylors' Girls' School | Other Independent School | 0.61 KM | |
| St. Mary'S College | Other Independent School | 0.76 KM |
Images
Nearby Streets
| Name | Average Price | Average Sqft | Distance |
|---|---|---|---|
| Mayfair Avenue | £ 0 | 0 | 0.00 KM |
| Moor Lane | £ 0 | 0 | 0.00 KM |
| Third Avenue | £ 0 | 0 | 0.00 KM |
| Sycamore Avenue | £ 0 | 0 | 0.00 KM |
| Tudor Road | £ 340,000 | 0 | 0.00 KM |
Nearby Transport
| Name | NLC | TLC | Distance |
|---|---|---|---|
| Blundellsands And Crosby | 2123 | BLN | 1.87 KM |
| Waterloo (Merseyside) | 2133 | WLO | 2.24 KM |
| Hall Road | 2229 | HLR | 2.77 KM |
| Seaforth And Litherland | 2250 | SFL | 3.84 KM |
| Hightown | 2356 | HTO | 4.89 KM |
Nearby Listings
| Address | Price | Type | Score | Distance |
|---|---|---|---|---|
| Mayfair Avenue, Crosby, L23 | £ 340,000 | BUY | 6 / 10 | 0.00 KM |
| De Villiers Avenue, Crsoby | £ 350,000 | BUY | 6 / 10 | 0.09 KM |
| De Villiers Avenue, Liverpool, Merseyside, L23 | £ 380,000 | BUY | 6 / 10 | 0.10 KM |
| Mayfair Avenue, Crosby, Liverpool | £ 360,000 | BUY | 7 / 10 | 0.11 KM |
| De Villiers Avenue, Liverpool | £ 425,000 | BUY | 7 / 10 | 0.14 KM |
Nearby Properties
| Address | Price | Distance |
|---|---|---|
| 12 Mayfair Avenue | £ 375,000 | 0.03 KM |
| 2 Mayfair Avenue | £ 325,000 | 0.03 KM |
| 5 Mayfair Avenue | £ 280,000 | 0.03 KM |
| 6 Mayfair Avenue | £ 207,000 | 0.07 KM |
| 26 Mayfair Avenue | £ 270,000 | 0.07 KM |