100 Clapham Common North Side, London, Wandsworth, SW4 9SQ
By Landmark Auctions
£ 2,000,000
Reviews
3 out of 5 stars
Landmark Auctions says ..
Guide Price £2,000,000 For sale by online auction on 11/12/2025 12:01
Property Oracle says ..
This is a modern apartment located on Clapham Common North Side. The property boasts seven bedrooms and four bathrooms. The interior appears to be in good condition, with modern fixtures and fittings. While the plot size isn’t specified, the property benefits from a shared garden. The location is a major selling point, with close proximity to Clapham Common and local amenities. However, the price seems high compared to the average in the area.
Therefore, we give this property 7 / 10. *Disclaimer: This is our option and does constitute a recommendation or financial advice. Do your own research. *
- Price
- 5
- Condition
- 8
- Location
- 9
- Land
- 6
- Bedrooms
- 7
- Bathrooms
- 4
The heatmap indicates the level of crime in the area. The color of the heatmap indicates the crime severity and recency.
Metrics Year-on-Year
- Average area value
- 592,760.00 £Decreased by 27.61 %
- Average area rental value
- 2,532.00 £/moDecreased by 6.77 %
- Est rental Yield
- 5.13 %Increased by 28.89 %
- Crime Rate
- 1.00 %Unchanged by 0.00 %
Agent Activity
Landmark Auctions created the listing.
Nearby Schools
| Name | Type | Ofsted | Distance |
|---|---|---|---|
| Parkgate House School | Other Independent School | Good | 0.28 KM |
| Eaton House The Manor School | Other Independent School | 0.61 KM | |
| Belleville Wix Academy | Academy Sponsor Led | Good | 0.64 KM |
| Shaftesbury Park Primary School | Community School | Good | 0.79 KM |
| Thomas'S Clapham | Other Independent School | 0.79 KM |
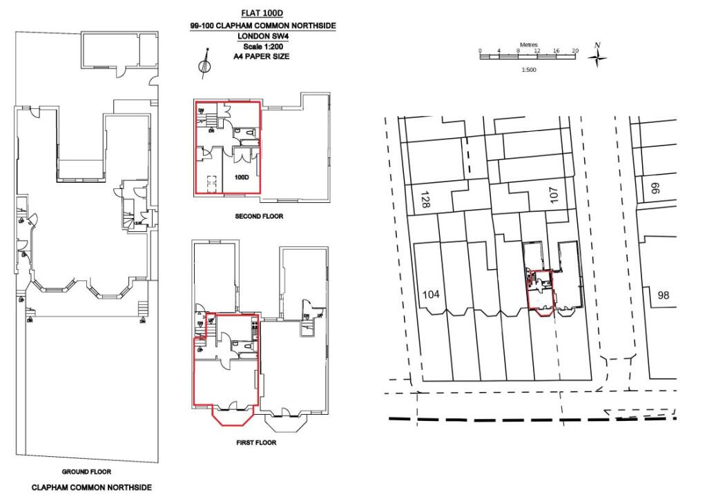
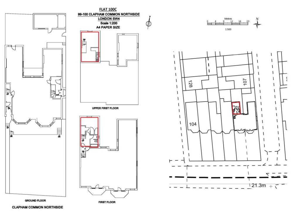
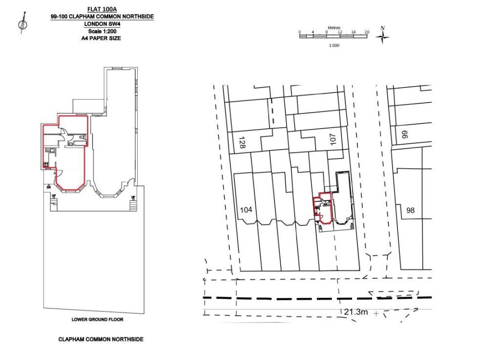
Images
Nearby Streets
| Name | Average Price | Average Sqft | Distance |
|---|---|---|---|
| Forth Bridge Road | £ 917,500 | 0 | 0.00 KM |
| Tipthorpe Road | £ 0 | 0 | 0.00 KM |
| Eland Road | £ 1,779,000 | 0 | 0.00 KM |
| Woodmere Close | £ 0 | 0 | 0.00 KM |
| Grayshott Road | £ 0 | 0 | 0.00 KM |
Nearby Transport
| Name | NLC | TLC | Distance |
|---|---|---|---|
| Clapham Junction | 5595 | CLJ | 1.54 KM |
| Queenstown Road (Battersea) | 5596 | QRB | 1.85 KM |
| Wandsworth Common | 5395 | WSW | 1.87 KM |
| Battersea Park | 5420 | BAK | 1.99 KM |
| Balham | 5399 | BAL | 2.09 KM |
Nearby Listings
| Address | Price | Type | Score | Distance |
|---|---|---|---|---|
| 99 -100 Clapham Common North Side, London, Wandsworth, SW4 9SQ | £ 4,250,000 | BUY | 6 / 10 | 0.00 KM |
| 99 -100 Clapham Common North Side, London, Wandsworth, SW4 9SQ | £ 4,250,000 | BUY | 6 / 10 | 0.00 KM |
| 99 -100 Clapham Common North Side, London, Wandsworth, SW4 9SQ | £ 4,700,000 | BUY | 6 / 10 | 0.00 KM |
| 99 -100 Clapham Common North Side, London, Wandsworth, SW4 9SQ | £ 4,700,000 | BUY | 7 / 10 | 0.00 KM |
| 100 Clapham Common North Side, London, Wandsworth, SW4 9SQ | £ 2,000,000 | BUY | 7 / 10 | 0.00 KM |
Nearby Properties
| Address | Price | Distance |
|---|---|---|
| 104 Clapham Common North Side | £ 712,500 | 0.03 KM |
| 101 Clapham Common North Side | £ 220,000 | 0.03 KM |
| 102 Clapham Common North Side | £ 300,000 | 0.03 KM |
| 103 Clapham Common North Side | £ 1,137,500 | 0.05 KM |
| 91 Clapham Common North Side | £ 600,000 | 0.05 KM |