Albert Drive, Pollokshields, Glasgow
RE

Albert Drive, Pollokshields, Glasgow

By Rettie & Co

£ 380,000

Reviews

3 out of 5 stars

Rettie & Co says ..

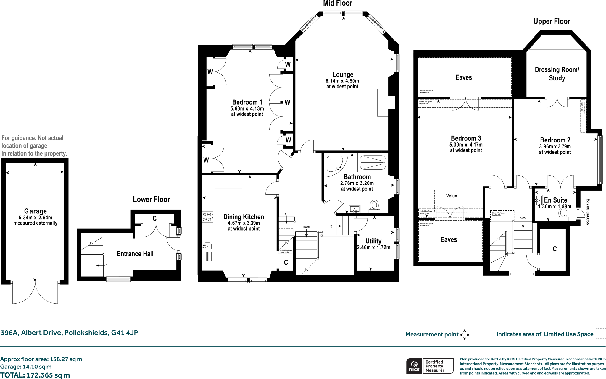
Albert Drive is a superb duplex upper conversion (accessed via side entrance). This fabulous 3 bedroom apartment retains a wealth of period features, fireplaces, cornicing, stained glass windows and banisters. This property will appeal to a broad range of potential buyers and features driveway ...

Property Oracle says ..

Therefore, we give this property 6 / 10. *Disclaimer: This is our option and does constitute a recommendation or financial advice. Do your own research. *

Price
6
Condition
7
Location
7
Land
7
Bedrooms
3
Bathrooms
2
Sqft (est)
1,288.50

The heatmap indicates the level of crime in the area. The color of the heatmap indicates the crime severity and recency.

Metrics Year-on-Year

Average area value
211,230.00 £
Decreased by 14.84 %
from 248,045.00 £
Est sale value
344,029.50 £
Increased by 19.20 %
from 288,624.00 £
Average area rental value
1,315.00 £/mo
Increased by 14.45 %
from 1,149.00 £/mo
Est letting value
1,288.50 £/mo
Unchanged by 0.00 %
from 1,288.50 £/mo
Est rental Yield
7.47 %
Increased by 34.35 %
from 5.56 %
Crime Rate
0.00 %
from 0.00 %

Agent Activity

  • Rettie & Co created the listing.

Images

Picture No. 01 Picture No. 02 Picture No. 03 Picture No. 04 Picture No. 05 Picture No. 06 Picture No. 07 Picture No. 08 Picture No. 09 Picture No. 10 Picture No. 11 Picture No. 12 Picture No. 13 Picture No. 14 Picture No. 15 Picture No. 16 Picture No. 17 Picture No. 18 Picture No. 19 Picture No. 20 Picture No. 21 Picture No. 22 Picture No. 23 Picture No. 24 Picture No. 25 Picture No. 26 Picture No. 27 Picture No. 28

Nearby Streets

NameAverage PriceAverage SqftDistance
Burrell Court £ 220,00000.00 KM
Terregles Crescent £ 000.00 KM
Springkell Gate £ 000.00 KM
Laburnum Road £ 000.00 KM
St Ronan's Drive £ 000.00 KM

Nearby Transport

NameNLCTLCDistance
Dumbreck9622DUM0.79 KM
Maxwell Park9802MAX0.85 KM
Shawlands9823SHL1.23 KM
Crossmyloof9796CMY1.46 KM
Pollokshaws West9804PWW1.85 KM

Nearby Listings

AddressPriceTypeScoreDistance
Albert Drive, Pollokshields, Glasgow £ 380,000BUY6 / 100.00 KM
Hamilton Avenue, Glasgow £ 1,025,000BUY8 / 100.25 KM
25 Dalziel Drive, Pollokshields, G41 4JA £ 699,000BUYUnknown0.35 KM
Upper Conversion, 63 Dalziel Drive, Pollokshields, G41 4NY £ 375,000BUY7 / 100.36 KM
64 Dalziel Drive, Pollokshields, G41 4PA £ 525,000BUYUnknown0.38 KM