Munday's says ..
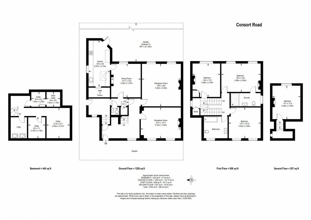
Sophisticated Grade II listed detached Georgian villa. The classic, substantial home delivers four bedrooms, three receptions, two bathrooms, kitchen with Miele appliances and copper worksurfaces, pantry, bootroom, a huge cellar and off-street parking.
Property Oracle says ..
This property is a substantial Grade II listed Georgian villa located on Consort Road in Peckham, South East London. The house boasts four bedrooms, three reception rooms, and a modern kitchen with high-end appliances and a stylish design. The property has been renovated and upgraded to a high standard, including a new kitchen and bathrooms featuring modern fittings and fixtures which contrast beautifully with the period features found throughout the property. The inclusion of a cellar is a unique feature, potentially offering substantial storage space or even the possibility for conversion (subject to planning permission). A sizeable, well-maintained garden is also a significant asset, providing outdoor space. The location is convenient, with easy access to several railway stations providing links to central London, and is located within reasonable proximity to several primary schools rated ‘good’ by Ofsted. In summary, the property represents a good example of a high-quality family home in a convenient location, albeit with the property in this location of London commanding a premium price. The lack of specific plot size information and comparable sales data prevents a fully definitive evaluation of the property’s true value. However, the overall presentation, finishes and location suggest that this price reflects the property’s value in the current market.
Therefore, we give this property 7 / 10. *Disclaimer: This is our option and does constitute a recommendation or financial advice. Do your own research. *
- Price
- 7
- Condition
- 8
- Location
- 7
- Land
- 6
- Bedrooms
- 4
- Bathrooms
- 0
- Sqft (est)
- 2,760.00
The heatmap indicates the level of crime in the area. The color of the heatmap indicates the crime severity and recency.
Metrics Year-on-Year
- Average area value
- 759,842.00 £Increased by 24.51 %
- Est sale value
- 2,288,040.00 £Increased by 23.55 %
- Average area rental value
- 2,535.00 £/moDecreased by 1.90 %
- Est letting value
- 5,520.00 £/moUnchanged by 0.00 %
- Est rental Yield
- 4.00 %Decreased by 21.26 %
- Crime Rate
- 5.00 %Unchanged by 0.00 %
Agent Activity
Munday's created the listing.
Nearby Schools
| Name | Type | Ofsted | Distance |
|---|---|---|---|
| John Donne Primary School | Academy Converter | 0.33 KM | |
| Nell Gwynn Nursery School | Local Authority Nursery School | Good | 0.34 KM |
| St Mary Magdalene Church Of England Primary School | Voluntary Aided School | Good | 0.39 KM |
| East Peckham Children'S Centre | Children's Centre | 0.47 KM | |
| Harris Primary Academy Peckham Park | Academy Converter | Good | 0.58 KM |
Images
Nearby Streets
| Name | Average Price | Average Sqft | Distance |
|---|---|---|---|
| Woodland Trail | £ 575,000 | 0 | 0.00 KM |
| Bishop Wilfred Wood Close | £ 0 | 0 | 0.00 KM |
| Nazareth Gardens | £ 900,000 | 0 | 0.00 KM |
| McKerrell Road | £ 259,000 | 0 | 0.00 KM |
| Carlton Grove | £ 350,000 | 0 | 0.00 KM |
Nearby Transport
| Name | NLC | TLC | Distance |
|---|---|---|---|
| Peckham Rye | 5423 | PMR | 0.63 KM |
| Queens Road Peckham | 5424 | QRP | 0.77 KM |
| Nunhead | 5068 | NHD | 1.41 KM |
| South Bermondsey | 5425 | SBM | 2.09 KM |
| East Dulwich | 5358 | EDW | 2.16 KM |
Nearby Listings
| Address | Price | Type | Score | Distance |
|---|---|---|---|---|
| Consort Road, Peckham, SE15 | £ 2,250,000 | BUY | 7 / 10 | 0.00 KM |
| Consort Road, London, SE15 | £ 1,000,000 | BUY | 7 / 10 | 0.01 KM |
| Consort Road, London, SE15 | £ 925,000 | BUY | Unknown | 0.04 KM |
| Consort Road, Peckham, London, SE15 | £ 1,500,000 | BUY | Unknown | 0.04 KM |
| Consort Road, London, SE15 | £ 1,000,000 | BUY | 7 / 10 | 0.12 KM |
Nearby Properties
| Address | Price | Distance |
|---|---|---|
| 7a Consort Road | £ 165,000 | 0.00 KM |
| 5a Consort Road | £ 846,950 | 0.00 KM |
| 9 Consort Road | £ 1,700,000 | 0.00 KM |
| 98a Consort Road | £ 410,000 | 0.00 KM |
| 3 Consort Road | £ 395,000 | 0.00 KM |