The Chilterns, Kensworth, Dunstable, LU6
By Ashtons
£ 350,000
Reviews
3 out of 5 stars
Ashtons says ..
Well presented and spacious three bedroom village home located opposite a quiet green in this popular village.
Property Oracle says ..
This three-bedroom house in Kensworth is listed at £350,000. Kensworth is a popular village, and the property benefits from being located opposite a green. The property itself appears to be in good condition, with a well-maintained garden. However, the lack of plot size data makes it difficult to fully assess the land score. Compared to the average price per square foot in the area (£415), the listed price seems relatively low, suggesting it could be good value for money. More information on the property’s square footage would allow for a more precise price assessment.
Therefore, we give this property 7 / 10. *Disclaimer: This is our option and does constitute a recommendation or financial advice. Do your own research. *
- Price
- 8
- Condition
- 8
- Location
- 7
- Land
- 6
- Bedrooms
- 3
- Bathrooms
- 1
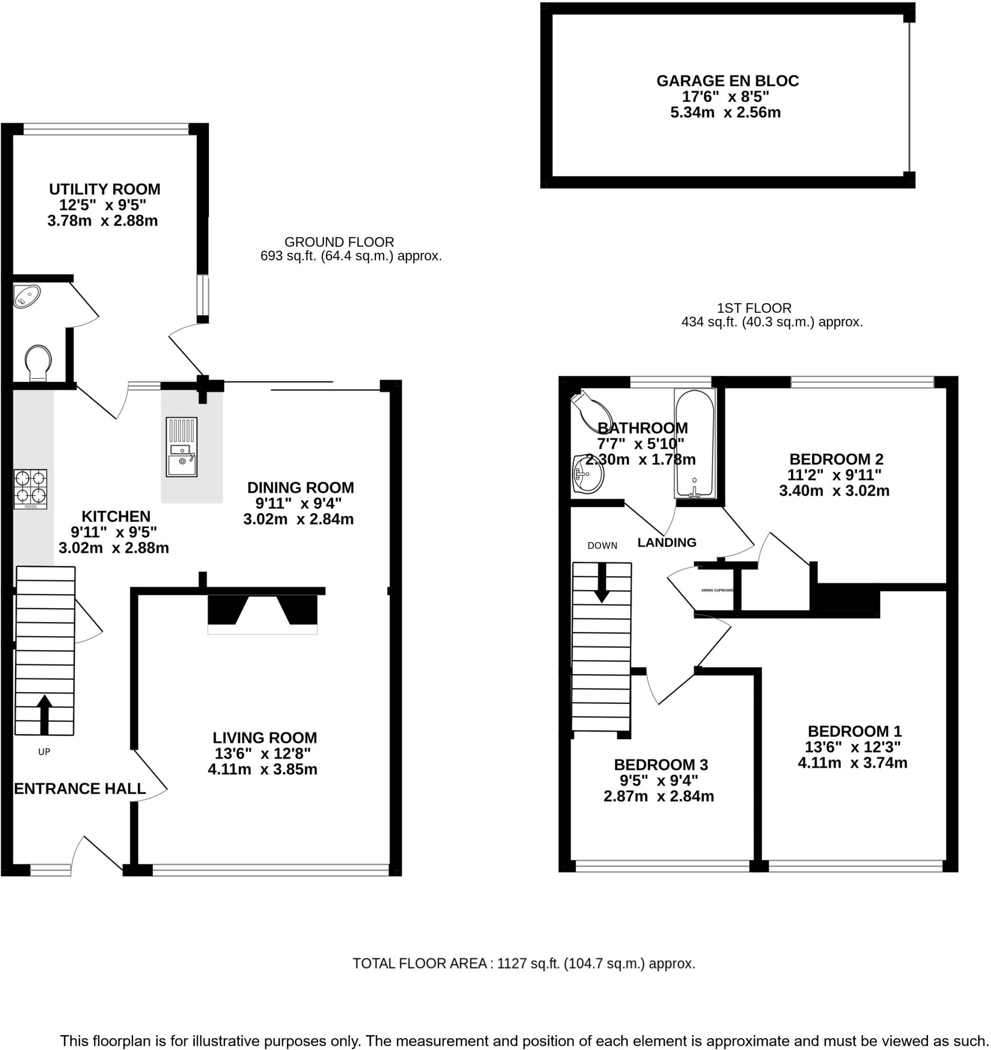
- Sqft (est)
- 1,289.84
The heatmap indicates the level of crime in the area. The color of the heatmap indicates the crime severity and recency.
Metrics Year-on-Year
- Average area value
- 443,750.00 £Decreased by 18.92 %
- Est sale value
- 669,426.96 £Increased by 40.65 %
- Average area rental value
- 1,293.00 £/moDecreased by 31.77 %
- Est letting value
- 1,289.84 £/moUnchanged by 0.00 %
- Est rental Yield
- 3.50 %Decreased by 15.87 %
- Crime Rate
- 90.00 %Unchanged by 0.00 %
Agent Activity
Ashtons created the listing.
Nearby Schools
| Name | Type | Ofsted | Distance |
|---|---|---|---|
| Kensworth Church Of England Academy | Academy Sponsor Led | 0.17 KM | |
| St Mary'S Catholic Primary School | Academy Converter | 2.76 KM | |
| Manshead Cofe Academy | Academy Sponsor Led | Good | 2.76 KM |
| Markyate Village School And Nursery | Community School | Good | 3.40 KM |
| Dunstable South Children'S Centre | Children's Centre | 3.51 KM |
Images
Nearby Streets
| Name | Average Price | Average Sqft | Distance |
|---|---|---|---|
| Green Lane | £ 475,000 | 0 | 0.00 KM |
Nearby Transport
| Name | NLC | TLC | Distance |
|---|---|---|---|
| Leagrave | 1534 | LEA | 7.46 KM |
| Luton | 1536 | LUT | 9.75 KM |
Nearby Listings
| Address | Price | Type | Score | Distance |
|---|---|---|---|---|
| The Chilterns, Kensworth, Dunstable, LU6 | £ 350,000 | BUY | 7 / 10 | 0.00 KM |
| The Chilterns, Kensworth, Bedfordshire, LU6 | £ 340,000 | BUY | 7 / 10 | 0.04 KM |
| Common Road, Kensworth | £ 625,000 | BUY | 6 / 10 | 0.15 KM |
| Common Road, Kensworth | £ 695,000 | BUY | 6 / 10 | 0.21 KM |
| Lynch Hill, Kensworth, Dunstable, Bedfordshire, LU6 | £ 1,650,000 | BUY | 8 / 10 | 0.54 KM |
Nearby Properties
| Address | Price | Distance |
|---|---|---|
| 52 The Chilterns | £ 255,000 | 0.00 KM |
| 19 The Chilterns | £ 270,000 | 0.00 KM |
| 34 The Chilterns | £ 198,995 | 0.00 KM |
| 35 The Chilterns | £ 260,000 | 0.00 KM |
| 46 The Chilterns | £ 300,000 | 0.00 KM |