Calamint Court, Didcot, OX11
By Thomas Merrifield
£ 195,000
Reviews
3 out of 5 stars
Thomas Merrifield says ..
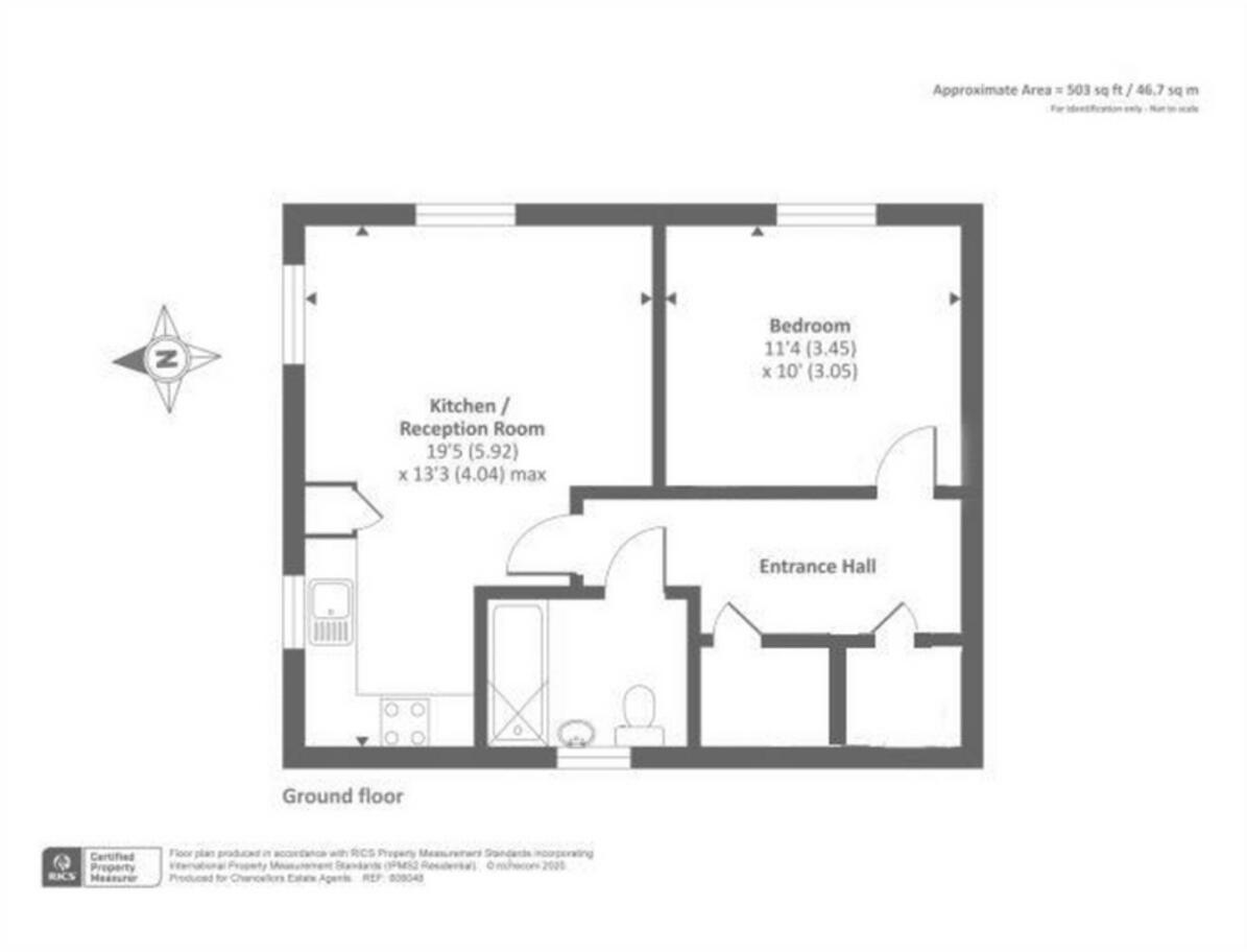
A very well-presented and large one bedroom first floor apartment, situated in the popular Great Western Park development
Property Oracle says ..
The property is located in Calamint Court, Didcot, Oxfordshire, a seemingly modern development. Based on the provided images, the property appears to be in good condition, with modern brick and cladding. There is no information about the presence of a garden. The list price of £195,000 for a 403 sqft property is relatively low compared to nearby properties. However, without sqft data for the nearby properties, a precise price per sqft comparison is impossible. The lack of information on the specific property type (e.g., apartment, flat) also makes a definitive price assessment difficult. The proximity to Didcot Parkway train station and several well-regarded schools (Didcot Primary Academy, rated Outstanding) is a positive factor for location. The relatively short distances to these amenities add to the property’s appeal. However, additional information on the specific features and amenities of the property would allow for a more complete evaluation of its value.
Therefore, we give this property 7 / 10. *Disclaimer: This is our option and does constitute a recommendation or financial advice. Do your own research. *
- Price
- 6
- Condition
- 8
- Location
- 7
- Land
- 0
- Bedrooms
- 1
- Bathrooms
- 1
- Sqft (est)
- 403.00
- Lot (est)
- 503.00
The heatmap indicates the level of crime in the area. The color of the heatmap indicates the crime severity and recency.
Metrics Year-on-Year
- Average area value
- 471,250.00 £Decreased by 9.10 %
- Est sale value
- 162,812.00 £Increased by 2.54 %
- Average area rental value
- 2,096.00 £/moIncreased by 16.44 %
- Est letting value
- 403.00 £/moUnchanged by 0.00 %
- Est rental Yield
- 5.34 %Increased by 28.06 %
- Crime Rate
- 32.00 %Unchanged by 0.00 %
Agent Activity
Thomas Merrifield created the listing.
Nearby Schools
| Name | Type | Ofsted | Distance |
|---|---|---|---|
| Didcot Primary Academy | Academy Sponsor Led | Outstanding | 0.13 KM |
| Aureus School | Academy Sponsor Led | 0.21 KM | |
| Utc Oxfordshire | University Technical College | Good | 0.31 KM |
| Aureus Primary School | Academy Sponsor Led | 0.75 KM | |
| Stephen Freeman Community Primary School | Community School | Good | 1.05 KM |
Images
Nearby Streets
| Name | Average Price | Average Sqft | Distance |
|---|---|---|---|
| Miles East | £ 0 | 0 | 0.00 KM |
| Lime Walk | £ 225,000 | 0 | 0.00 KM |
| Sundew Close | £ 0 | 0 | 0.00 KM |
| Barberry Drive | £ 336,750 | 0 | 0.00 KM |
| Aster Close | £ 0 | 0 | 0.00 KM |
Nearby Transport
| Name | NLC | TLC | Distance |
|---|---|---|---|
| Didcot Parkway | 3030 | DID | 3.01 KM |
| Appleford | 3109 | APF | 4.86 KM |
| Culham | 3107 | CUM | 6.50 KM |
| Radley | 3118 | RAD | 9.54 KM |
Nearby Listings
| Address | Price | Type | Score | Distance |
|---|---|---|---|---|
| Calamint Court, Didcot, OX11 | £ 195,000 | BUY | 7 / 10 | 0.00 KM |
| Calamint Court, Harwell, OX11 | £ 200,000 | BUY | 6 / 10 | 0.01 KM |
| Mezereon Spur, Didcot, OX11 | £ 325,000 | BUY | 7 / 10 | 0.10 KM |
| Mistletoe Mews, Harwell, Didcot, Oxfordshire, OX11 | £ 460,000 | BUY | 8 / 10 | 0.17 KM |
| Mistletoe Mews, Harwell, Didcot, Oxfordshire, OX11 | £ 325,000 | BUY | 7 / 10 | 0.17 KM |
Nearby Properties
| Address | Price | Distance |
|---|---|---|
| 7 Orchid Mews | £ 355,000 | 0.12 KM |
| 1 Mistletoe Mews | £ 292,000 | 0.21 KM |
| 14 Mistletoe Mews | £ 340,000 | 0.21 KM |
| 9 Mistletoe Mews | £ 262,000 | 0.21 KM |
| 6a Mistletoe Mews | £ 352,000 | 0.21 KM |