Bicknell Croft, Druids Heath
By Midland Housing Ltd
£ 105,000
Reviews
3 out of 5 stars
Midland Housing Ltd says ..
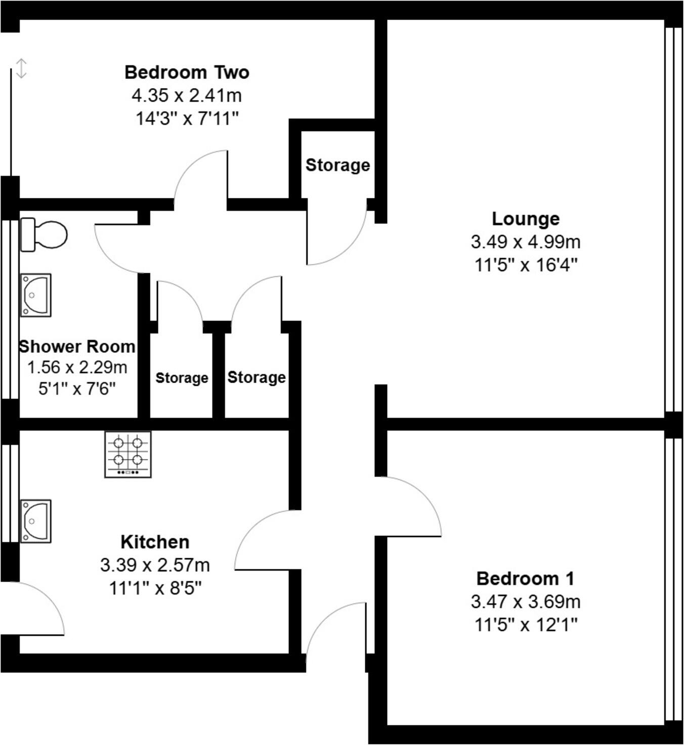
**CHAIN FREE** Two bedroom flat with open-plan lounge, fitted kitchen, modern shower room, private garden with rear access, laminate flooring, and excellent transport links via Alcester Road, close to local amenities in a quiet location.
Property Oracle says ..
This two-bedroom flat in Druids Heath presents an opportunity for buyers seeking an affordable property with outdoor space. While the property requires modernisation, its competitive price point and proximity to local amenities make it an attractive prospect. The paved garden offers low-maintenance outdoor living. The property is a flat.
Therefore, we give this property 6 / 10. *Disclaimer: This is our option and does constitute a recommendation or financial advice. Do your own research. *
- Price
- 8
- Condition
- 5
- Location
- 6
- Land
- 7
- Bedrooms
- 2
- Bathrooms
- 1
The heatmap indicates the level of crime in the area. The color of the heatmap indicates the crime severity and recency.
Metrics Year-on-Year
- Average area value
- 281,000.00 £Increased by 9.76 %
- Average area rental value
- 748.00 £/moDecreased by 41.38 %
- Est rental Yield
- 3.19 %Decreased by 46.66 %
- Crime Rate
- 14.00 %Unchanged by 0.00 %
Agent Activity
Midland Housing Ltd created the listing.
Nearby Schools
| Name | Type | Ofsted | Distance |
|---|---|---|---|
| St Jude'S Catholic Primary School | Voluntary Aided School | Good | 0.47 KM |
| St Alban'S Catholic Primary School | Voluntary Aided School | Good | 0.80 KM |
| The Oaks Primary School | Community School | Good | 1.03 KM |
| Grendon Primary School | Community School | Good | 1.20 KM |
| Woodthorpe Junior And Infant School | Community School | Outstanding | 1.24 KM |
Images
Nearby Streets
| Name | Average Price | Average Sqft | Distance |
|---|---|---|---|
| St. Francis Drive | £ 330,000 | 0 | 0.00 KM |
| Myrtle Avenue | £ 269,167 | 0 | 0.00 KM |
| Woodman Road | £ 315,000 | 0 | 0.00 KM |
| Edward Road | £ 299,000 | 0 | 0.00 KM |
| Oakwood Drive | £ 300,000 | 0 | 0.00 KM |
Nearby Transport
| Name | NLC | TLC | Distance |
|---|---|---|---|
| Bournville | 1112 | BRV | 4.24 KM |
| Wythall | 4532 | WYT | 4.39 KM |
| Kings Norton | 1109 | KNN | 4.42 KM |
| Yardley Wood | 4537 | YRD | 4.48 KM |
| Whitlocks End | 4539 | WTE | 4.93 KM |
Nearby Listings
| Address | Price | Type | Score | Distance |
|---|---|---|---|---|
| Bicknell Croft, Birmingham | £ 185,000 | BUY | 6 / 10 | 0.00 KM |
| Bicknell Croft, Druids Heath | £ 105,000 | BUY | 6 / 10 | 0.00 KM |
| Bicknell Croft, Birmingham, B14 | £ 190,000 | BUY | 7 / 10 | 0.01 KM |
| Bicknell Croft, Birmingham, West Midlands, B14 | £ 60,000 | BUY | Unknown | 0.08 KM |
| Bicknell Croft, Birmingham, West Midlands, B14 | £ 110,000 | BUY | 7 / 10 | 0.08 KM |
Nearby Properties
| Address | Price | Distance |
|---|---|---|
| 9 Bicknell Croft | £ 85,000 | 0.00 KM |
| 6 Bicknell Croft | £ 97,500 | 0.00 KM |
| 46 Bicknell Croft | £ 77,000 | 0.00 KM |
| 4 Bicknell Croft | £ 114,000 | 0.00 KM |
| 7 Bicknell Croft | £ 95,000 | 0.00 KM |