Tudor Sales & Lettings says ..
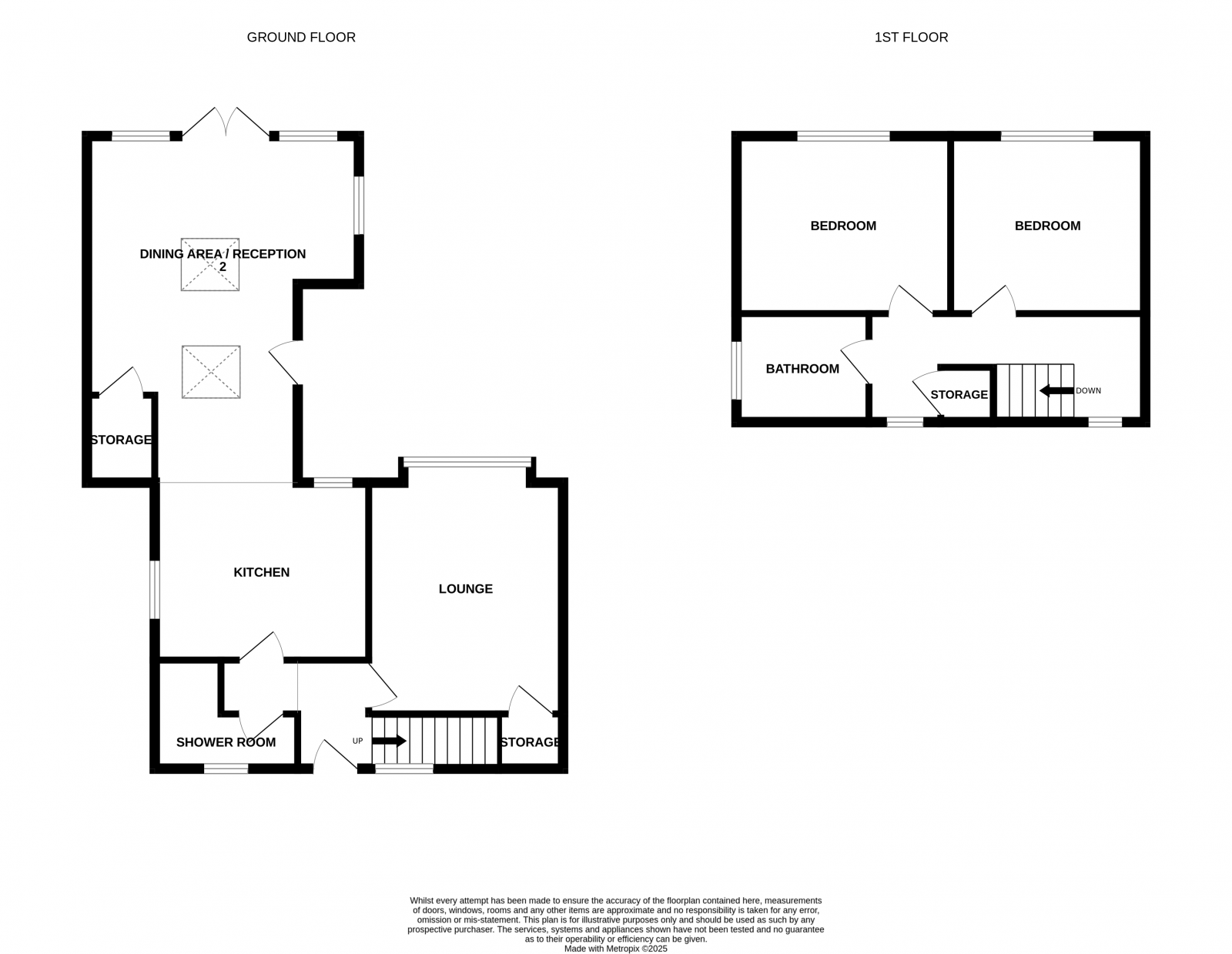
Tudor Sales & Lettings are delighted to offer for sale this well presented and extended two-bedroom semi-detached property, ideally located on the ever-popular Oak Grove in Garforth. Boasting generous ground floor space, the
Property Oracle says ..
Therefore, we give this property 7 / 10. *Disclaimer: This is our option and does constitute a recommendation or financial advice. Do your own research. *
- Price
- 8
- Condition
- 7
- Location
- 7
- Land
- 7
- Bedrooms
- 2
- Bathrooms
- 2
The heatmap indicates the level of crime in the area. The color of the heatmap indicates the crime severity and recency.
Metrics Year-on-Year
- Average area value
- 335,544.00 £Increased by 11.56 %
- Average area rental value
- 1,269.00 £/moIncreased by 13.81 %
- Est rental Yield
- 4.54 %Increased by 2.02 %
- Crime Rate
- 15.00 %Unchanged by 0.00 %
from 300,782.00 £
from 1,115.00 £/mo
from 4.45 %
from 15.00 %
Agent Activity
Tudor Sales & Lettings created the listing.
Nearby Schools
| Name | Type | Ofsted | Distance |
|---|---|---|---|
| Ninelands Primary School | Foundation School | Good | 0.51 KM |
| St Benedict'S Catholic Primary School | Academy Converter | 0.67 KM | |
| East Garforth Primary Academy | Academy Converter | Good | 1.15 KM |
| Green Lane Primary Academy | Academy Converter | 1.27 KM | |
| Garforth Academy | Academy Converter | Outstanding | 1.68 KM |
Images
Nearby Streets
| Name | Average Price | Average Sqft | Distance |
|---|---|---|---|
| Oak Grove | £ 0 | 0 | 0.00 KM |
| Rose Court | £ 0 | 0 | 0.00 KM |
| Croft Foulds Court | £ 0 | 0 | 0.00 KM |
| Definitive Footpath GARFORTH 15 | £ 265,000 | 0 | 0.00 KM |
| Ripley Garden | £ 575,000 | 0 | 0.00 KM |
Nearby Transport
| Name | NLC | TLC | Distance |
|---|---|---|---|
| Garforth | 8474 | GRF | 0.63 KM |
| East Garforth | 8472 | EGF | 0.79 KM |
| Micklefield | 8477 | MIK | 5.63 KM |
| Castleford | 8359 | CFD | 8.14 KM |
| Cross Gates | 8473 | CRG | 8.29 KM |
Nearby Listings
| Address | Price | Type | Score | Distance |
|---|---|---|---|---|
| Oak Grove, Garforth | £ 275,000 | BUY | 7 / 10 | 0.00 KM |
| Church Lane, Garforth, Leeds | £ 750,000 | BUY | 8 / 10 | 0.08 KM |
| Bar Lane, Garforth, Leeds | £ 270,000 | BUY | 7 / 10 | 0.14 KM |
| Rose Court, Garforth | £ 390,000 | BUY | 8 / 10 | 0.16 KM |
| Meadow Road, Garforth, Leeds | £ 380,000 | BUY | Unknown | 0.21 KM |
Nearby Properties
| Address | Price | Distance |
|---|---|---|
| 3 Oak Grove | £ 154,995 | 0.01 KM |
| 1 Oak Grove | £ 251,500 | 0.01 KM |
| 7 Oak Grove | £ 174,000 | 0.03 KM |
| 5 Oak Grove | £ 155,000 | 0.03 KM |
| 9 Ninelands View | £ 206,500 | 0.11 KM |