High Road, Romford, RM6
By Ashton Estate Agents
£ 750,000
Reviews
4 out of 5 stars
Ashton Estate Agents says ..
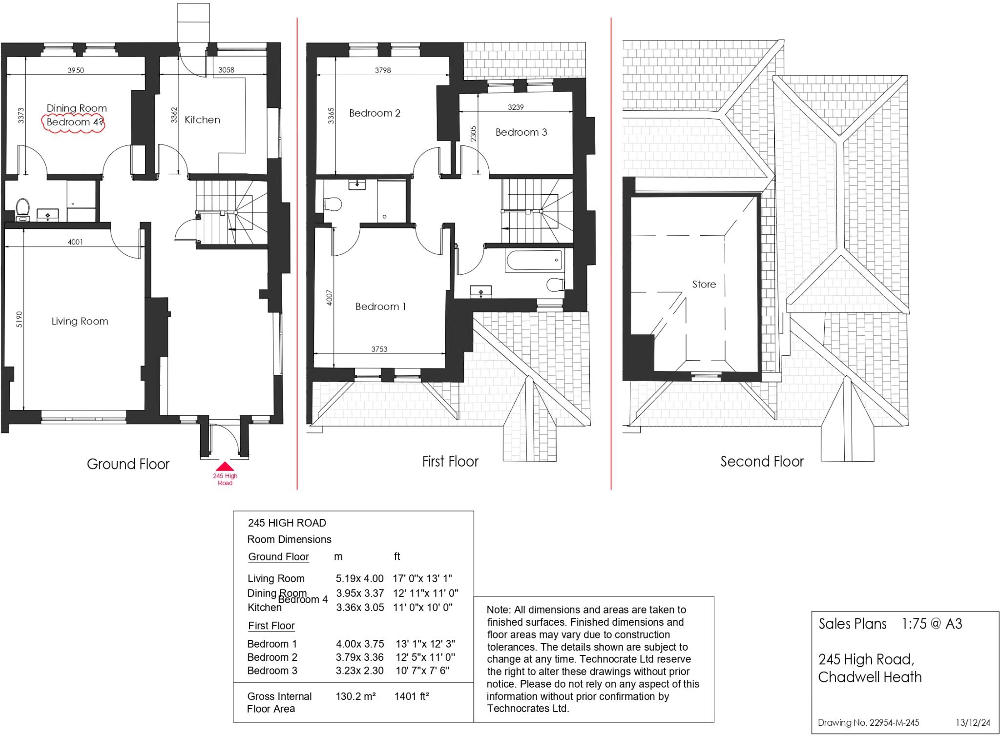
Ashton Estate Agents have the pleasure in offering for sale this stunning four bedroom semi-detached period house, which has undergone an extensive yet sympathetic programme of refurbishment. Situated within a gated development located just off Chadwell Heath High Road and within walk...
Property Oracle says ..
The property is a four-bedroom semi-detached house located on High Road, Romford, in the Whalebone area of Barking and Dagenham. Based on the provided information and images, the location is reasonably convenient, being close to Chadwell Heath station and several schools. The property appears to be in excellent condition, recently refurbished, with modern fixtures and fittings. A garden is included. The list price of £750,000 seems to be within the market range for similar properties in the area, although more detailed comparative data would allow for a more precise evaluation.
Therefore, we give this property 8 / 10. *Disclaimer: This is our option and does constitute a recommendation or financial advice. Do your own research. *
- Price
- 7
- Condition
- 10
- Location
- 7
- Land
- 8
- Bedrooms
- 4
- Bathrooms
- 3
- Sqft (est)
- 1,057.51
- Lot (est)
- 1,401.00
The heatmap indicates the level of crime in the area. The color of the heatmap indicates the crime severity and recency.
Metrics Year-on-Year
- Average area value
- 299,571.00 £Decreased by 21.18 %
- Est sale value
- 487,512.11 £Decreased by 6.11 %
- Average area rental value
- 2,530.00 £/moIncreased by 49.44 %
- Est letting value
- 3,172.53 £/moIncreased by 50.00 %
- Est rental Yield
- 10.13 %Increased by 89.35 %
- Crime Rate
- 11.00 %Unchanged by 0.00 %
Agent Activity
Ashton Estate Agents created the listing.
Nearby Schools
| Name | Type | Ofsted | Distance |
|---|---|---|---|
| Furze Children'S Centre | Children's Centre Linked Site | 0.26 KM | |
| Furze Infant School | Community School | Good | 0.32 KM |
| Warren Junior School | Community School | Outstanding | 0.43 KM |
| The Warren School | Academy Sponsor Led | Good | 0.53 KM |
| Robert Clack School | Community School | Good | 1.22 KM |
Images
Nearby Streets
| Name | Average Price | Average Sqft | Distance |
|---|---|---|---|
| Gordon Road | £ 0 | 0 | 0.00 KM |
| Chaudewell Close | £ 0 | 0 | 0.00 KM |
| Dover Road | £ 0 | 0 | 0.00 KM |
| Cromer Road | £ 452,498 | 0 | 0.00 KM |
| Selinas Lane | £ 200,000 | 0 | 0.00 KM |
Nearby Transport
| Name | NLC | TLC | Distance |
|---|---|---|---|
| Chadwell Heath | 6874 | CTH | 1.61 KM |
| Goodmayes | 6878 | GMY | 3.62 KM |
| Romford | 6886 | RMF | 4.47 KM |
| Seven Kings | 6893 | SVK | 5.14 KM |
| Dagenham Dock | 7440 | DDK | 5.17 KM |
Nearby Listings
| Address | Price | Type | Score | Distance |
|---|---|---|---|---|
| High Road, Romford, RM6 | £ 700,000 | BUY | 7 / 10 | 0.00 KM |
| High Road, Romford, RM6 | £ 750,000 | BUY | 8 / 10 | 0.00 KM |
| High Road, Romford | £ 250,000 | BUY | 6 / 10 | 0.09 KM |
| High Road, Romford, RM6 | £ 265,000 | BUY | 6 / 10 | 0.09 KM |
| Maydeb Court, Whalebone Lane South, Chadwell Heath, RM6 | £ 250,000 | BUY | 5 / 10 | 0.09 KM |
Nearby Properties
| Address | Price | Distance |
|---|---|---|
| 232a High Road | £ 180,000 | 0.03 KM |
| 238a High Road | £ 54,500 | 0.03 KM |
| 236a High Road | £ 125,000 | 0.03 KM |
| 402 Whalebone Lane South | £ 112,000 | 0.12 KM |
| 396 Whalebone Lane South | £ 65,000 | 0.12 KM |