Oaklands Road, East Sheen, SW14
By Chestertons Estate Agents
£ 1,375,000
Reviews
4 out of 5 stars
Chestertons Estate Agents says ..
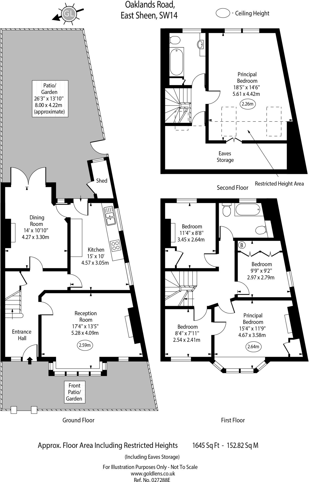
An end of terrace, five bedroom, two bathroom, two reception room house within the catchment area of an 'Outstanding' rated primary school.
Property Oracle says ..
This property is a 5 bedroom end of terrace house located in East Sheen, SW14. The property is well presented and benefits from a good size garden. The location is excellent, with easy access to local amenities and transport links. The property is priced slightly below the average price per square foot for the area, which makes it good value for money.
Therefore, we give this property 8 / 10. *Disclaimer: This is our option and does constitute a recommendation or financial advice. Do your own research. *
- Price
- 8
- Condition
- 8
- Location
- 9
- Land
- 7
- Bedrooms
- 5
- Bathrooms
- 2
- Sqft (est)
- 1,437.31
- Lot (est)
- 1,644.94
The heatmap indicates the level of crime in the area. The color of the heatmap indicates the crime severity and recency.
Metrics Year-on-Year
- Average area value
- 1,320,833.00 £Increased by 17.98 %
- Est sale value
- 3,781,562.61 £Increased by 213.59 %
- Average area rental value
- 3,912.00 £/moIncreased by 8.01 %
- Est letting value
- 10,061.17 £/moIncreased by 250.00 %
- Est rental Yield
- 3.55 %Decreased by 8.51 %
- Crime Rate
- 7.00 %Unchanged by 0.00 %
Agent Activity
Chestertons Estate Agents created the listing.
Nearby Schools
| Name | Type | Ofsted | Distance |
|---|---|---|---|
| Thomson House School | Free Schools | Outstanding | 0.25 KM |
| St Mary Magdalen'S Catholic Primary School | Voluntary Aided School | Outstanding | 0.36 KM |
| Tower House School | Other Independent School | 0.66 KM | |
| Richmond Park Academy | Academy Sponsor Led | Good | 0.79 KM |
| Mortlake Hall Children'S Centre | Children's Centre Linked Site | 0.80 KM |
Images
Nearby Streets
| Name | Average Price | Average Sqft | Distance |
|---|---|---|---|
| Sheengate Mansions Passage | £ 0 | 0 | 0.00 KM |
| Park Avenue | £ 0 | 0 | 0.00 KM |
| Chestnut Mews | £ 0 | 0 | 0.00 KM |
| Gordon Avenue | £ 0 | 0 | 0.00 KM |
| Firs Avenue | £ 0 | 0 | 0.00 KM |
Nearby Transport
| Name | NLC | TLC | Distance |
|---|---|---|---|
| Mortlake | 5600 | MTL | 0.30 KM |
| Barnes Bridge | 5580 | BNI | 1.42 KM |
| Chiswick | 5583 | CHK | 1.59 KM |
| Barnes | 5551 | BNS | 2.47 KM |
| Kew Gardens | 5594 | KWG | 2.52 KM |
Nearby Listings
| Address | Price | Type | Score | Distance |
|---|---|---|---|---|
| Oaklands Road, East Sheen, SW14 | £ 1,375,000 | BUY | 8 / 10 | 0.00 KM |
| South Worple Way, London, SW14 | £ 1,250,000 | BUY | Unknown | 0.04 KM |
| South Worple Way, East Sheen, SW14 | £ 325,000 | BUY | Unknown | 0.04 KM |
| Vernon Road, East Sheen, SW14 | £ 1,150,000 | BUY | 7 / 10 | 0.05 KM |
| South Worple Way, SW14 | £ 1,125,000 | BUY | 7 / 10 | 0.06 KM |
Nearby Properties
| Address | Price | Distance |
|---|---|---|
| 15 Oaklands Road | £ 970,000 | 0.01 KM |
| 9 Oaklands Road | £ 1,080,000 | 0.01 KM |
| 7 Oaklands Road | £ 1,085,000 | 0.01 KM |
| 17 Oaklands Road | £ 1,395,000 | 0.01 KM |
| 19 Oaklands Road | £ 1,162,000 | 0.01 KM |