Waterloo Road, Wokingham, RG40
By Purplebricks
£ 465,000
Reviews
3 out of 5 stars
Purplebricks says ..
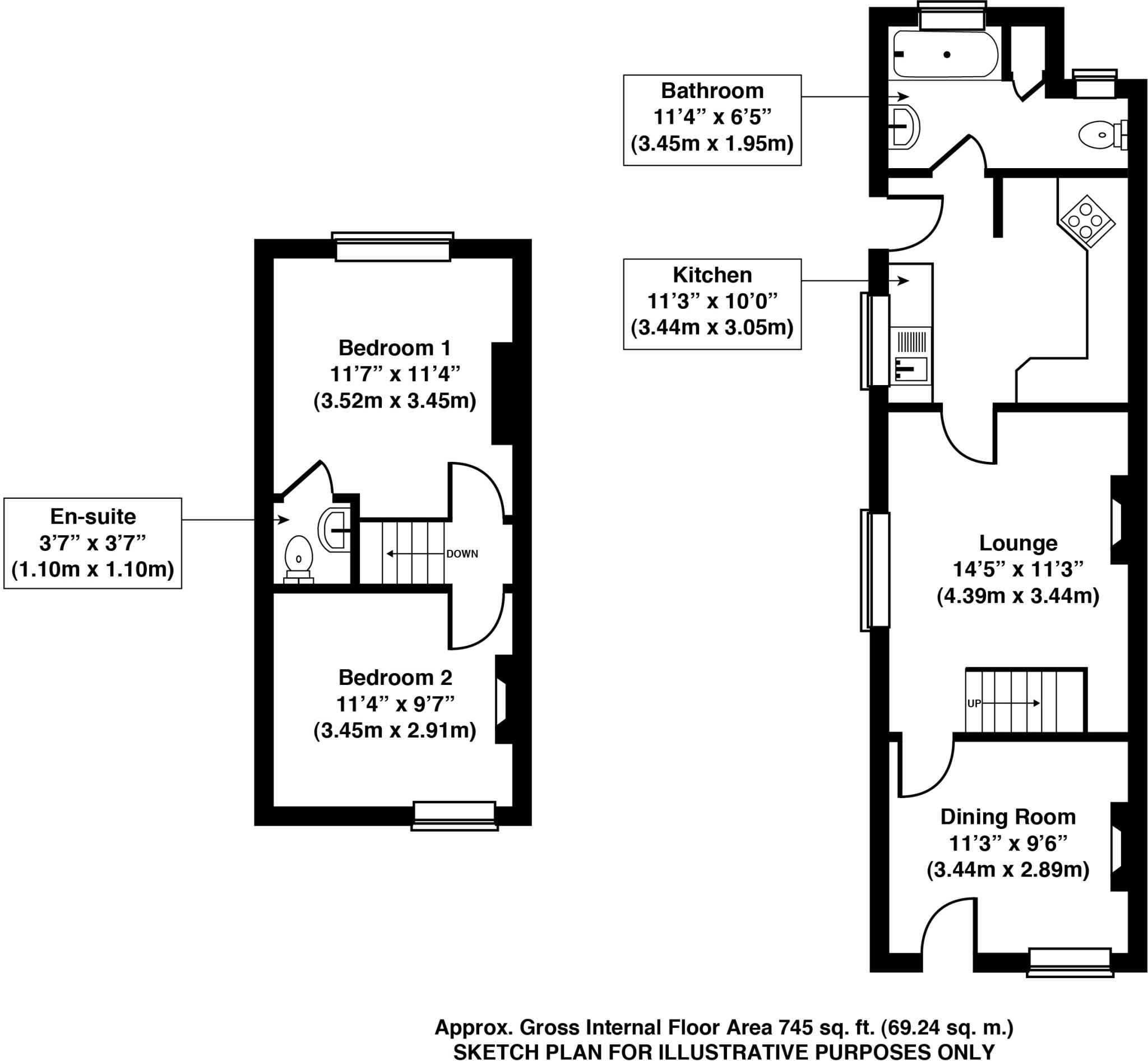
Within walking distance of Wokingham town centre, this two bedroom Victorian semi-detached home is full of character features. The property offers a versatile living space with accommodation comprising: Dining room with exposed brick fireplace, living room with log burner, spacious kitchen and b...
Property Oracle says ..
This property is a 2 bedroom semi-detached house located on Waterloo Road in Wokingham, Berkshire. The property is well presented and has been recently updated. It benefits from a good size rear garden and is within easy reach of local amenities and transport links. The asking price of £465,000 is slightly above the average price per square foot for the area, however, given the property’s condition and location, it is likely to be considered good value for money.
Therefore, we give this property 7 / 10. *Disclaimer: This is our option and does constitute a recommendation or financial advice. Do your own research. *
- Price
- 7
- Condition
- 8
- Location
- 8
- Land
- 7
- Bedrooms
- 2
- Bathrooms
- 1
- Sqft (est)
- 335.47
- Lot (est)
- 745.00
The heatmap indicates the level of crime in the area. The color of the heatmap indicates the crime severity and recency.
Metrics Year-on-Year
- Average area value
- 411,429.00 £Decreased by 3.49 %
- Est sale value
- 175,786.28 £Increased by 24.17 %
- Average area rental value
- 1,670.00 £/moIncreased by 1.27 %
- Est letting value
- 670.94 £/moIncreased by 100.00 %
- Est rental Yield
- 4.87 %Increased by 4.96 %
- Crime Rate
- 5.00 %Unchanged by 0.00 %
Agent Activity
Purplebricks created the listing.
Nearby Schools
| Name | Type | Ofsted | Distance |
|---|---|---|---|
| St Crispin'S School | Academy Converter | 0.68 KM | |
| Westende Junior School | Academy Converter | 0.79 KM | |
| Chiltern Way Academy Wokingham | Academy Special Sponsor Led | 0.87 KM | |
| Ludgrove School Trust Limited | Other Independent School | 1.00 KM | |
| Wescott Infant School | Academy Converter | 1.05 KM |
Images
Nearby Streets
| Name | Average Price | Average Sqft | Distance |
|---|---|---|---|
| Southlands Road | £ 0 | 0 | 0.00 KM |
| Binfield Road | £ 0 | 0 | 0.00 KM |
| Erica Drive | £ 0 | 0 | 0.00 KM |
| Tudor Close | £ 0 | 0 | 0.00 KM |
| South Wokingham Distibutor Road | £ 0 | 0 | 0.00 KM |
Nearby Transport
| Name | NLC | TLC | Distance |
|---|---|---|---|
| Wokingham | 5696 | WKM | 2.63 KM |
| Crowthorne | 5628 | CRN | 4.32 KM |
| Sandhurst (Berks) | 5646 | SND | 6.73 KM |
| Winnersh | 5697 | WNS | 6.92 KM |
| Bracknell | 5693 | BCE | 7.54 KM |
Nearby Listings
| Address | Price | Type | Score | Distance |
|---|---|---|---|---|
| Waterloo Road, Wokingham, RG40 | £ 465,000 | BUY | 7 / 10 | 0.00 KM |
| Waterloo Road, Wokingham, Berkshire, RG40 | £ 540,000 | BUY | 7 / 10 | 0.00 KM |
| Waterloo Road, Wokingham, Berkshire, RG40 2JE | £ 450,000 | BUY | 7 / 10 | 0.07 KM |
| Waterloo Road, Wokingham, Berkshire RG40 2JE | £ 375,000 | BUY | 7 / 10 | 0.10 KM |
| Waterloo Crescent, Wokingham | £ 585,000 | BUY | 5 / 10 | 0.10 KM |
Nearby Properties
| Address | Price | Distance |
|---|---|---|
| 45 Waterloo Road | £ 331,000 | 0.01 KM |
| 41 Waterloo Road | £ 289,950 | 0.01 KM |
| 43 Waterloo Road | £ 202,500 | 0.01 KM |
| 15 Waterloo Road | £ 345,000 | 0.01 KM |
| 21 Waterloo Road | £ 450,000 | 0.01 KM |