BE
Newcastle Upon Tyne, NE15 9XJ
By Bellway Homes (North East)
£ 336,995
Reviews
3 out of 5 stars
Bellway Homes (North East) says ..
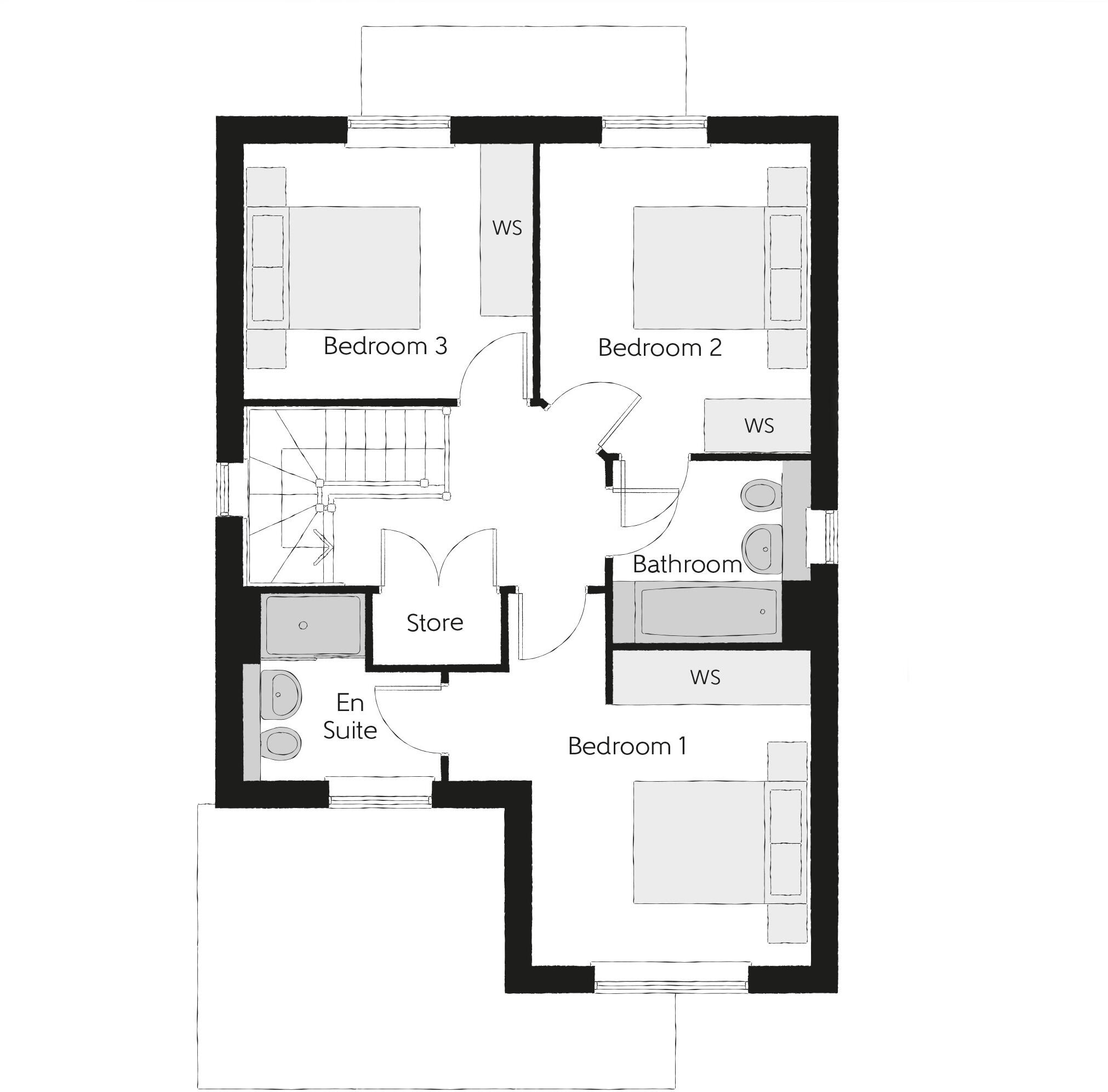
The Sawyer features an OPEN-PLAN kitchen, dining & family area with French doors to the garden, THREE DOUBLE BEDROOMS, en suite & integral garage. Plus is new, chain free & comes with a 10-year NHBC Buildmark policy^
Property Oracle says ..
Therefore, we give this property 7 / 10. *Disclaimer: This is our option and does constitute a recommendation or financial advice. Do your own research. *
- Price
- 7
- Condition
- 9
- Location
- 8
- Land
- 7
- Bedrooms
- 3
- Bathrooms
- 0
- Sqft (est)
- 1,035.00
The heatmap indicates the level of crime in the area. The color of the heatmap indicates the crime severity and recency.
Metrics Year-on-Year
- Average area value
- 314,332.00 £Increased by 25.67 %
- Est sale value
- 292,905.00 £Increased by 18.91 %
- Average area rental value
- 1,032.00 £/moIncreased by 14.67 %
- Est letting value
- 0.00 £/mo
- Est rental Yield
- 3.94 %Decreased by 8.80 %
- Crime Rate
- 15.00 %Unchanged by 0.00 %
from 250,118.00 £
from 246,330.00 £
from 900.00 £/mo
from 0.00 £/mo
from 4.32 %
from 15.00 %
Agent Activity
Bellway Homes (North East) created the listing.
Nearby Schools
| Name | Type | Ofsted | Distance |
|---|---|---|---|
| Knop Law Primary School | Community School | Outstanding | 0.83 KM |
| St Cuthbert'S Catholic Primary School | Academy Converter | 0.98 KM | |
| Talbot House Trust | Non-maintained Special School | Requires improvement | 0.99 KM |
| Walbottle Village Primary School | Academy Converter | Good | 1.04 KM |
| Milecastle Primary School | Foundation School | Good | 1.25 KM |
Images
Nearby Streets
| Name | Average Price | Average Sqft | Distance |
|---|---|---|---|
| The Glade | £ 350,000 | 0 | 0.00 KM |
| Sandpiper Crescent | £ 241,665 | 0 | 0.00 KM |
| Goldcrest Road | £ 0 | 0 | 0.00 KM |
| Peregrine Way | £ 387,475 | 0 | 0.00 KM |
| Falcon Road | £ 295,000 | 0 | 0.00 KM |
Nearby Transport
| Name | NLC | TLC | Distance |
|---|---|---|---|
| Blaydon | 7503 | BLO | 3.80 KM |
| Metrocentre | 7725 | MCE | 8.07 KM |
| Wylam | 7514 | WYM | 9.79 KM |
Nearby Listings
| Address | Price | Type | Score | Distance |
|---|---|---|---|---|
| Newcastle Upon Tyne, NE15 9XJ | £ 389,995 | BUY | 7 / 10 | 0.00 KM |
| Newcastle Upon Tyne, NE15 9XJ | £ 332,995 | BUY | 7 / 10 | 0.00 KM |
| Newcastle Upon Tyne, NE15 9XJ | £ 269,995 | BUY | 7 / 10 | 0.00 KM |
| Newcastle Upon Tyne, NE15 9XJ | £ 389,995 | BUY | 7 / 10 | 0.00 KM |
| Newcastle Upon Tyne, NE15 9XJ | £ 336,995 | BUY | 7 / 10 | 0.00 KM |
Nearby Properties
| Address | Price | Distance |
|---|---|---|
| 6 The Glade | £ 240,000 | 0.00 KM |
| 12 The Glade | £ 208,000 | 0.00 KM |
| 22 The Glade | £ 228,500 | 0.00 KM |
| 4 The Glade | £ 180,000 | 0.00 KM |
| 7 The Glade | £ 183,000 | 0.00 KM |