Mill Tail, Totnes
By Wood's Estate Agents and Auctioneers
£ 195,000
Reviews
2 out of 5 stars
Wood's Estate Agents and Auctioneers says ..
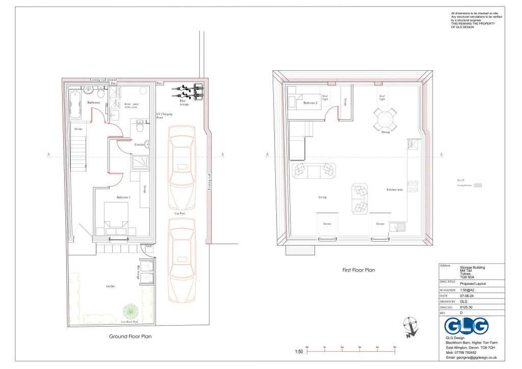
Rare development opportunity! - A commercial store with planning permission to convert/re-build into a two bedroom dwelling with parking and garden located in the centre of Totnes.
Property Oracle says ..
This property is a triple garage located on Fore Street in Totnes, Devon. The listing presents it as a potential development opportunity, with architectural plans suggesting conversion into a residential dwelling. Currently, the garage is in a state of disrepair, with the interior cluttered and requiring significant renovation work. The exterior also needs attention. The location in central Totnes offers convenience, close proximity to amenities, and good transport links via the nearby Totnes train station. However, the limited land area and the substantial renovation costs required are key factors to consider. The plans show a potential conversion into a two-bedroom property, but the final product’s value will depend heavily on the quality of the renovation and the prevailing market conditions. The lack of information on the total square footage of the proposed dwelling makes it difficult to assess the price per square foot and compare it to local market averages. Potential buyers should factor in significant costs associated with renovation and conversion before making a purchase decision. The current state of the property is a major drawback, but the central location and potential for development offer a degree of appeal. A thorough survey and detailed cost assessment are essential for anyone considering this project.
Therefore, we give this property 4 / 10. *Disclaimer: This is our option and does constitute a recommendation or financial advice. Do your own research. *
- Price
- 6
- Condition
- 4
- Location
- 7
- Land
- 2
- Bedrooms
- 0
- Bathrooms
- 0
The heatmap indicates the level of crime in the area. The color of the heatmap indicates the crime severity and recency.
Metrics Year-on-Year
- Average area value
- 418,833.00 £Increased by 5.75 %
- Average area rental value
- 1,017.00 £/moDecreased by 11.64 %
- Est rental Yield
- 2.91 %Decreased by 16.62 %
- Crime Rate
- 128.00 %Unchanged by 0.00 %
Agent Activity
Wood's Estate Agents and Auctioneers created the listing.
Nearby Schools
| Name | Type | Ofsted | Distance |
|---|---|---|---|
| On Track Education - Totnes | Other Independent Special School | Good | 0.44 KM |
| The Grove School | Community School | Outstanding | 0.46 KM |
| Daisy Play Centre Totnes And District Children'S Centre | Children's Centre | 0.75 KM | |
| Roc College (Part Of United Response) | Special Post 16 Institution | Good | 0.77 KM |
| Totnes St John'S Church Of England Primary School | Academy Sponsor Led | 0.90 KM |
Images
Nearby Streets
| Name | Average Price | Average Sqft | Distance |
|---|---|---|---|
| Mansion Way | £ 0 | 0 | 0.00 KM |
| Chapel Lane | £ 0 | 0 | 0.00 KM |
| North Street Mews | £ 325,000 | 0 | 0.00 KM |
| Priory Gardens | £ 0 | 0 | 0.00 KM |
| Heath Court | £ 0 | 0 | 0.00 KM |
Nearby Transport
| Name | NLC | TLC | Distance |
|---|---|---|---|
| Totnes | 3558 | TOT | 0.73 KM |
Nearby Listings
| Address | Price | Type | Score | Distance |
|---|---|---|---|---|
| Mill Tail, Totnes | £ 195,000 | BUY | 4 / 10 | 0.00 KM |
| The Manor House, Coronation Road, Totnes | £ 210,000 | BUY | 5 / 10 | 0.07 KM |
| Coronation Road, Totnes, Devon, TQ9 | £ 120,000 | BUY | 5 / 10 | 0.08 KM |
| Coronation Road, Totnes, TQ9 | £ 170,000 | BUY | 7 / 10 | 0.08 KM |
| Coronation Road, Totnes | £ 150,000 | BUY | 6 / 10 | 0.09 KM |
Nearby Properties
| Address | Price | Distance |
|---|---|---|
| 17a Fore Street | £ 150,000 | 0.05 KM |
| 6a Fore Street | £ 475,000 | 0.06 KM |
| 4a Fore Street | £ 287,000 | 0.06 KM |
| 14a Fore Street | £ 198,000 | 0.06 KM |
| Hope Cottage | £ 300,000 | 0.10 KM |