Purplebricks says ..
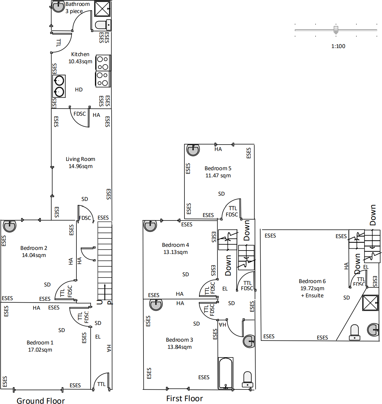
HMO FOR SALE 6 Bedroom HMO, Located HU3 1QL This is a 6 bedroom, fully licensed HMO, it is located in an Article 4 Area. It has been run as a HMO since 2012. The Property has 6 fully let rooms, generating an annual income of £35100. · Room 1 - £555pcm/£6,600py – Occupant since July 2023 · Room 2 ...
Property Oracle says ..
Therefore, we give this property 5 / 10. *Disclaimer: This is our option and does constitute a recommendation or financial advice. Do your own research. *
- Price
- 8
- Condition
- 6
- Location
- 7
- Land
- 1
- Bedrooms
- 6
- Bathrooms
- 3
- Sqft (est)
- 1,233.65
The heatmap indicates the level of crime in the area. The color of the heatmap indicates the crime severity and recency.
Metrics Year-on-Year
- Average area value
- 487,124.00 £Increased by 94.35 %
- Est sale value
- 759,928.40 £Increased by 112.41 %
- Average area rental value
- 1,220.00 £/moIncreased by 6.46 %
- Est letting value
- 1,233.65 £/moUnchanged by 0.00 %
- Est rental Yield
- 3.01 %Decreased by 45.17 %
- Crime Rate
- 11.00 %Unchanged by 0.00 %
from 250,641.00 £
from 357,758.50 £
from 1,146.00 £/mo
from 1,233.65 £/mo
from 5.49 %
from 11.00 %
Agent Activity
Purplebricks created the listing.
Nearby Schools
| Name | Type | Ofsted | Distance |
|---|---|---|---|
| Collingwood Primary School | Academy Converter | 0.27 KM | |
| Marvell House Children'S Centre | Children's Centre Linked Site | 0.32 KM | |
| Pearson Primary School | Academy Converter | Good | 0.35 KM |
| St Charles Voluntary Catholic Academy | Academy Sponsor Led | 0.89 KM | |
| Froebel House School | Other Independent School | Good | 0.98 KM |
Images
Nearby Streets
| Name | Average Price | Average Sqft | Distance |
|---|---|---|---|
| Browning Close | £ 0 | 0 | 0.00 KM |
| Stanley Street | £ 0 | 0 | 0.00 KM |
| Cavendish Square | £ 0 | 0 | 0.00 KM |
| Trafalgar Street | £ 0 | 0 | 0.00 KM |
| Park Road | £ 130,000 | 0 | 0.00 KM |
Nearby Transport
| Name | NLC | TLC | Distance |
|---|---|---|---|
| Hull | 8126 | HUL | 1.20 KM |
| New Holland | 6209 | NHL | 5.56 KM |
| Cottingham | 8056 | CGM | 6.73 KM |
| Barrow Haven | 6212 | BAV | 7.42 KM |
| Goxhill | 6206 | GOX | 8.52 KM |
Nearby Listings
| Address | Price | Type | Score | Distance |
|---|---|---|---|---|
| Hutt Street, Hull, HU3 | £ 210,000 | BUY | Unknown | 0.00 KM |
| Hutt Street, Hull, HU3 | £ 225,000 | BUY | 5 / 10 | 0.00 KM |
| Hutt Street, Hull, HU3 | £ 190,000 | BUY | 5 / 10 | 0.00 KM |
| Flat 1, 15 Hutt Street, Hull, East Yorkshire, HU3 1QL | £ 25,000 | BUY | 6 / 10 | 0.01 KM |
| Flat 1, 15 Hutt Street, Hull, East Yorkshire, HU3 1QL | £ 22,000 | BUY | 5 / 10 | 0.01 KM |
Nearby Properties
| Address | Price | Distance |
|---|---|---|
| 46 Peel Street | £ 120,000 | 0.07 KM |
| 43 Peel Street | £ 155,000 | 0.07 KM |
| 48 Peel Street | £ 110,000 | 0.07 KM |
| 18 Peel Street | £ 154,000 | 0.07 KM |
| 52 Peel Street | £ 175,000 | 0.07 KM |