Crown Road, Borehamwood
By Carrington Estate Agents
£ 350,000
Reviews
3 out of 5 stars
Carrington Estate Agents says ..
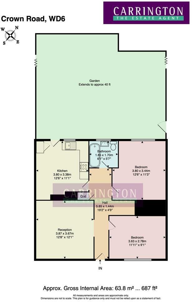
A rarely available two bedroom GROUND FLOOR GARDEN maisonette. Situated a quiet residential avenue the property comprises of a spacious lounge, large kitchen, two double bedrooms and modern bathroom. The property offers ample storage as well as being gas centrally heated and double glazed. The fr...
Property Oracle says ..
This two-bedroom maisonette in Borehamwood, Hertfordshire, is situated on Crown Road, benefitting from a relatively quiet residential setting. Its proximity to well-regarded primary schools and Borehamwood’s transport links is an advantage for families or commuters. The property itself presents a generally well-maintained exterior and interior. Photos indicate a reasonably sized garden and a decent living space, albeit with a kitchen and bathroom that appear in need of some updating. The listed price falls within a reasonable range when considering neighboring properties, although more specific local data would refine this valuation. The lack of plot size information leaves some questions unanswered about the overall property value, and without a complete picture of the property’s internal features and condition, a final assessment on potential ROI is difficult to make. In conclusion, the property offers a solid foundation for a comfortable family home, but potential buyers should factor in the possibility of renovations to maximise its value.
Therefore, we give this property 6 / 10. *Disclaimer: This is our option and does constitute a recommendation or financial advice. Do your own research. *
- Price
- 7
- Condition
- 6
- Location
- 7
- Land
- 4
- Bedrooms
- 2
- Bathrooms
- 1
- Sqft (est)
- 687.00
The heatmap indicates the level of crime in the area. The color of the heatmap indicates the crime severity and recency.
Metrics Year-on-Year
- Average area value
- 389,998.00 £Decreased by 21.89 %
- Est sale value
- 394,338.00 £Increased by 1.77 %
- Average area rental value
- 1,617.00 £/moDecreased by 8.80 %
- Est letting value
- 1,374.00 £/moUnchanged by 0.00 %
- Est rental Yield
- 4.98 %Increased by 16.90 %
- Crime Rate
- 14.00 %Unchanged by 0.00 %
Agent Activity
Carrington Estate Agents created the listing.
Nearby Schools
| Name | Type | Ofsted | Distance |
|---|---|---|---|
| Woodlands Primary School | Community School | Good | 0.21 KM |
| Cowley Hill School | Community School | Good | 0.30 KM |
| Hertswood Academy | Academy Converter | Requires improvement | 0.81 KM |
| St Teresa Catholic Primary School | Voluntary Aided School | Good | 0.86 KM |
| Parkside Community Primary School | Foundation School | Good | 0.88 KM |
Images
Nearby Streets
| Name | Average Price | Average Sqft | Distance |
|---|---|---|---|
| Reston Close | £ 397,475 | 0 | 0.00 KM |
| Northfield Road | £ 0 | 0 | 0.00 KM |
| Retford Close | £ 500,000 | 0 | 0.00 KM |
| Meadow Road | £ 0 | 0 | 0.00 KM |
| Barnsdale Close | £ 385,000 | 0 | 0.00 KM |
Nearby Transport
| Name | NLC | TLC | Distance |
|---|---|---|---|
| Elstree And Borehamwood | 1542 | ELS | 1.76 KM |
| Radlett | 1546 | RDT | 5.22 KM |
| Mill Hill Broadway | 1527 | MIL | 6.63 KM |
| Potters Bar | 6022 | PBR | 9.54 KM |
| How Wood (Hertfordshire) | 1563 | HWW | 9.65 KM |
Nearby Listings
| Address | Price | Type | Score | Distance |
|---|---|---|---|---|
| Crown Road, Borehamwood | £ 350,000 | BUY | 6 / 10 | 0.00 KM |
| Aycliffe Road, Borehamwood, Hertfordshire, WD6 | £ 535,000 | BUY | 6 / 10 | 0.13 KM |
| Aycliffe Road, Borehamwood | £ 550,000 | BUY | Unknown | 0.15 KM |
| Reston Path, Borehamwood | £ 375,000 | BUY | 6 / 10 | 0.18 KM |
| Reston Path, Borehamwood | £ 650,000 | BUY | 7 / 10 | 0.18 KM |
Nearby Properties
| Address | Price | Distance |
|---|---|---|
| 5 Crown Road | £ 335,000 | 0.02 KM |
| 93 Crown Road | £ 250,000 | 0.02 KM |
| 85 Crown Road | £ 63,700 | 0.02 KM |
| 49 Crown Road | £ 192,000 | 0.02 KM |
| 43 Crown Road | £ 340,000 | 0.02 KM |