Preston New Road, Blackburn, Blackburn, BB2 6BN
By Pattinson Estate Agents
£ 350,000
Reviews
2 out of 5 stars
Pattinson Estate Agents says ..
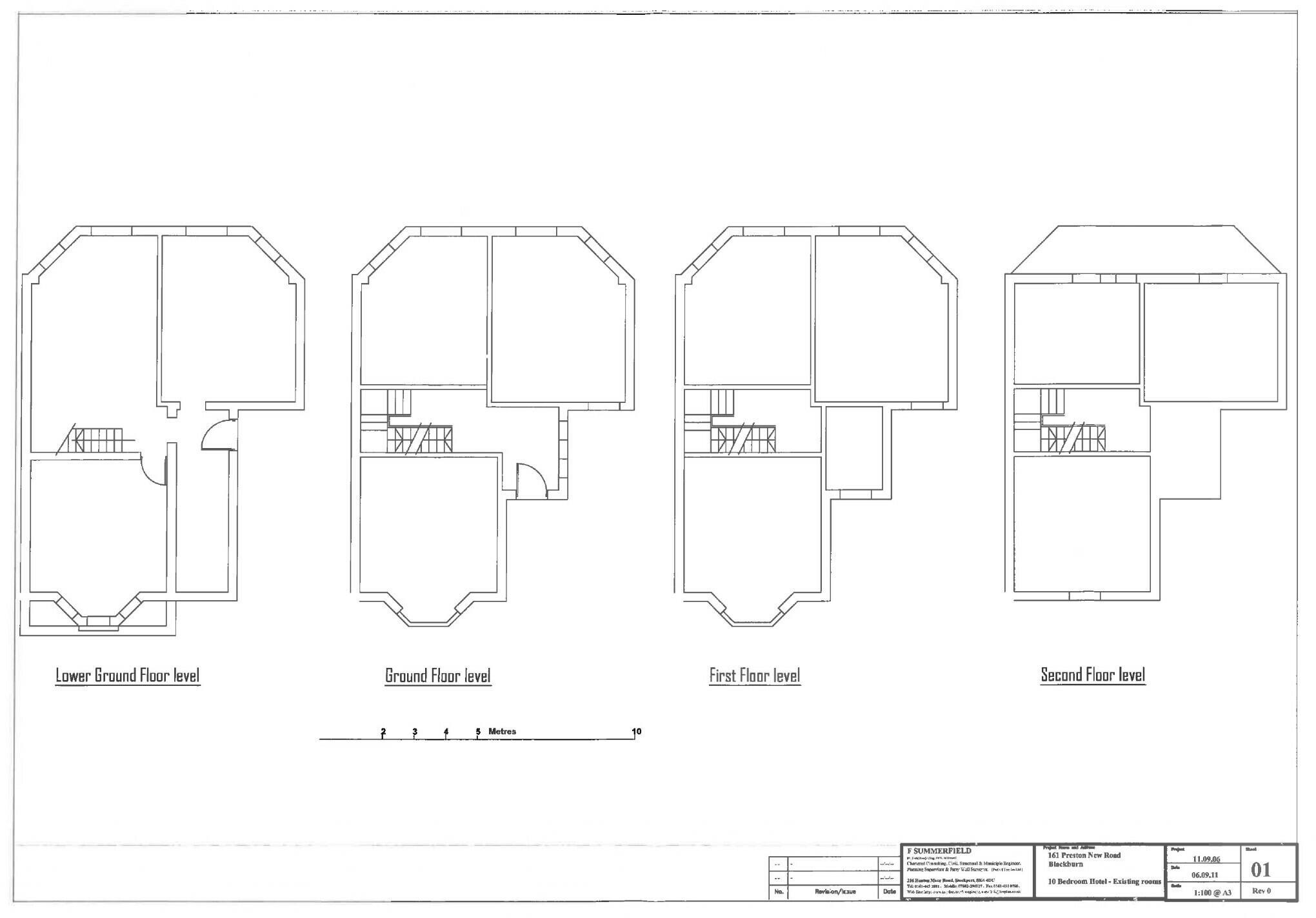
A fantastic opportunity to acquire this extremely large extended end of terrace property which has the potential for a HMO, offices or apartments subject to planning permission and is located close by to Blackburn Town Centre. The property has a total of 16 rooms and viewings are highly reco...
Property Oracle says ..
Therefore, we give this property 4 / 10. *Disclaimer: This is our option and does constitute a recommendation or financial advice. Do your own research. *
- Price
- 5
- Condition
- 2
- Location
- 7
- Land
- 3
- Bedrooms
- 10
- Bathrooms
- 4
- Sqft (est)
- 2,368.06
The heatmap indicates the level of crime in the area. The color of the heatmap indicates the crime severity and recency.
Metrics Year-on-Year
- Average area value
- 222,500.00 £Increased by 57.52 %
- Est sale value
- 845,397.42 £Increased by 233.64 %
- Average area rental value
- 450.00 £/moDecreased by 12.96 %
- Est letting value
- 0.00 £/mo
- Est rental Yield
- 2.43 %Decreased by 44.65 %
- Crime Rate
- 10.00 %Unchanged by 0.00 %
from 141,252.00 £
from 253,382.42 £
from 517.00 £/mo
from 0.00 £/mo
from 4.39 %
from 10.00 %
Agent Activity
Pattinson Estate Agents created the listing.
Nearby Schools
| Name | Type | Ofsted | Distance |
|---|---|---|---|
| Dar Ul Madinah | Other Independent School | Inadequate | 0.34 KM |
| Wensley Fold Children'S Centre | Children's Centre | 0.41 KM | |
| Sacred Heart Roman Catholic Primary School Blackburn | Voluntary Aided School | Requires improvement | 0.57 KM |
| St Silas'S Cofe Primary School | Academy Sponsor Led | 0.57 KM | |
| Ashworth Nursery School | Local Authority Nursery School | Outstanding | 0.67 KM |
Images
Nearby Streets
| Name | Average Price | Average Sqft | Distance |
|---|---|---|---|
| Leamington Close | £ 0 | 0 | 0.00 KM |
| St Barnabas Street | £ 0 | 0 | 0.00 KM |
| Leamington Road | £ 210,000 | 0 | 0.00 KM |
| Wensley Road | £ 0 | 0 | 0.00 KM |
| Granville Road | £ 210,000 | 0 | 0.00 KM |
Nearby Transport
| Name | NLC | TLC | Distance |
|---|---|---|---|
| Mill Hill (Lancs) | 2750 | MLH | 1.52 KM |
| Blackburn | 2737 | BBN | 2.37 KM |
| Cherry Tree | 2573 | CYT | 2.69 KM |
| Ramsgreave And Wilpshire | 2734 | RGW | 4.21 KM |
| Pleasington | 2752 | PLS | 5.24 KM |
Nearby Listings
| Address | Price | Type | Score | Distance |
|---|---|---|---|---|
| Preston New Road, Blackburn, Blackburn, BB2 6BN | £ 350,000 | BUY | 4 / 10 | 0.00 KM |
| Preston New Road, Blackburn, Lancashire, BB2 | £ 325,000 | BUY | 6 / 10 | 0.06 KM |
| Preston New Road, Blackburn | £ 325,000 | BUY | 4 / 10 | 0.11 KM |
| 21 Bromley Street, Blackburn BB2 6LJ | £ 40,000 | BUY | 5 / 10 | 0.12 KM |
| Ribblesdale Place, Blackburn | £ 125,000 | BUY | 5 / 10 | 0.12 KM |
Nearby Properties
| Address | Price | Distance |
|---|---|---|
| 40 Palatine Road | £ 70,000 | 0.03 KM |
| 38 Palatine Road | £ 92,350 | 0.03 KM |
| 50 Palatine Road | £ 93,000 | 0.03 KM |
| 44 Palatine Road | £ 50,000 | 0.03 KM |
| 42 Palatine Road | £ 75,000 | 0.03 KM |