Pentre House, Chester Road, Pentre, Deeside, Flintshire
By HMO Sales Expert
£ 600,000
Reviews
2 out of 5 stars
HMO Sales Expert says ..
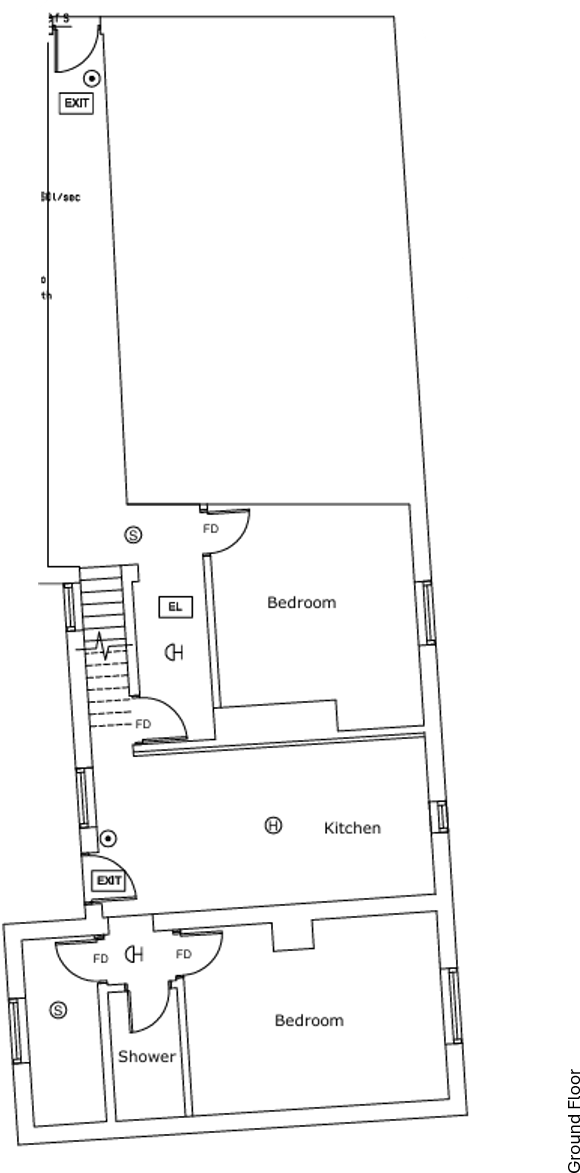
This fully tenanted 11-bed HMO with a commercial unit in Deeside offers a 12.04% gross yield and 9.21% net yield, benefiting from strong tenant demand near major employers like Airbus and Tata Steel. With excellent transport links, no management fees, and ongoing regeneration, this mixed-use inve...
Property Oracle says ..
Pentre House is a House of Multiple Occupation (HMO) located in Pentre, Deeside, Flintshire. The property benefits from being close to local amenities and transport links, including several train stations within a few kilometers. There are also several primary schools within a reasonable distance. However, the property is situated on a main road, which may be a consideration for potential tenants. The list price of £600,000 seems significantly high compared to the average house price in the area and the average price per square foot. Considering the relatively small plot size and the fact that it is an HMO, the price may not represent good value for money. The property appears to be in good condition based on the provided images, with modern fixtures and fittings. The lack of external space is a notable drawback.
Therefore, we give this property 4 / 10. *Disclaimer: This is our option and does constitute a recommendation or financial advice. Do your own research. *
- Price
- 3
- Condition
- 8
- Location
- 7
- Land
- 1
- Bedrooms
- 11
- Bathrooms
- 9
- Sqft (est)
- 740.00
The heatmap indicates the level of crime in the area. The color of the heatmap indicates the crime severity and recency.
Metrics Year-on-Year
- Average area value
- 267,500.00 £Decreased by 0.99 %
- Est sale value
- 190,180.00 £Increased by 5.33 %
- Average area rental value
- 1,107.00 £/moDecreased by 6.11 %
- Est letting value
- 740.00 £/moUnchanged by 0.00 %
- Est rental Yield
- 4.97 %Decreased by 5.15 %
- Crime Rate
- 13.00 %Unchanged by 0.00 %
Agent Activity
HMO Sales Expert created the listing.
Nearby Schools
| Name | Type | Ofsted | Distance |
|---|---|---|---|
| Sandycroft C.P. School | Welsh Establishment | 0.26 KM | |
| Sealand C.P. School | Welsh Establishment | 1.52 KM | |
| Queens Ferry C.P. School | Welsh Establishment | 2.42 KM | |
| St Ethelwold'S Primary School | Welsh Establishment | 3.24 KM | |
| Plas Derwen | Welsh Establishment | 3.60 KM |
Images
Nearby Streets
| Name | Average Price | Average Sqft | Distance |
|---|---|---|---|
| Fford Pentre | £ 0 | 0 | 0.00 KM |
| Fairway | £ 203,333 | 0 | 0.00 KM |
| Deiniol's Road | £ 110,000 | 0 | 0.00 KM |
| Orchard Close | £ 210,000 | 0 | 0.00 KM |
| Moor Lane | £ 0 | 0 | 0.00 KM |
Nearby Transport
| Name | NLC | TLC | Distance |
|---|---|---|---|
| Hawarden | 2428 | HWD | 2.92 KM |
| Hawarden Bridge | 2146 | HWB | 3.24 KM |
| Shotton | 2546 | SHT | 3.45 KM |
| Buckley | 2422 | BCK | 6.51 KM |
| Penyffordd | 2433 | PNF | 8.01 KM |
Nearby Listings
| Address | Price | Type | Score | Distance |
|---|---|---|---|---|
| Church View, Pentre, Deeside, Flintshire, CH5 2DP | £ 120,000 | BUY | Unknown | 0.06 KM |
| Church View, Pentre, CH5 | £ 120,000 | BUY | 7 / 10 | 0.09 KM |
| Chester Road, DEESIDE, Clwyd, CH5 | £ 400,000 | BUY | 7 / 10 | 0.10 KM |
| Chester Road, Pentre, Deeside | £ 179,950 | BUY | Unknown | 0.10 KM |
| Foxes Close, Mancot, Deeside | £ 145,000 | BUY | 7 / 10 | 0.36 KM |
Nearby Properties
| Address | Price | Distance |
|---|---|---|
| Llys Ann | £ 185,000 | 0.05 KM |
| The Hollies | £ 117,500 | 0.05 KM |
| The Wynt | £ 103,000 | 0.05 KM |
| 4 Church View | £ 99,000 | 0.07 KM |
| 5 Church View | £ 96,000 | 0.07 KM |