Anthony Crescent, Whitstable
CH

Anthony Crescent, Whitstable

By Christopher Hodgson

£ 325,000

Reviews

3 out of 5 stars

Christopher Hodgson says ..

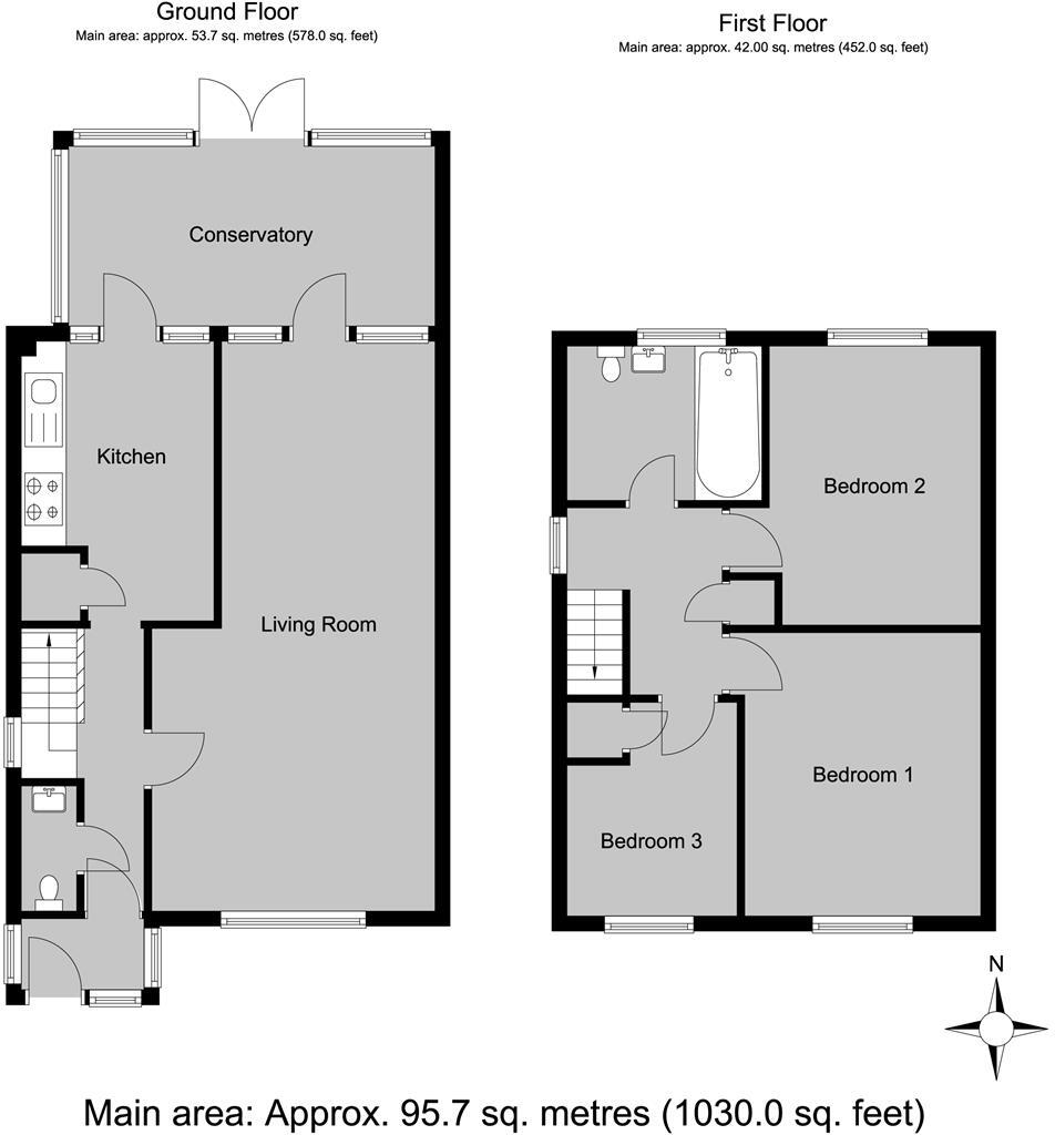
This spacious semi-detached family home enjoys views towards the sea and across the Swale Estuary from the first floor and is ideally situated close to bus routes, a short stroll to the beach and easily accessible to Whitstable's bustling town centre, with its array of highly regarded restaurants...

Property Oracle says ..

This semi-detached property on Anthony Crescent in Whitstable offers a blend of potential and practicality. The house features three bedrooms and one bathroom, making it suitable for small families or couples. While the bathroom has been updated, the kitchen and other areas could benefit from modernization. The inclusion of front and back gardens adds to the property’s appeal, providing valuable outdoor space. Located in a desirable coastal town with proximity to schools and transportation, this property represents a solid investment with room for improvement.

Therefore, we give this property 7 / 10. *Disclaimer: This is our option and does constitute a recommendation or financial advice. Do your own research. *

Price
8
Condition
6
Location
7
Land
7
Bedrooms
3
Bathrooms
1

The heatmap indicates the level of crime in the area. The color of the heatmap indicates the crime severity and recency.

Metrics Year-on-Year

Average area value
970,000.00 £
Increased by 100.79 %
from 483,087.00 £
Average area rental value
1,600.00 £/mo
Decreased by 26.03 %
from 2,163.00 £/mo
Est rental Yield
1.98 %
Decreased by 63.13 %
from 5.37 %
Crime Rate
4.00 %
Unchanged by 0.00 %
from 4.00 %

Agent Activity

  • Christopher Hodgson created the listing.

Nearby Schools

NameTypeOfstedDistance
Joy Lane Primary Foundation SchoolFoundation SchoolGood0.92 KM
Joy Lane Children'S CentreChildren's Centre1.03 KM
St Alphege Church Of England Infant SchoolVoluntary Controlled SchoolGood2.11 KM
Whitstable Junior SchoolFoundation SchoolGood2.12 KM
Whitstable And Seasalter Endowed Church Of England Junior SchoolVoluntary Aided SchoolOutstanding2.37 KM

Images

Anthony Crescent, Whitstable Anthony Crescent, Whitstable Anthony Crescent, Whitstable Anthony Crescent, Whitstable Anthony Crescent, Whitstable Anthony Crescent, Whitstable Anthony Crescent, Whitstable Anthony Crescent, Whitstable Anthony Crescent, Whitstable Anthony Crescent, Whitstable Anthony Crescent, Whitstable Anthony Crescent, Whitstable Anthony Crescent, Whitstable Anthony Crescent, Whitstable Anthony Crescent, Whitstable Anthony Crescent, Whitstable

Nearby Streets

NameAverage PriceAverage SqftDistance
Sunray Avenue (CW75) £ 300,00000.00 KM
The Heights £ 350,00000.00 KM
Church Court £ 740,00000.00 KM
Freeman's Close £ 000.00 KM
Applegarth Park £ 153,40800.00 KM

Nearby Transport

NameNLCTLCDistance
Whitstable5196WHI2.98 KM
Chestfield And Swalecliffe5200CSW6.53 KM
Chartham5008CRT9.65 KM
Canterbury West5007CBW9.77 KM

Nearby Listings

AddressPriceTypeScoreDistance
Anthony Crescent, Whitstable £ 325,000BUY7 / 100.00 KM
Anthony Crescent, Whitstable, CT5 £ 335,000BUY6 / 100.04 KM
Major Close, Whitstable £ 580,000BUY7 / 100.07 KM
Nightingale Avenue, Whitstable £ 429,950BUY8 / 100.16 KM
Goldcrest Walk, Whitstable, Kent £ 350,000BUY7 / 100.16 KM

Nearby Properties

AddressPriceDistance
24 Anthony Crescent £ 189,0000.06 KM
1 Anthony Crescent £ 280,0000.06 KM
23 Anthony Crescent £ 233,0000.06 KM
2 Anthony Crescent £ 262,5000.06 KM
21a Anthony Crescent £ 360,0000.06 KM