BR
Grey Street, North Shields
By Brannen & Partners
£ 270,000
Reviews
3 out of 5 stars
Brannen & Partners says ..
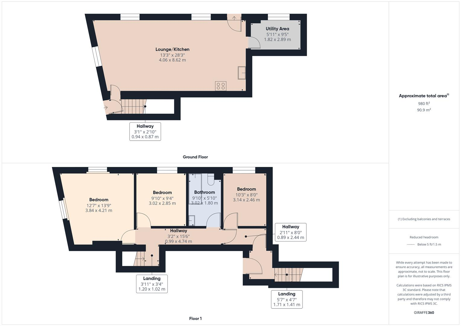
NEWLY REFURBISHED, BEAUTIFULLY DESIGNED THREE BEDROOM END TERRACED PROPERTY, WITH FRONT TERRACE AND ADDITIONAL REAR COMMUNAL COURTYARD OFFERED WITH NO UPPER CHAIN Brannen & Partners are thrilled to welcome to the market this striking and stylish three bedroom end terraced house which has...
Property Oracle says ..
Therefore, we give this property 7 / 10. *Disclaimer: This is our option and does constitute a recommendation or financial advice. Do your own research. *
- Price
- 7
- Condition
- 9
- Location
- 7
- Land
- 6
- Bedrooms
- 3
- Bathrooms
- 1
- Sqft (est)
- 959.50
- Lot (est)
- 978.44
The heatmap indicates the level of crime in the area. The color of the heatmap indicates the crime severity and recency.
Metrics Year-on-Year
- Average area value
- 911,990.00 £Increased by 52.54 %
- Est sale value
- 458,641.00 £Decreased by 4.59 %
- Average area rental value
- 1,200.00 £/moDecreased by 18.81 %
- Est letting value
- 0.00 £/moDecreased by 100.00 %
- Est rental Yield
- 1.58 %Decreased by 46.80 %
- Crime Rate
- 5.00 %Unchanged by 0.00 %
from 597,864.00 £
from 480,709.50 £
from 1,478.00 £/mo
from 959.50 £/mo
from 2.97 %
from 5.00 %
Agent Activity
Brannen & Partners created the listing.
Nearby Schools
| Name | Type | Ofsted | Distance |
|---|---|---|---|
| King Edward Primary School | Foundation School | Good | 0.65 KM |
| Christ Church Cofe Primary School | Voluntary Aided School | Good | 0.83 KM |
| Sir James Knott Memorial Nursery School | Local Authority Nursery School | Good | 0.86 KM |
| Hadrian Primary School | Community School | Outstanding | 1.31 KM |
| Southlands School | Foundation Special School | Good | 1.36 KM |
Images
Nearby Streets
| Name | Average Price | Average Sqft | Distance |
|---|---|---|---|
| Queen Street | £ 0 | 0 | 0.00 KM |
| Park Avenue | £ 375,000 | 0 | 0.00 KM |
| Charlotte Street | £ 250,000 | 0 | 0.00 KM |
| St. Leonards Court | £ 699,950 | 0 | 0.00 KM |
| Walker Place | £ 300,000 | 0 | 0.00 KM |
Nearby Listings
| Address | Price | Type | Score | Distance |
|---|---|---|---|---|
| Grey Street, North Shields | £ 270,000 | BUY | 7 / 10 | 0.00 KM |
| Grey Street, North Shields, NE30 | £ 135,000 | BUY | Unknown | 0.07 KM |
| Coburg Street, North Shields, Tyne and Wear, NE30 2HX | £ 150,000 | BUY | 5 / 10 | 0.09 KM |
| Tynemouth Road, North Shields, NE30 | £ 229,950 | BUY | Unknown | 0.09 KM |
| Tynemouth Road, North Shields | £ 200,000 | BUY | Unknown | 0.09 KM |
Nearby Properties
| Address | Price | Distance |
|---|---|---|
| 46 Coburg Street | £ 55,000 | 0.03 KM |
| 68 Coburg Street | £ 115,000 | 0.03 KM |
| 6 Coburg Street | £ 49,500 | 0.03 KM |
| 70 Coburg Street | £ 115,000 | 0.03 KM |
| 36 Coburg Street | £ 124,999 | 0.03 KM |