Chancellors says ..
Presenting to market with no onward chain, a two bed apartment located in Slough. Close to shopping, transport and schooling facilities. Comes with a communal gym and allocated parking. Viewings highly recommended
Property Oracle says ..
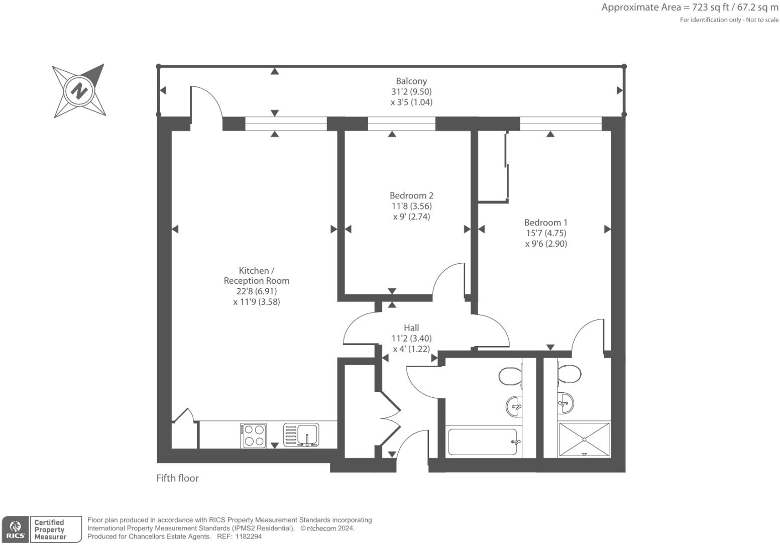
This two-bedroom apartment in Slough, Berkshire, presents a modern and well-maintained living space. The property boasts a contemporary design with a recently updated kitchen and bathroom, creating a clean and stylish feel. The inclusion of a balcony adds a valuable outdoor element, though it’s limited in size. The location is convenient, offering proximity to Slough train station, which is a major advantage for commuters. Several well-regarded schools are also within walking distance, making it attractive for families. However, the lack of detailed plot size data prevents a complete analysis of the land’s contribution to the overall value. The lack of comprehensive information on the property size compared to local properties makes it slightly harder to fully judge if the property is priced fairly; however, when considering the modern finish of the property and access to transport links, the price is reasonable. Overall, this property would be a suitable option for first-time buyers, young professionals, or investors seeking a modern apartment in a convenient location. Further research into average prices per square foot in the immediate vicinity would provide a more precise evaluation of its value.
Therefore, we give this property 6 / 10. *Disclaimer: This is our option and does constitute a recommendation or financial advice. Do your own research. *
- Price
- 7
- Condition
- 9
- Location
- 7
- Land
- 1
- Bedrooms
- 2
- Bathrooms
- 1
- Sqft (est)
- 723.00
The heatmap indicates the level of crime in the area. The color of the heatmap indicates the crime severity and recency.
Metrics Year-on-Year
- Average area value
- 502,500.00 £Increased by 49.31 %
- Est sale value
- 512,607.00 £Increased by 458.27 %
- Average area rental value
- 1,786.00 £/moIncreased by 36.02 %
- Est letting value
- 1,446.00 £/mo
- Est rental Yield
- 4.27 %Decreased by 8.76 %
- Crime Rate
- 8.00 %Unchanged by 0.00 %
Agent Activity
Chancellors created the listing.
Nearby Schools
| Name | Type | Ofsted | Distance |
|---|---|---|---|
| Darul Madinah | Other Independent Special School | 0.61 KM | |
| Slough And Eton Church Of England Business And Enterprise College | Academy Converter | Outstanding | 0.68 KM |
| Littledown School | Academy Special Converter | Good | 0.95 KM |
| James Elliman Academy | Academy Sponsor Led | Good | 1.16 KM |
| Elliman Avenue Children'S Centre | Children's Centre | 1.18 KM |
Images
Nearby Streets
| Name | Average Price | Average Sqft | Distance |
|---|---|---|---|
| Finefield Walk1 | £ 457,000 | 0 | 0.00 KM |
| Heritage Walk | £ 0 | 0 | 0.00 KM |
| Arthur Road | £ 547,500 | 0 | 0.00 KM |
| Newbery Way | £ 0 | 0 | 0.00 KM |
| Chapel Street | £ 0 | 0 | 0.00 KM |
Nearby Transport
| Name | NLC | TLC | Distance |
|---|---|---|---|
| Slough | 3172 | SLO | 1.07 KM |
| Windsor And Eton Riverside | 5672 | WNR | 2.78 KM |
| Windsor And Eton Central | 3175 | WNC | 3.15 KM |
| Datchet | 5668 | DAT | 3.83 KM |
| Burnham | 3176 | BNM | 5.24 KM |
Nearby Listings
| Address | Price | Type | Score | Distance |
|---|---|---|---|---|
| Brickfield Court, Slough, SL1, SL1 | £ 150,000 | BUY | 6 / 10 | 0.00 KM |
| Slough, Berkshire, SL1 | £ 250,000 | BUY | 6 / 10 | 0.00 KM |
| Adelphi Gardens, Slough, SL1 | £ 220,000 | BUY | Unknown | 0.06 KM |
| Adelphi Gardens, Slough, SL1 | £ 215,000 | BUY | 4 / 10 | 0.06 KM |
| Adelphi Gardens, Slough, SL1 | £ 250,000 | BUY | 6 / 10 | 0.06 KM |
Nearby Properties
| Address | Price | Distance |
|---|---|---|
| 50 Adelphi Gardens | £ 145,000 | 0.07 KM |
| 28 Adelphi Gardens | £ 119,000 | 0.07 KM |
| 62 Adelphi Gardens | £ 200,000 | 0.07 KM |
| 8 Adelphi Gardens | £ 245,000 | 0.07 KM |
| 64 Adelphi Gardens | £ 148,500 | 0.07 KM |