Queens Road, Fratton, Portsmouth
By Parsons Son & Basley
£ 280,000
Reviews
3 out of 5 stars
Parsons Son & Basley says ..
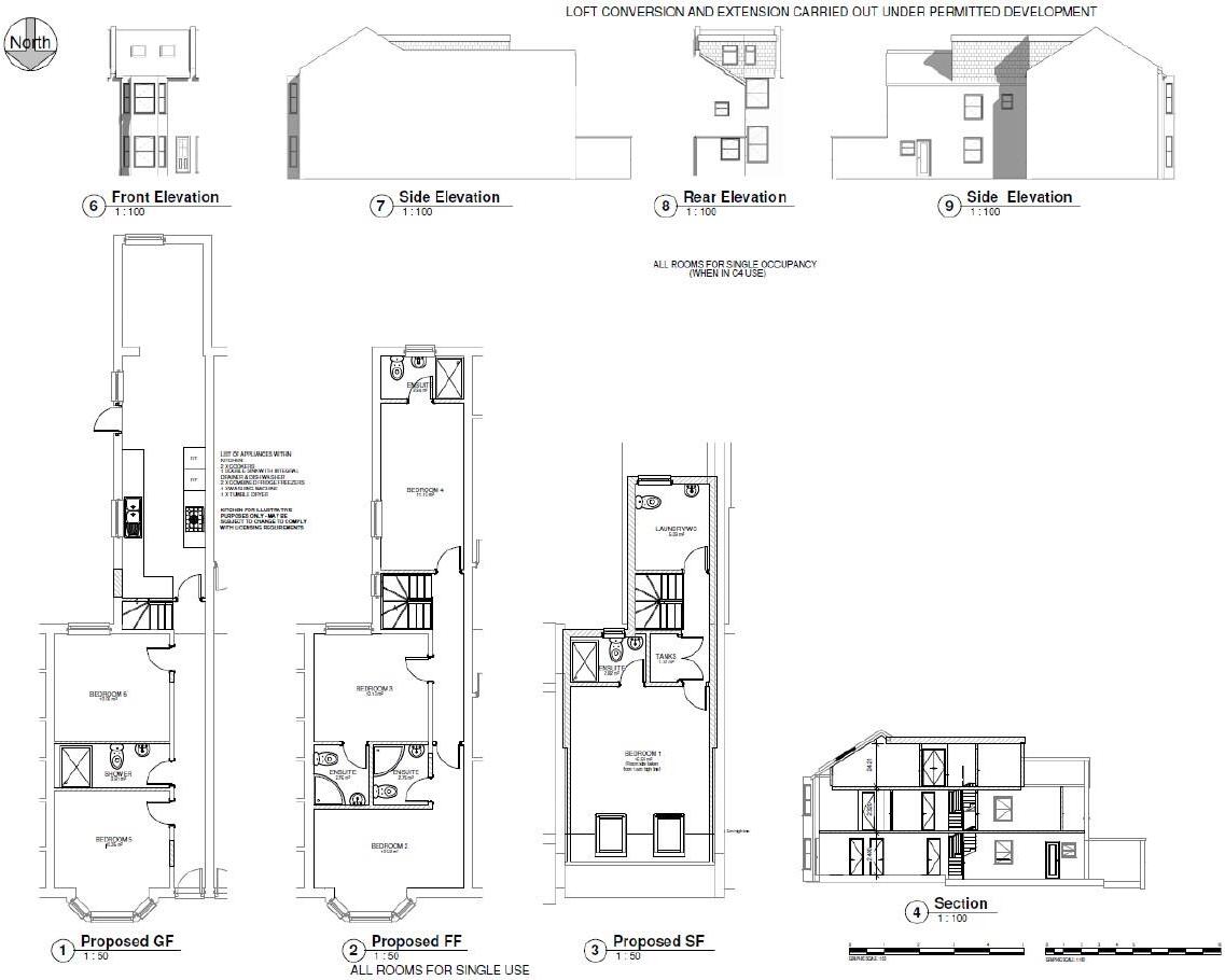
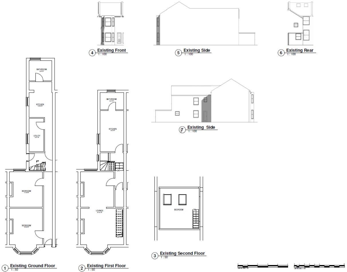
Coming to the market soon with planning permission granted for a 6-bed HMO, this substantial three-storey property offers exceptional investment potential. With generous room sizes, two existing kitchens, and a highly adaptable layout, it’s perfectly suited for conversion into a high-yield multi-...
Property Oracle says ..
This is a 3-bedroom house located on Queens Road in Fratton, Portsmouth. The property offers a substantial 1,684 sqft of living space and includes a garden. While the location is convenient, with proximity to schools and transportation, the property’s condition suggests that it requires some renovation and updating. The price is slightly above the local average, but the size of the property could justify the premium, especially for buyers looking for a larger home with the potential to add value through improvements.
Therefore, we give this property 6 / 10. *Disclaimer: This is our option and does constitute a recommendation or financial advice. Do your own research. *
- Price
- 7
- Condition
- 5
- Location
- 7
- Land
- 6
- Bedrooms
- 3
- Bathrooms
- 2
- Sqft (est)
- 1,684.00
The heatmap indicates the level of crime in the area. The color of the heatmap indicates the crime severity and recency.
Metrics Year-on-Year
- Average area value
- 225,874.00 £Increased by 4.56 %
- Est sale value
- 591,084.00 £Increased by 35.00 %
- Average area rental value
- 914.00 £/moDecreased by 25.20 %
- Est letting value
- 1,684.00 £/moUnchanged by 0.00 %
- Est rental Yield
- 4.86 %Decreased by 28.42 %
- Crime Rate
- 5.00 %Unchanged by 0.00 %
Agent Activity
Parsons Son & Basley created the listing.
Nearby Schools
| Name | Type | Ofsted | Distance |
|---|---|---|---|
| North End And Willows Children'S Centre | Children's Centre | 0.23 KM | |
| New Horizons Primary School | Academy Converter | Good | 0.27 KM |
| Manor Infant And Nursery School | Community School | Good | 0.51 KM |
| Newbridge Junior School | Academy Converter | Good | 0.57 KM |
| The Portsmouth Academy | Academy Sponsor Led | Good | 0.78 KM |
Images
Nearby Streets
| Name | Average Price | Average Sqft | Distance |
|---|---|---|---|
| Drayton Road | £ 297,500 | 0 | 0.00 KM |
| Emsworth Road | £ 229,995 | 0 | 0.00 KM |
| Balfour Road | £ 0 | 0 | 0.00 KM |
| Fearon Road | £ 307,500 | 0 | 0.00 KM |
| Fourth Street | £ 0 | 0 | 0.00 KM |
Nearby Transport
| Name | NLC | TLC | Distance |
|---|---|---|---|
| Fratton | 5509 | FTN | 1.65 KM |
| Portsmouth And Southsea | 5537 | PMS | 2.36 KM |
| Hilsea | 5539 | HLS | 2.53 KM |
| Cosham | 5896 | CSA | 3.50 KM |
| Portsmouth Harbour | 5540 | PMH | 4.08 KM |
Nearby Listings
| Address | Price | Type | Score | Distance |
|---|---|---|---|---|
| Queens Road, Fratton, Portsmouth | £ 280,000 | BUY | 6 / 10 | 0.00 KM |
| Queens Road, Fratton, Portsmouth, PO2 | £ 230,000 | BUY | 5 / 10 | 0.01 KM |
| Queens Road | £ 315,000 | BUY | Unknown | 0.09 KM |
| Langley Road, Copnor/Bucland, Portsmouth, Hampshire, PO2 7PU | £ 219,995 | BUY | 6 / 10 | 0.13 KM |
| Powerscourt Road, Portsmouth, PO2 | £ 325,000 | BUY | Unknown | 0.14 KM |
Nearby Properties
| Address | Price | Distance |
|---|---|---|
| 104 Queens Road | £ 200,000 | 0.00 KM |
| 82 Queens Road | £ 140,000 | 0.01 KM |
| 94 Queens Road | £ 205,000 | 0.01 KM |
| 86 Queens Road | £ 225,000 | 0.01 KM |
| 88 Queens Road | £ 151,950 | 0.01 KM |