Balshagray Avenue, Jordanhill, Glasgow
RE

Balshagray Avenue, Jordanhill, Glasgow

By Rettie & Co

£ 539,000

Reviews

3 out of 5 stars

Rettie & Co says ..

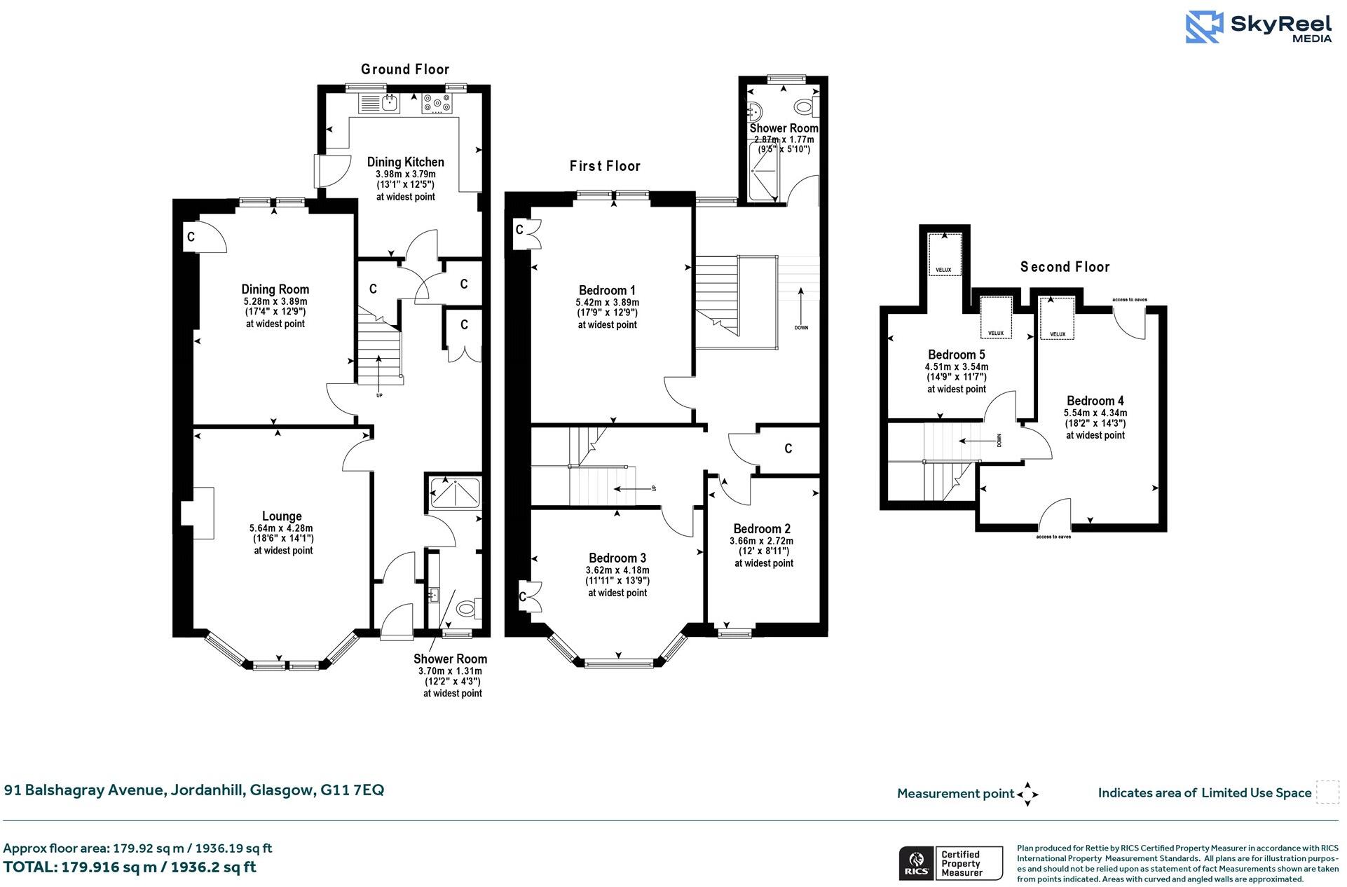
This distinguished five bedroom mid terraced home is arranged across three levels and retains a wealth of period charm, while offering practical family proportions in the coveted Jordanhill School catchment. Initially welcomed by an inviting reception hall, the accommodation flows into...

Property Oracle says ..

This is a traditional terraced property located in the sought-after Jordanhill area of Glasgow. The house offers five bedrooms and two bathrooms, making it suitable for families. The property benefits from a garden with a shed and decked area. While the interior is generally well-maintained, some areas could benefit from modernisation. The location is a major selling point, with good schools and transport links nearby. The price is above the local average, but reflects the size and location of the property.

Therefore, we give this property 7 / 10. *Disclaimer: This is our option and does constitute a recommendation or financial advice. Do your own research. *

Price
7
Condition
7
Location
8
Land
7
Bedrooms
5
Bathrooms
2

The heatmap indicates the level of crime in the area. The color of the heatmap indicates the crime severity and recency.

Metrics Year-on-Year

Average area value
211,368.00 £
Decreased by 19.75 %
from 263,401.00 £
Average area rental value
1,169.00 £/mo
Decreased by 9.73 %
from 1,295.00 £/mo
Est rental Yield
6.64 %
Increased by 12.54 %
from 5.90 %
Crime Rate
0.00 %
from 0.00 %

Agent Activity

  • Rettie & Co created the listing.

Images

Picture No. 43 Picture No. 04 Picture No. 05 Picture No. 06 Picture No. 45 Picture No. 07 Picture No. 08 Picture No. 10 Picture No. 11 Picture No. 12 Picture No. 13 Picture No. 03 Picture No. 14 Picture No. 15 Picture No. 16 Picture No. 33 Picture No. 34 Picture No. 19 Picture No. 20 Picture No. 21 Picture No. 22 Picture No. 17 Picture No. 23 Picture No. 24 Picture No. 25 Picture No. 26 Picture No. 18 Picture No. 27 Picture No. 28 Picture No. 29 Picture No. 30 Picture No. 31 Picture No. 32 Picture No. 36 Picture No. 37 Picture No. 38 Picture No. 39 Picture No. 44 Picture No. 40

Nearby Streets

NameAverage PriceAverage SqftDistance
Orleans Lane £ 000.00 KM
Varna Road £ 000.00 KM
Victoria Park Gardens North £ 500,00000.00 KM
Manor Road £ 000.00 KM
Marlborough Lane North £ 000.00 KM

Nearby Transport

NameNLCTLCDistance
Jordanhill9995JOR0.66 KM
Hyndland9845HYN1.41 KM
Anniesland9972ANL1.46 KM
Partick9917PTK2.19 KM
Kelvindale1655KVD2.66 KM

Nearby Listings

AddressPriceTypeScoreDistance
Balshagray Avenue, Jordanhill, Glasgow £ 539,000BUY7 / 100.00 KM
Balshagray Avenue, Jordanhill, Glasgow £ 499,000BUY7 / 100.00 KM
37 Orleans Avenue £ 450,000BUY5 / 100.17 KM
Balshagray Drive, Broomhill £ 380,000BUY6 / 100.21 KM
Varna Road, Jordanhill, Glasgow £ 725,000BUY7 / 100.25 KM