Castle Street, Holt
Hinchliffe Holmes logo

Castle Street, Holt

By Hinchliffe Holmes

£ 275,000

Reviews

3 out of 5 stars

Hinchliffe Holmes says ..

Situated in a sought-after quiet picturesque village location within walking distance to amenities, a beautifully presented and extended charming family home with many character features and low-maintenance private gardens.

Property Oracle says ..

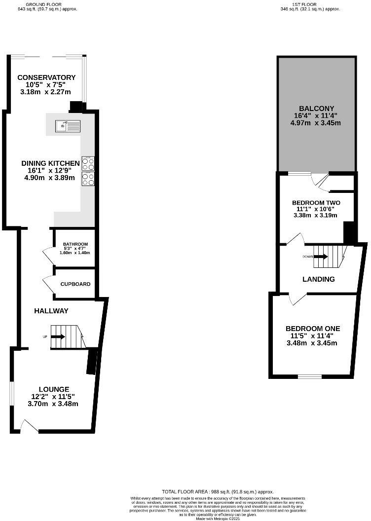
This is a charming terraced property located on Castle Street in Holt, Wrexham. The house features two bedrooms and one bathroom, with a total square footage of 881.99. The property benefits from a modern kitchen, a conservatory, and a paved garden area. While the bathroom could use updating, the house is generally well-maintained. The location is desirable, with Holt’s Community Primary School nearby. The asking price of £275,000 seems reasonable given the location and the property’s features, especially when compared to the average price per square foot in the area.

Therefore, we give this property 7 / 10. *Disclaimer: This is our option and does constitute a recommendation or financial advice. Do your own research. *

Price
7
Condition
7
Location
8
Land
6
Bedrooms
2
Bathrooms
1
Sqft (est)
881.99

The heatmap indicates the level of crime in the area. The color of the heatmap indicates the crime severity and recency.

Metrics Year-on-Year

Average area value
398,765.00 £
Decreased by 0.35 %
from 400,154.00 £
Est sale value
349,268.04 £
Increased by 20.73 %
from 289,292.72 £
Average area rental value
1,263.00 £/mo
Increased by 3.52 %
from 1,220.00 £/mo
Est letting value
881.99 £/mo
Unchanged by 0.00 %
from 881.99 £/mo
Est rental Yield
3.80 %
Increased by 3.83 %
from 3.66 %
Crime Rate
65.00 %
Unchanged by 0.00 %
from 65.00 %

Agent Activity

  • Hinchliffe Holmes created the listing.

Nearby Schools

NameTypeOfstedDistance
Holt'S Community Primary SchoolWelsh Establishment0.12 KM
Farndon Primary SchoolCommunity SchoolGood1.17 KM
St Pauls Voluntary Aided Primary SchoolWelsh Establishment4.07 KM
St Christopher'S SchoolWelsh Establishment5.89 KM
Shocklach Oviatt Cofe Primary SchoolVoluntary Controlled SchoolGood6.55 KM

Images

Academy Cottage-001.jpg Academy Cottage-003.jpg Academy Cottage-005.jpg Academy Cottage-027.jpg Academy Cottage-008.jpg Academy Cottage-015.jpg Academy Cottage-029.jpg Academy Cottage-013.jpg Academy Cottage-012.jpg Academy Cottage-011.jpg Academy Cottage-010.jpg Academy Cottage-009.jpg Academy Cottage-002.jpg Academy Cottage-004.jpg Academy Cottage-006.jpg Academy Cottage-007.jpg Academy Cottage-014.jpg Academy Cottage-021.jpg Academy Cottage-016.jpg Academy Cottage-017.jpg Academy Cottage-018.jpg Academy Cottage-019.jpg Academy Cottage-020.jpg Academy Cottage-022.jpg Academy Cottage-024.jpg Academy Cottage-025.jpg Academy Cottage-026.jpg Academy Cottage-023.jpg

Nearby Streets

NameAverage PriceAverage SqftDistance
West End Court £ 485,00000.00 KM
Laburnum Way £ 000.00 KM
Deeside £ 475,00000.00 KM
Cross Street £ 000.00 KM
Green Street £ 000.00 KM

Nearby Listings

AddressPriceTypeScoreDistance
Castle Street, Holt £ 275,000BUY7 / 100.00 KM
Castle Street, Holt, Wrexham £ 290,000BUY7 / 100.02 KM
Castle Street, Holt £ 700,000BUY6 / 100.05 KM
Castle Street, Holt £ 350,000BUY5 / 100.05 KM
Castle Street, Holt £ 425,000BUY6 / 100.10 KM

Nearby Properties

AddressPriceDistance
Ellwood £ 249,9500.04 KM
The Manse £ 365,0000.04 KM
Ingledene £ 370,0000.04 KM
Ty Castell £ 415,0000.06 KM
Springfield £ 420,0000.06 KM