Park West, Hyde Park Estate, London, W2
By Foxtons
£ 415,000
Reviews
2 out of 5 stars
Foxtons says ..
Boasting an excellent location just moments from Hyde Park and Oxford Street, this great one bedroom apartment combines clean, fresh interiors, a well-equipped kitchen and bathroom and enviable location.
Property Oracle says ..
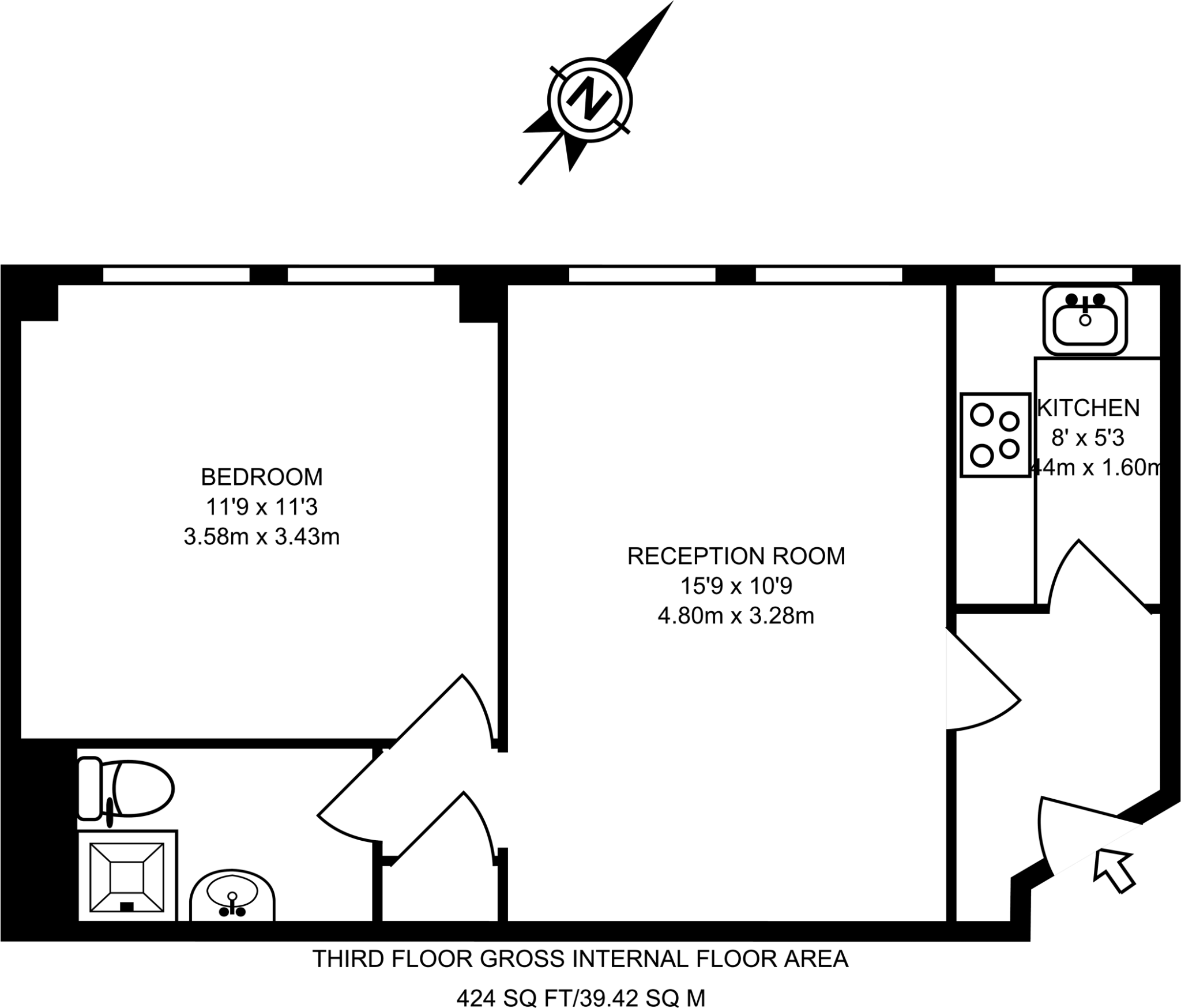
This one-bedroom flat in Park West, Hyde Park Estate, offers a compelling blend of central London location and relative affordability. Situated in a desirable area known for its green spaces, excellent transport connections and prestigious schools, the property benefits greatly from its address. The interior appears reasonably well-maintained based on the available images, with a functional kitchen and bathroom. However, prospective buyers should note that the property lacks outdoor space and the finishes are not exceptionally high-end. The list price reflects the location’s desirability but also positions the property as a viable option for first-time buyers or investors seeking a property in a prime London location. Further investigation into the specifics of the leasehold terms, service charges, and any potential ongoing maintenance requirements is recommended. The property’s relatively small size, 424 sqft, should also be factored into the overall assessment.
Therefore, we give this property 5 / 10. *Disclaimer: This is our option and does constitute a recommendation or financial advice. Do your own research. *
- Price
- 7
- Condition
- 6
- Location
- 9
- Land
- 1
- Bedrooms
- 1
- Bathrooms
- 1
- Sqft (est)
- 424.31
The heatmap indicates the level of crime in the area. The color of the heatmap indicates the crime severity and recency.
Metrics Year-on-Year
- Average area value
- 1,276,398.00 £Decreased by 24.34 %
- Est sale value
- 571,545.57 £Increased by 18.57 %
- Average area rental value
- 2,120.00 £/moDecreased by 9.05 %
- Est letting value
- 848.62 £/moIncreased by 100.00 %
- Est rental Yield
- 1.99 %Increased by 19.88 %
- Crime Rate
- 9.00 %Unchanged by 0.00 %
Agent Activity
Foxtons created the listing.
Nearby Schools
| Name | Type | Ofsted | Distance |
|---|---|---|---|
| Hampden Gurney Cofe Primary School | Voluntary Aided School | Outstanding | 0.16 KM |
| Connaught House School | Other Independent School | Good | 0.31 KM |
| Sylvia Young Theatre School | Other Independent School | 0.34 KM | |
| Halcyon London International School | Other Independent School | Outstanding | 0.38 KM |
| St Mary'S Bryanston Square Cofe School | Voluntary Aided School | Good | 0.59 KM |
Images
Nearby Streets
| Name | Average Price | Average Sqft | Distance |
|---|---|---|---|
| West Garden Place | £ 365,000 | 0 | 0.00 KM |
| Portsea Mews | £ 0 | 0 | 0.00 KM |
| Porchester Place | £ 0 | 0 | 0.00 KM |
| Seymour Street | £ 0 | 0 | 0.00 KM |
| Hyde Park Square | £ 0 | 0 | 0.00 KM |
Nearby Transport
| Name | NLC | TLC | Distance |
|---|---|---|---|
| Marylebone | 1475 | MYB | 0.82 KM |
| Paddington | 3087 | PAD | 1.22 KM |
| Victoria | 5426 | VIC | 3.21 KM |
| South Hampstead | 1451 | SOH | 3.26 KM |
| Euston | 1444 | EUS | 3.73 KM |
Nearby Listings
| Address | Price | Type | Score | Distance |
|---|---|---|---|---|
| Park West, Hyde Park Estate, London, W2 | £ 400,000 | BUY | Unknown | 0.00 KM |
| Park West, Hyde Park Estate, London, W2 | £ 415,000 | BUY | 5 / 10 | 0.00 KM |
| Park West, Hyde Park Estate, London, W2 | £ 330,000 | BUY | 5 / 10 | 0.00 KM |
| Edgware Road, Hyde Park Estate, London, W2 | £ 825,000 | BUY | 6 / 10 | 0.00 KM |
| Park West, Hyde Park Estate, London, W2 | £ 575,000 | BUY | 6 / 10 | 0.00 KM |
Nearby Properties
| Address | Price | Distance |
|---|---|---|
| 52 Kendal Street | £ 1,250,000 | 0.04 KM |
| 54 Kendal Street | £ 3,405,000 | 0.04 KM |
| 53 Kendal Street | £ 1,250,000 | 0.04 KM |
| 49b Kendal Street | £ 350,000 | 0.04 KM |
| 15 Portsea Place | £ 626,500 | 0.07 KM |