Beatty Street, Alvaston, Derby, Derbyshire
By Hannells Estate Agents
£ 160,000
Reviews
3 out of 5 stars
Hannells Estate Agents says ..
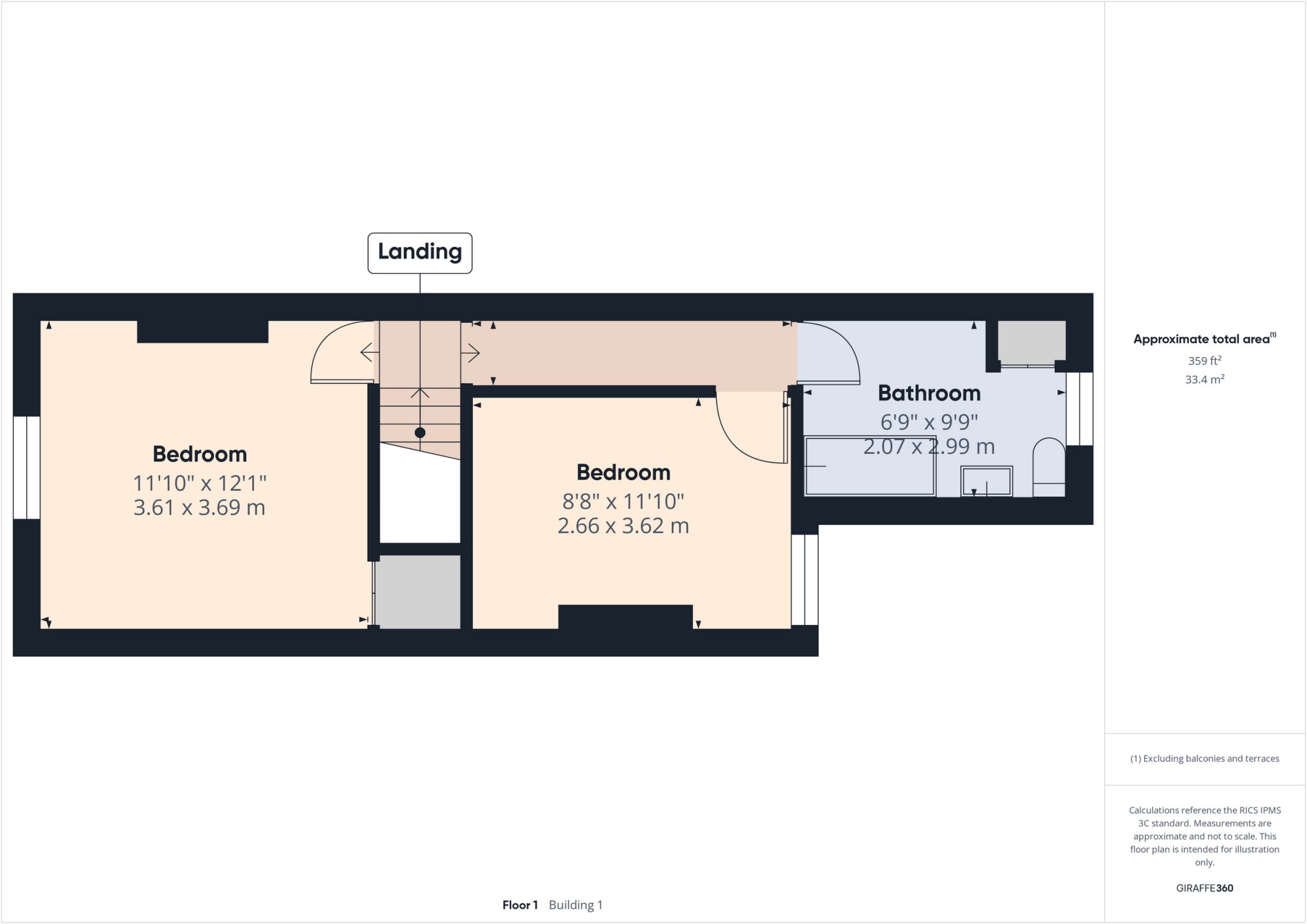
No Upward Chain! This beautifully presented and very well maintained, traditional two double bedroom, semi-detached home offers generous living space with an open plan kitchen/diner, on street parking and a generous rear garden. Being ideally located close to amenities and being move in ready wit...
Property Oracle says ..
Therefore, we give this property 7 / 10. *Disclaimer: This is our option and does constitute a recommendation or financial advice. Do your own research. *
- Price
- 8
- Condition
- 6
- Location
- 7
- Land
- 7
- Bedrooms
- 2
- Bathrooms
- 1
- Sqft (est)
- 373.51
The heatmap indicates the level of crime in the area. The color of the heatmap indicates the crime severity and recency.
Metrics Year-on-Year
- Average area value
- 358,333.00 £Increased by 6.25 %
- Est sale value
- 120,643.73 £Increased by 10.62 %
- Average area rental value
- 1,283.00 £/moDecreased by 3.24 %
- Est letting value
- 373.51 £/moUnchanged by 0.00 %
- Est rental Yield
- 4.30 %Decreased by 8.90 %
- Crime Rate
- 16.00 %Unchanged by 0.00 %
from 337,265.00 £
from 109,064.92 £
from 1,326.00 £/mo
from 373.51 £/mo
from 4.72 %
from 16.00 %
Agent Activity
Hannells Estate Agents created the listing.
Nearby Schools
| Name | Type | Ofsted | Distance |
|---|---|---|---|
| Lakeside Primary Academy | Academy Sponsor Led | 0.51 KM | |
| Alvaston Children'S Centre | Children's Centre | 0.53 KM | |
| Osmaston Allenton Children'S Centre | Children's Centre | 1.03 KM | |
| Landau Forte Academy Moorhead | Academy Sponsor Led | Special Measures | 1.15 KM |
| Alvaston Moor Academy | Academy Sponsor Led | 1.26 KM |
Images
Nearby Streets
| Name | Average Price | Average Sqft | Distance |
|---|---|---|---|
| Meadow Lane | £ 130,000 | 0 | 0.00 KM |
| Patterdale Road | £ 0 | 0 | 0.00 KM |
| Quintin Road | £ 0 | 0 | 0.00 KM |
| Wyndham Street | £ 0 | 0 | 0.00 KM |
| Lichfield Drive | £ 140,000 | 0 | 0.00 KM |
Nearby Transport
| Name | NLC | TLC | Distance |
|---|---|---|---|
| Derby | 1823 | DBY | 2.88 KM |
| Peartree | 1687 | PEA | 3.32 KM |
| Spondon | 1699 | SPO | 3.82 KM |
Nearby Listings
| Address | Price | Type | Score | Distance |
|---|---|---|---|---|
| Beatty Street, Alvaston, Derby, Derbyshire | £ 160,000 | BUY | 7 / 10 | 0.00 KM |
| Beatty Street, Alvaston | £ 160,000 | BUY | Unknown | 0.04 KM |
| Severn Street, Alvaston | £ 155,000 | BUY | 5 / 10 | 0.04 KM |
| Beatty Street, Alvaston, Derby | £ 155,000 | BUY | Unknown | 0.04 KM |
| Beatty Street, Alvaston, Derby | £ 160,000 | BUY | 7 / 10 | 0.04 KM |
Nearby Properties
| Address | Price | Distance |
|---|---|---|
| 44 Beatty Street | £ 62,000 | 0.03 KM |
| 37 Beatty Street | £ 81,000 | 0.03 KM |
| 53 Beatty Street | £ 104,995 | 0.03 KM |
| 42 Beatty Street | £ 146,500 | 0.03 KM |
| 28 Beatty Street | £ 124,950 | 0.03 KM |