Goodfellows says ..
A beautifully presented four-bedroom, two-bathroom family home set on the borders of Colliers Wood, offering excellent transport links, off-street parking, and a garage. Immaculately maintained throughout, the property boasts a stylish, contemporary finish, featuring a sleek fully fitted kitchen ...
Property Oracle says ..
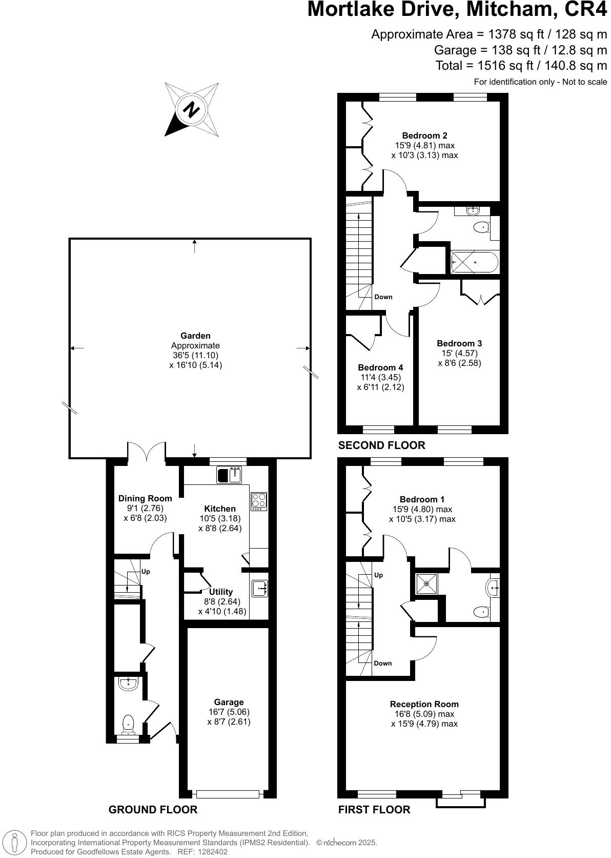
This four-bedroom, two-bathroom terraced house in Mitcham, CR4 is listed at £600,000. The property benefits from a relatively modern interior and a small, manageable garden. The average house price in the area is £397,240, and the average price per square foot is £356. This property, at 1,516 square feet, is significantly larger than average. While some nearby properties have sold for higher prices, the lack of plot size information and the presence of other lower-priced properties on the same street suggest a need for careful consideration of the asking price. The property appears to be in good condition, with a modern kitchen and bathrooms. Its proximity to several schools and transportation links adds to its appeal. However, potential buyers should independently verify the accuracy of all information provided.
Therefore, we give this property 6 / 10. *Disclaimer: This is our option and does constitute a recommendation or financial advice. Do your own research. *
- Price
- 6
- Condition
- 8
- Location
- 7
- Land
- 3
- Bedrooms
- 4
- Bathrooms
- 2
- Sqft (est)
- 1,516.00
The heatmap indicates the level of crime in the area. The color of the heatmap indicates the crime severity and recency.
Metrics Year-on-Year
- Average area value
- 444,167.00 £Increased by 7.02 %
- Est sale value
- 850,476.00 £Increased by 39.55 %
- Average area rental value
- 1,914.00 £/moDecreased by 10.89 %
- Est letting value
- 3,032.00 £/moUnchanged by 0.00 %
- Est rental Yield
- 5.17 %Decreased by 16.75 %
- Crime Rate
- 3.00 %Unchanged by 0.00 %
Agent Activity
Goodfellows created the listing.
Nearby Schools
| Name | Type | Ofsted | Distance |
|---|---|---|---|
| Liberty Primary | Community School | Good | 0.36 KM |
| Church Road Children'S Centre | Children's Centre Linked Site | 0.58 KM | |
| Singlegate Primary School | Community School | Outstanding | 0.77 KM |
| Haslemere Primary School | Community School | Good | 0.86 KM |
| Rise Education | Other Independent School | Good | 0.87 KM |
Images
Nearby Streets
| Name | Average Price | Average Sqft | Distance |
|---|---|---|---|
| Lewis Road | £ 359,000 | 0 | 0.00 KM |
| Breakspear Gardens | £ 0 | 0 | 0.00 KM |
| Portland Road | £ 0 | 0 | 0.00 KM |
| Lime Court | £ 285,000 | 0 | 0.00 KM |
| Rodney Road | £ 0 | 0 | 0.00 KM |
Nearby Transport
| Name | NLC | TLC | Distance |
|---|---|---|---|
| Tooting | 5389 | TOO | 1.66 KM |
| Mitcham Eastfields | 5069 | MTC | 2.13 KM |
| Haydons Road | 5289 | HYR | 2.31 KM |
| Mitcham Junction | 5427 | MIJ | 2.69 KM |
| Morden South | 5291 | MDS | 3.32 KM |
Nearby Listings
| Address | Price | Type | Score | Distance |
|---|---|---|---|---|
| Mortlake Drive, Mitcham, CR4 | £ 600,000 | BUY | 6 / 10 | 0.00 KM |
| Mortlake Drive, Mitcham, Surrey, CR4 | £ 680,000 | BUY | 6 / 10 | 0.01 KM |
| Mortlake Drive, Mitcham, CR4 | £ 600,000 | BUY | 7 / 10 | 0.01 KM |
| Silbury Avenue, Mitcham | £ 610,000 | BUY | 7 / 10 | 0.07 KM |
| Silbury Avenue, Mitcham, CR4 | £ 175,000 | BUY | 3 / 10 | 0.07 KM |
Nearby Properties
| Address | Price | Distance |
|---|---|---|
| 27 Mortlake Drive | £ 230,000 | 0.01 KM |
| 19 Mortlake Drive | £ 360,000 | 0.01 KM |
| 10 Mortlake Drive | £ 587,000 | 0.01 KM |
| 16 Mortlake Drive | £ 250,000 | 0.01 KM |
| 1 Mortlake Drive | £ 87,500 | 0.01 KM |