Hartford Court, Hartley Wintney, Hook, Hampshire, RG27
By Mackenzie Smith
£ 250,000
Reviews
3 out of 5 stars
Mackenzie Smith says ..
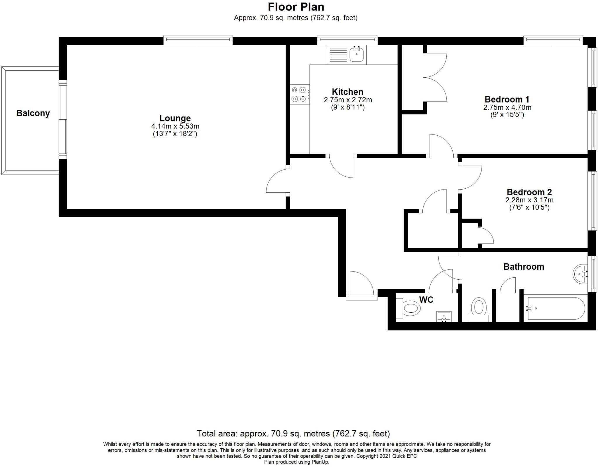
*WITH GARAGE* Standing proudly overlooking the beautifully maintained rose garden, this well-appointed two-bedroom apartment is ideally positioned within the popular Hartford Court development. A wonderful sense of light and space is immediately apparent upon entry, with a g...
Property Oracle says ..
This is a two-bedroom apartment in Hartford Court, Hartley Wintney. The property is in a good location, close to local amenities and transport links. The apartment itself is in reasonable condition, but could benefit from some modernisation. It has access to communal gardens. The asking price of £250,000 seems reasonable for the location and property type.
Therefore, we give this property 6 / 10. *Disclaimer: This is our option and does constitute a recommendation or financial advice. Do your own research. *
- Price
- 7
- Condition
- 6
- Location
- 7
- Land
- 5
- Bedrooms
- 2
- Bathrooms
- 2
The heatmap indicates the level of crime in the area. The color of the heatmap indicates the crime severity and recency.
Metrics Year-on-Year
- Average area value
- 605,000.00 £Decreased by 12.61 %
- Average area rental value
- 1,924.00 £/moDecreased by 7.72 %
- Est rental Yield
- 3.82 %Increased by 5.82 %
- Crime Rate
- 13.00 %Unchanged by 0.00 %
Agent Activity
Mackenzie Smith created the listing.
Nearby Schools
| Name | Type | Ofsted | Distance |
|---|---|---|---|
| Greenfields Junior School | Community School | Good | 0.41 KM |
| Oakwood Infant School | Community School | Outstanding | 0.64 KM |
| Little Saplings And Wisteria Children'S Centre | Children's Centre | 0.83 KM | |
| Dogmersfield Church Of England Primary School | Voluntary Aided School | Good | 4.71 KM |
| St Neot'S School | Other Independent School | 4.99 KM |
Images
Nearby Streets
| Name | Average Price | Average Sqft | Distance |
|---|---|---|---|
| Becketts | £ 0 | 0 | 0.00 KM |
| Parsons Lane | £ 0 | 0 | 0.00 KM |
| Peel Court | £ 0 | 0 | 0.00 KM |
| Franklin Avenue | £ 1,112,500 | 0 | 0.00 KM |
| Verandah Cottages | £ 0 | 0 | 0.00 KM |
Nearby Transport
| Name | NLC | TLC | Distance |
|---|---|---|---|
| Winchfield | 5528 | WNF | 2.35 KM |
| Hook | 5523 | HOK | 7.00 KM |
| Fleet | 5522 | FLE | 8.26 KM |
Nearby Listings
| Address | Price | Type | Score | Distance |
|---|---|---|---|---|
| Hartford Court, Hartley Wintney, Hook, Hampshire, RG27 | £ 185,000 | BUY | 6 / 10 | 0.00 KM |
| Hartford Court, Hartley Wintney, Hook, Hampshire, RG27 | £ 235,000 | BUY | 5 / 10 | 0.00 KM |
| Hartford Court, Hartley Wintney, Hook, Hampshire, RG27 | £ 250,000 | BUY | 6 / 10 | 0.00 KM |
| Hartford Court, Hartley Wintney, Hook, Hampshire, RG27 | £ 165,000 | BUY | 6 / 10 | 0.00 KM |
| Ash Lodge, Hartford Court, Hartley Wintney, RG27 | £ 160,000 | BUY | 5 / 10 | 0.01 KM |
Nearby Properties
| Address | Price | Distance |
|---|---|---|
| 8 Hart House Court | £ 380,000 | 0.06 KM |
| 1 Hart House Court | £ 438,000 | 0.06 KM |
| 9 Hart House Court | £ 420,000 | 0.06 KM |
| 10 Hart House Court | £ 240,000 | 0.06 KM |
| 11 Hart House Court | £ 254,910 | 0.06 KM |