ST
Ross Road, Hereford, HR2
By Stooke Hill & Walshe
£ 300,000
Reviews
3 out of 5 stars
Stooke Hill & Walshe says ..
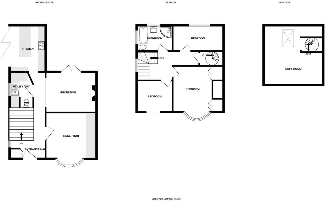
This three bedroom semi-detached is an end plot on Ross Road and Web Tree Avenue, and benefits from; a lounge, a reception room, a kitchen/extension; a utility; a downstairs WC; three bedrooms; a bathroom; a loft conversion; off-road parking, and a variety of outside space
Property Oracle says ..
Therefore, we give this property 7 / 10. *Disclaimer: This is our option and does constitute a recommendation or financial advice. Do your own research. *
- Price
- 6
- Condition
- 8
- Location
- 8
- Land
- 7
- Bedrooms
- 3
- Bathrooms
- 1
- Sqft (est)
- 1,145.00
The heatmap indicates the level of crime in the area. The color of the heatmap indicates the crime severity and recency.
Metrics Year-on-Year
- Average area value
- 225,619.00 £Decreased by 6.60 %
- Est sale value
- 248,465.00 £Decreased by 18.73 %
- Average area rental value
- 850.00 £/moDecreased by 4.92 %
- Est letting value
- 0.00 £/mo
- Est rental Yield
- 4.52 %Increased by 1.80 %
- Crime Rate
- 4.00 %Unchanged by 0.00 %
from 241,550.00 £
from 305,715.00 £
from 894.00 £/mo
from 0.00 £/mo
from 4.44 %
from 4.00 %
Agent Activity
Stooke Hill & Walshe created the listing.
Nearby Schools
| Name | Type | Ofsted | Distance |
|---|---|---|---|
| South City Children'S Centre, Hereford | Children's Centre | 0.55 KM | |
| Our Lady'S Rc Primary School | Voluntary Aided School | Good | 0.57 KM |
| Marlbrook Primary School | Community School | Outstanding | 0.59 KM |
| St Martin'S Primary School | Community School | Good | 0.62 KM |
| Blackmarston School | Community Special School | Good | 0.69 KM |
Images
Nearby Streets
| Name | Average Price | Average Sqft | Distance |
|---|---|---|---|
| Kemble Close | £ 0 | 0 | 0.00 KM |
| Meadow Way | £ 0 | 0 | 0.00 KM |
| Orchard Avenue | £ 0 | 0 | 0.00 KM |
| Ash Avenue | £ 0 | 0 | 0.00 KM |
| Longmeadow | £ 0 | 0 | 0.00 KM |
Nearby Transport
| Name | NLC | TLC | Distance |
|---|---|---|---|
| Hereford | 3607 | HFD | 2.57 KM |
Nearby Listings
| Address | Price | Type | Score | Distance |
|---|---|---|---|---|
| Ross Road, Hereford, HR2 | £ 367,500 | BUY | 7 / 10 | 0.00 KM |
| Ross Road, Hereford, HR2 | £ 280,000 | BUY | 7 / 10 | 0.00 KM |
| Ross Road, Hereford, HR2 | £ 300,000 | BUY | 7 / 10 | 0.00 KM |
| Ross Road, Hereford | £ 295,000 | BUY | 6 / 10 | 0.09 KM |
| Bradbury Close, Hereford, HR2 | £ 335,000 | BUY | 6 / 10 | 0.11 KM |
Nearby Properties
| Address | Price | Distance |
|---|---|---|
| 191 Ross Road | £ 157,000 | 0.01 KM |
| 197 Ross Road | £ 160,000 | 0.01 KM |
| 193 Ross Road | £ 207,500 | 0.01 KM |
| 185 Ross Road | £ 187,000 | 0.01 KM |
| 195 Ross Road | £ 263,000 | 0.01 KM |