MA
Parkstone Mount, Leeds, West Yorkshire
By Manning Stainton
£ 245,000
Reviews
4 out of 5 stars
Manning Stainton says ..
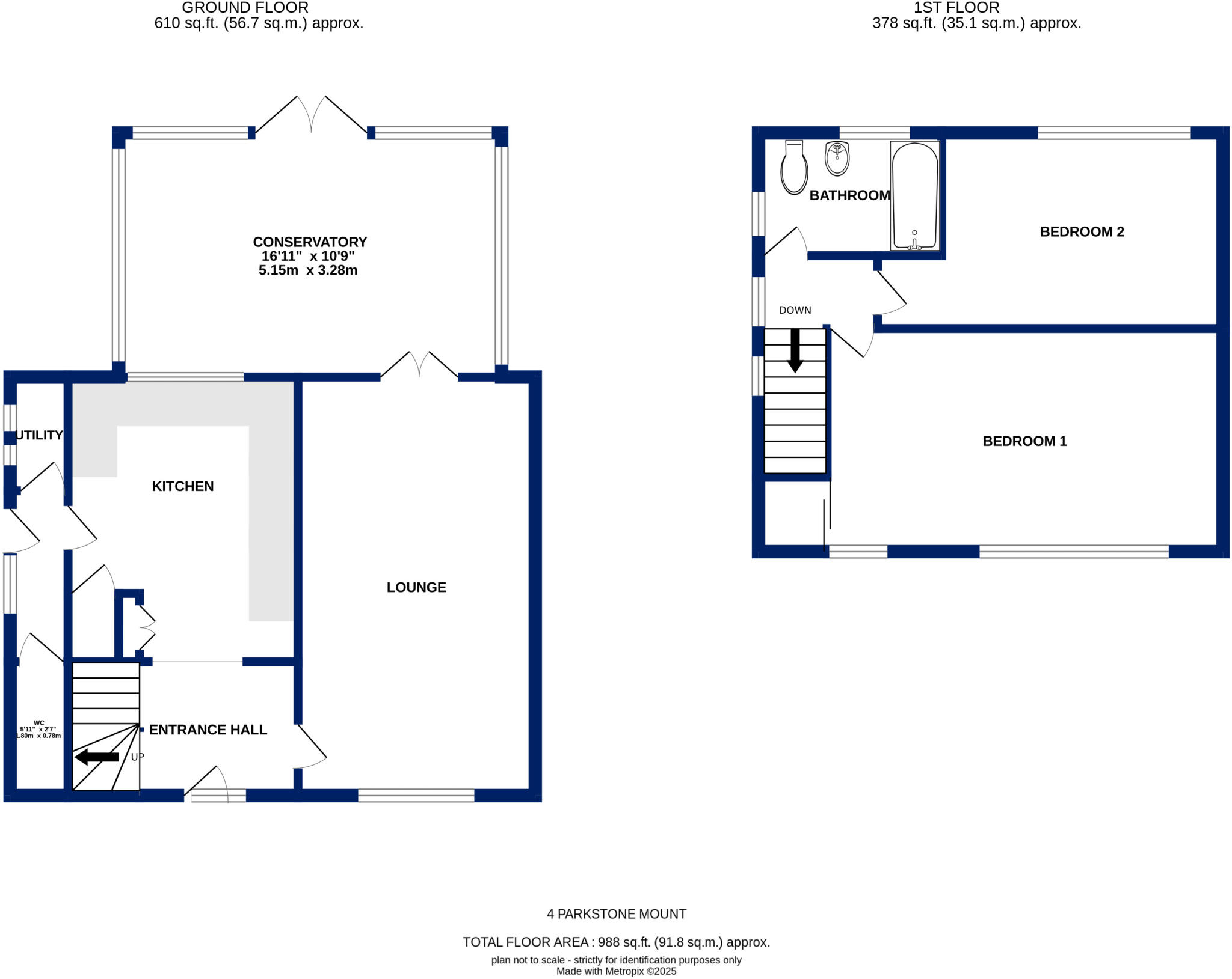
Two bedroom semi with DRIVE and GARAGE!
Property Oracle says ..
Therefore, we give this property 8 / 10. *Disclaimer: This is our option and does constitute a recommendation or financial advice. Do your own research. *
- Price
- 9
- Condition
- 8
- Location
- 8
- Land
- 7
- Bedrooms
- 2
- Bathrooms
- 2
- Sqft (est)
- 210.22
The heatmap indicates the level of crime in the area. The color of the heatmap indicates the crime severity and recency.
Metrics Year-on-Year
- Average area value
- 425,754.00 £Increased by 28.76 %
- Est sale value
- 102,166.92 £Increased by 65.87 %
- Average area rental value
- 1,157.00 £/moIncreased by 11.79 %
- Est letting value
- 210.22 £/mo
- Est rental Yield
- 3.26 %Decreased by 13.30 %
- Crime Rate
- 2.00 %Unchanged by 0.00 %
from 330,666.00 £
from 61,594.46 £
from 1,035.00 £/mo
from 0.00 £/mo
from 3.76 %
from 2.00 %
Agent Activity
Manning Stainton created the listing.
Nearby Schools
| Name | Type | Ofsted | Distance |
|---|---|---|---|
| Iveson Primary School | Foundation School | Good | 0.24 KM |
| Holy Name Catholic Voluntary Academy | Academy Sponsor Led | Good | 0.59 KM |
| Abbey Grange Church Of England Academy | Academy Converter | Good | 1.03 KM |
| Lighthouse School Leeds | Free Schools Special | Good | 1.10 KM |
| Lawnswood School | Community School | Good | 1.17 KM |
Images
Nearby Streets
| Name | Average Price | Average Sqft | Distance |
|---|---|---|---|
| Moor Grange View | £ 0 | 0 | 0.00 KM |
| Clayton Wood Road | £ 0 | 0 | 0.00 KM |
| Blackthorn Lane | £ 479,995 | 0 | 0.00 KM |
| Copper Beech Court | £ 0 | 0 | 0.00 KM |
| Blackstone Lane | £ 0 | 0 | 0.00 KM |
Nearby Transport
| Name | NLC | TLC | Distance |
|---|---|---|---|
| Headingley | 8498 | HDY | 2.87 KM |
| Kirkstall Forge | 6544 | KLF | 2.90 KM |
| Horsforth | 8499 | HRS | 3.00 KM |
| Burley Park | 8500 | BUY | 4.40 KM |
| Bramley (West Yorkshire) | 8496 | BLE | 5.51 KM |
Nearby Listings
| Address | Price | Type | Score | Distance |
|---|---|---|---|---|
| Parkstone Mount, Leeds, West Yorkshire | £ 245,000 | BUY | 8 / 10 | 0.00 KM |
| Parkstone Mount, Leeds, West Yorkshire | £ 250,000 | BUY | 7 / 10 | 0.02 KM |
| Parkstone Place, Leeds, LS16 | £ 245,000 | BUY | Unknown | 0.09 KM |
| Parkstone Avenue, West Park, LS16 | £ 449,950 | BUY | Unknown | 0.18 KM |
| Parkstone Avenue, Leeds | £ 499,950 | BUY | 7 / 10 | 0.18 KM |
Nearby Properties
| Address | Price | Distance |
|---|---|---|
| 28 Parkstone Mount | £ 140,000 | 0.08 KM |
| 25 Parkstone Mount | £ 170,000 | 0.08 KM |
| 4 Parkstone Mount | £ 160,000 | 0.08 KM |
| 19 Parkstone Mount | £ 214,000 | 0.08 KM |
| 23 Parkstone Mount | £ 225,500 | 0.08 KM |