Bridge Street, Pershore, WR10
By Jones & Associates
£ 275,000
Reviews
2 out of 5 stars
Jones & Associates says ..
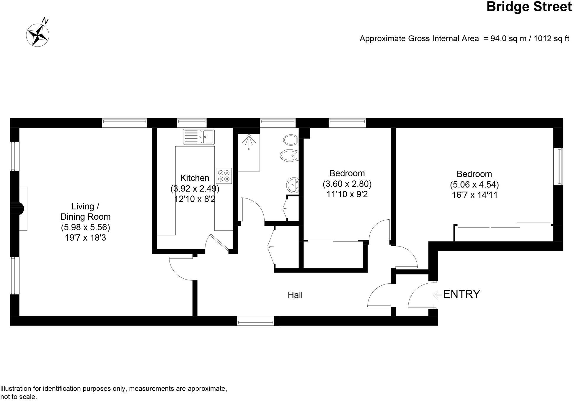
A charming two double bedroom first-floor apartment set within The Wool Barn, a Grade II listed Georgian building, brimming with original features and impressive tall ceilings.
Property Oracle says ..
This is a two-bedroom flat located on Bridge Street in Pershore. The property benefits from a central location, offering easy access to local amenities, transportation, and schools. The flat is approximately 818.62 sqft. While the property is functional, it would benefit from some modernisation. The price seems reasonable given the location and the need for some renovation work.
Therefore, we give this property 5 / 10. *Disclaimer: This is our option and does constitute a recommendation or financial advice. Do your own research. *
- Price
- 7
- Condition
- 5
- Location
- 7
- Land
- 3
- Bedrooms
- 2
- Bathrooms
- 1
- Sqft (est)
- 818.62
The heatmap indicates the level of crime in the area. The color of the heatmap indicates the crime severity and recency.
Metrics Year-on-Year
- Average area value
- 222,667.00 £Decreased by 39.62 %
- Est sale value
- 216,115.68 £Increased by 3.94 %
- Average area rental value
- 1,300.00 £/moIncreased by 1.64 %
- Est letting value
- 818.62 £/mo
- Est rental Yield
- 7.01 %Increased by 68.51 %
- Crime Rate
- 25.00 %Unchanged by 0.00 %
Agent Activity
Jones & Associates created the listing.
Nearby Schools
| Name | Type | Ofsted | Distance |
|---|---|---|---|
| Holy Redeemer Catholic Primary School | Voluntary Aided School | Outstanding | 0.50 KM |
| Abbey Park Middle School | Community School | Requires improvement | 0.78 KM |
| Abbey Park First And Nursery School | Community School | Good | 0.78 KM |
| Blossom Vale Children'S Centre | Children's Centre | 0.78 KM | |
| Orchard Primary School | Academy Converter | 0.84 KM |
Images
Nearby Streets
| Name | Average Price | Average Sqft | Distance |
|---|---|---|---|
| Manor Gardens | £ 685,000 | 0 | 0.00 KM |
| Monks Close | £ 0 | 0 | 0.00 KM |
| Orchard Close | £ 0 | 0 | 0.00 KM |
| Nursery Close | £ 0 | 0 | 0.00 KM |
| Abbots Road | £ 277,500 | 0 | 0.00 KM |
Nearby Transport
| Name | NLC | TLC | Distance |
|---|---|---|---|
| Pershore | 4887 | PSH | 2.44 KM |
Nearby Listings
| Address | Price | Type | Score | Distance |
|---|---|---|---|---|
| Bridge Street, Pershore, WR10 | £ 275,000 | BUY | 5 / 10 | 0.00 KM |
| Bridge Street, Pershore | £ 445,000 | BUY | 6 / 10 | 0.02 KM |
| Bridge Street, Pershore, Worcestershire | £ 359,500 | BUY | 7 / 10 | 0.04 KM |
| Bridge Street, Pershore, WR10 | £ 675,000 | BUY | 7 / 10 | 0.07 KM |
| 6 Bridge Street, Pershore | £ 595,000 | BUY | 8 / 10 | 0.08 KM |
Nearby Properties
| Address | Price | Distance |
|---|---|---|
| 30 Bridge Street | £ 248,000 | 0.01 KM |
| 48 Bridge Street | £ 660,000 | 0.01 KM |
| 10 Bridge Street | £ 331,000 | 0.01 KM |
| 44 Bridge Street | £ 325,000 | 0.01 KM |
| 30c Bridge Street | £ 270,000 | 0.01 KM |