BI
Main Street, Stillington, York YO61 1JU
By Bishops Personal Agents
£ 399,950
Reviews
3 out of 5 stars
Bishops Personal Agents says ..
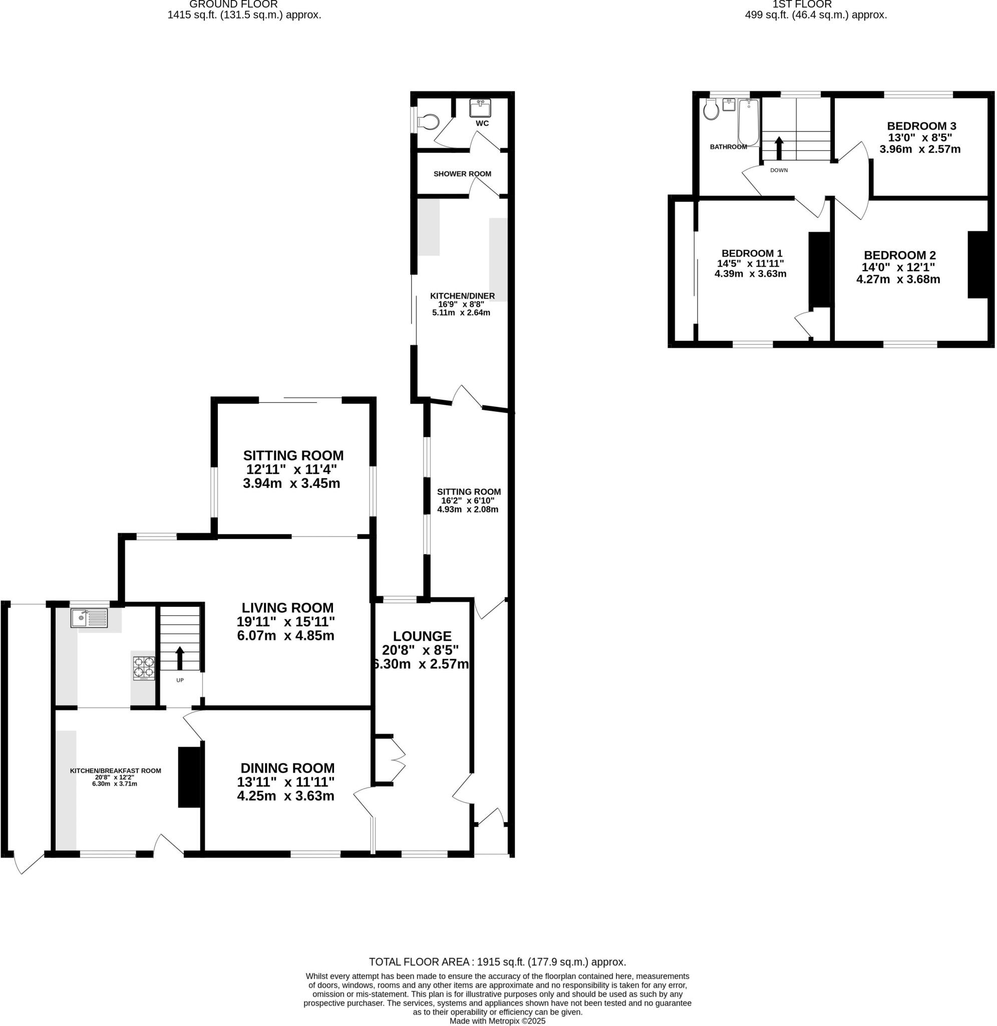
Bishops Personal Agents offer for sale a rare opportunity, to put your own stamp and style and develop this three bedroom home in one of York’s most enviable villages along Main Street in Stillington, a lovely village around 11 miles to the north of the historic City of York, where the land...
Property Oracle says ..
Therefore, we give this property 6 / 10. *Disclaimer: This is our option and does constitute a recommendation or financial advice. Do your own research. *
- Price
- 7
- Condition
- 3
- Location
- 7
- Land
- 7
- Bedrooms
- 3
- Bathrooms
- 1
- Sqft (est)
- 1,797.64
The heatmap indicates the level of crime in the area. The color of the heatmap indicates the crime severity and recency.
Metrics Year-on-Year
- Average area value
- 235,000.00 £Increased by 13.70 %
- Est sale value
- 519,517.96 £Increased by 30.18 %
- Average area rental value
- 1,100.00 £/moDecreased by 0.99 %
- Est letting value
- 1,797.64 £/moUnchanged by 0.00 %
- Est rental Yield
- 5.62 %Decreased by 12.87 %
- Crime Rate
- 52.00 %Unchanged by 0.00 %
from 206,683.00 £
from 399,076.08 £
from 1,111.00 £/mo
from 1,797.64 £/mo
from 6.45 %
from 52.00 %
Agent Activity
Bishops Personal Agents created the listing.
Nearby Schools
| Name | Type | Ofsted | Distance |
|---|---|---|---|
| Stillington Primary School | Community School | Requires improvement | 0.17 KM |
| Sutton On The Forest Church Of England Voluntary Controlled Primary School | Voluntary Controlled School | Good | 3.03 KM |
| Huby Cofe Primary School | Voluntary Controlled School | Good | 4.26 KM |
| Crayke Church Of England Voluntary Controlled Primary School | Voluntary Controlled School | Outstanding | 4.97 KM |
| Outwood Academy Easingwold | Academy Sponsor Led | 9.31 KM |
Images
Nearby Streets
| Name | Average Price | Average Sqft | Distance |
|---|---|---|---|
| Hill View | £ 0 | 0 | 0.00 KM |
| The Shippons | £ 565,000 | 0 | 0.00 KM |
Nearby Listings
| Address | Price | Type | Score | Distance |
|---|---|---|---|---|
| Main Street, Stillington, York YO61 1JU | £ 399,950 | BUY | 6 / 10 | 0.00 KM |
| Main Street, Stillington, York | £ 700,000 | BUY | 7 / 10 | 0.03 KM |
| South Back Lane, York | £ 359,950 | BUY | Unknown | 0.13 KM |
| Main Street, Stillington, York | £ 350,000 | BUY | 7 / 10 | 0.18 KM |
| The Green, Stillington, York | £ 695,000 | BUY | Unknown | 0.27 KM |
Nearby Properties
| Address | Price | Distance |
|---|---|---|
| Fern Cottage | £ 450,000 | 0.01 KM |
| Blacksmiths Cottage | £ 280,000 | 0.03 KM |
| Horseshoe Cottage | £ 200,000 | 0.03 KM |
| Parkside | £ 450,000 | 0.03 KM |
| Weddells Cottage | £ 620,000 | 0.03 KM |