Tower Place, Milngavie

Rettie & Co says ..

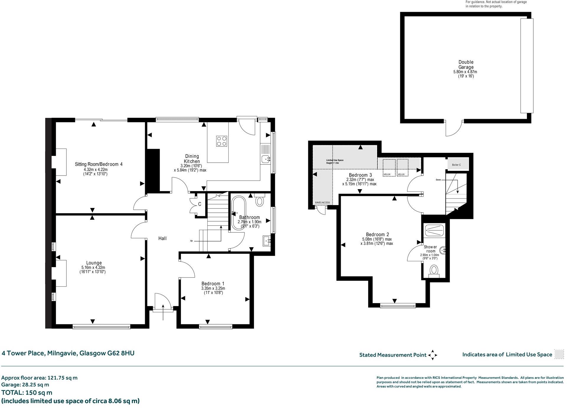
• Detached, six apartment bungalow in a lovely pocket of Milngavie • Commanding, elevated position with fabulous views across surrounding district • Very well presented – contemporary fixtures, fittings and appliances • Flexible layout – could be uti...

Property Oracle says ..

This is a well-presented detached property in a sought-after location. The house offers spacious living accommodation and benefits from a good-sized garden and off-street parking. The property is conveniently located for access to local amenities, schools, and transport links. Overall, this property represents a good opportunity for families looking for a comfortable and well-maintained home in a desirable area.

Therefore, we give this property 7 / 10. *Disclaimer: This is our option and does constitute a recommendation or financial advice. Do your own research. *

Price
7
Condition
8
Location
8
Land
7
Bedrooms
3
Bathrooms
2
Sqft (est)
1,310.51
Lot (est)
1,614.59

The heatmap indicates the level of crime in the area. The color of the heatmap indicates the crime severity and recency.

Metrics Year-on-Year

Average area value
512,500.00 £
Increased by 58.76 %
from 322,824.00 £
Est sale value
897,699.35 £
Increased by 135.40 %
from 381,358.41 £
Average area rental value
1,100.00 £/mo
Decreased by 47.62 %
from 2,100.00 £/mo
Est letting value
1,310.51 £/mo
Unchanged by 0.00 %
from 1,310.51 £/mo
Est rental Yield
2.58 %
Decreased by 66.97 %
from 7.81 %
Crime Rate
0.00 %
from 0.00 %

Agent Activity

  • Rettie & Co created the listing.

Images

Picture 1 Picture 2 Picture 3 Picture 4 Picture 5 Picture 6 Picture 7 Picture 8 Picture 9 Picture 10 Picture 11 Picture 12 Picture 13 Picture 14 Picture 15 Picture 16 Picture 17 Picture 18 Picture 19 Picture 20 Picture 21 Picture 22 Picture 23 Picture 24 Picture 25 Picture 26 Picture 27 Picture 28 Picture 29 Picture 30 Picture 31 Picture 32 Picture 33 Picture 34 Picture 35 Picture 36

Nearby Streets

NameAverage PriceAverage SqftDistance
Tower Place £ 000.00 KM
Lynn Drive £ 397,50000.00 KM
Briarwell Lane £ 950,00000.00 KM
Kersland Lane £ 000.00 KM
Marchfield £ 000.00 KM

Nearby Transport

NameNLCTLCDistance
Milngavie9985MLN0.81 KM
Hillfoot9983HLF3.05 KM
Bearsden9966BRN4.05 KM
Maryhill9957MYH5.30 KM
Westerton9998WES5.33 KM

Nearby Listings

AddressPriceTypeScoreDistance
Tower Place, Milngavie £ 415,000BUY7 / 100.00 KM
Tower Place, Milngavie £ 350,000BUYUnknown0.00 KM
Middleton Drive, Glasgow, Milngavie, G62 £ 280,000BUYUnknown0.13 KM
Barloch Lodge,Middleton Drive, Milngavie £ 395,000BUYUnknown0.15 KM
126 Strathblane Road, Milngavie, G62 8HD £ 360,000BUY8 / 100.18 KM