47 & 47a Ferney Field Road, Chadderton
By Kirkham Property
£ 325,000
Reviews
3 out of 5 stars
Kirkham Property says ..
Offered for sale this three bedroom detached bungalow situated in a semi rural location close to Chadderton centre with open views over the valley. The property is for sale by Modern Method of Auction with a starting bid of £325,000 plus reservation fee and has planning permission ...
Property Oracle says ..
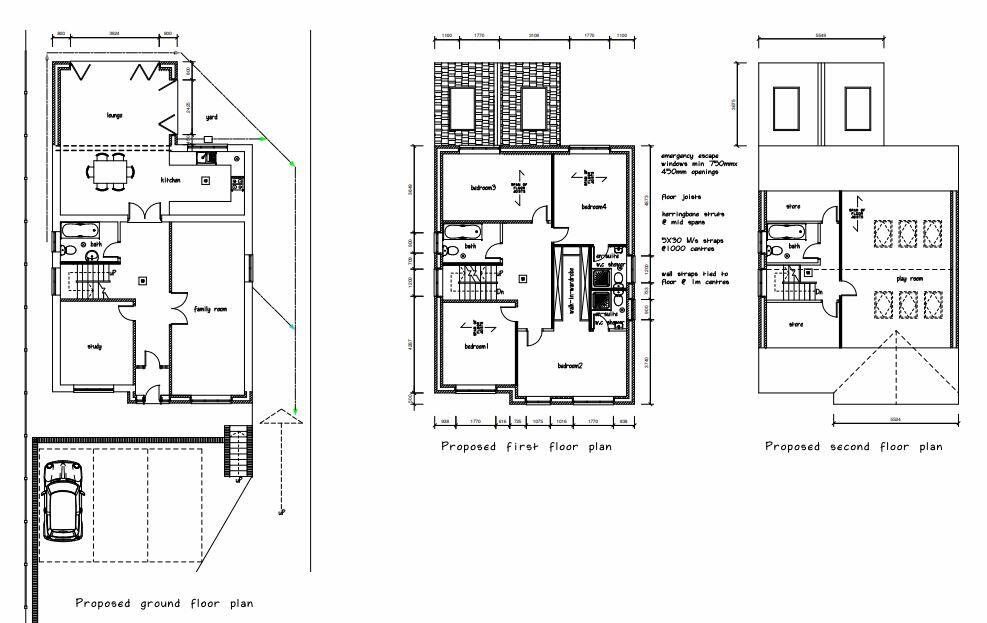
This property in Chadderton, Oldham, is a three-bedroom detached bungalow offered for sale by Modern Method of Auction. Its key feature is a recently completed extension, shown in detail through architectural plans. The extension significantly increases the living space and includes a modern kitchen and bathroom. The existing bungalow appears to be a standard brick-built construction, while the photographs suggest it is in reasonable, if not perfect, condition. The property’s location is advantageous, being situated close to well-regarded primary and secondary schools. The proximity to Chadderton centre provides easy access to local amenities, and the slightly more rural setting offers a degree of tranquility. While the property does benefit from a small garden, the exact size is not provided. The list price of £325,000 might seem high on the surface, relative to some neighboring properties, but this price likely reflects the value added by the newly constructed extension and the planning permission granted for the work undertaken. Potential buyers should carefully review the auction terms and conditions before bidding. The lack of precise square footage information is a significant drawback in fully assessing the value proposition. A thorough professional valuation is recommended to make an informed purchase decision.
Therefore, we give this property 6 / 10. *Disclaimer: This is our option and does constitute a recommendation or financial advice. Do your own research. *
- Price
- 7
- Condition
- 6
- Location
- 7
- Land
- 4
- Bedrooms
- 3
- Bathrooms
- 1
The heatmap indicates the level of crime in the area. The color of the heatmap indicates the crime severity and recency.
Metrics Year-on-Year
- Average area value
- 270,000.00 £Increased by 16.38 %
- Average area rental value
- 1,250.00 £/moIncreased by 21.12 %
- Est rental Yield
- 5.56 %Increased by 4.12 %
- Crime Rate
- 0.00 %
Agent Activity
Kirkham Property created the listing.
Nearby Schools
| Name | Type | Ofsted | Distance |
|---|---|---|---|
| The Radclyffe School | Foundation School | Outstanding | 0.44 KM |
| Mills Hill Primary School | Community School | Outstanding | 0.73 KM |
| Blessed John Henry Newman Roman Catholic College | Voluntary Aided School | Good | 1.04 KM |
| St Herbert'S Rc School | Voluntary Aided School | Good | 1.11 KM |
| Stockbrook Children'S Centre | Children's Centre | 1.25 KM |
Images
Nearby Streets
| Name | Average Price | Average Sqft | Distance |
|---|---|---|---|
| Avon Road | £ 0 | 0 | 0.00 KM |
| Lydia Becker Way | £ 350,000 | 0 | 0.00 KM |
| Rupert Court | £ 0 | 0 | 0.00 KM |
| Lynton Close | £ 0 | 0 | 0.00 KM |
| Middlewood Court | £ 0 | 0 | 0.00 KM |
Nearby Transport
| Name | NLC | TLC | Distance |
|---|---|---|---|
| Mills Hill (Manchester) | 2920 | MIH | 1.66 KM |
| Moston | 2973 | MSO | 2.90 KM |
| Castleton (Manchester) | 2919 | CAS | 5.61 KM |
| Rochdale | 2924 | RCD | 7.19 KM |
| Fairfield | 2780 | FRF | 8.39 KM |
Nearby Listings
| Address | Price | Type | Score | Distance |
|---|---|---|---|---|
| 37 Ferney Field Road, Chadderton, Oldham, OL9 0LU | £ 375,000 | BUY | 6 / 10 | 0.00 KM |
| Ferney Field Road, Oldham | £ 350,000 | BUY | 5 / 10 | 0.01 KM |
| Ferney Field Road, Oldham | £ 695,000 | BUY | 6 / 10 | 0.01 KM |
| Ferney Field Road, Chadderton, Oldham, Greater Manchester, OL9 | £ 290,000 | BUY | 5 / 10 | 0.01 KM |
| Ferney Field Road, Chadderton, OLDHAM | £ 290,000 | BUY | 5 / 10 | 0.01 KM |
Nearby Properties
| Address | Price | Distance |
|---|---|---|
| 25 Ferney Field Road | £ 275,000 | 0.01 KM |
| 35 Ferneyfield Road | £ 230,000 | 0.01 KM |
| 11 Ferneyfield Road | £ 250,000 | 0.01 KM |
| 43 Ferneyfield Road | £ 220,000 | 0.02 KM |
| 19 Ferneyfield Road | £ 83,950 | 0.02 KM |