Hunters says ..
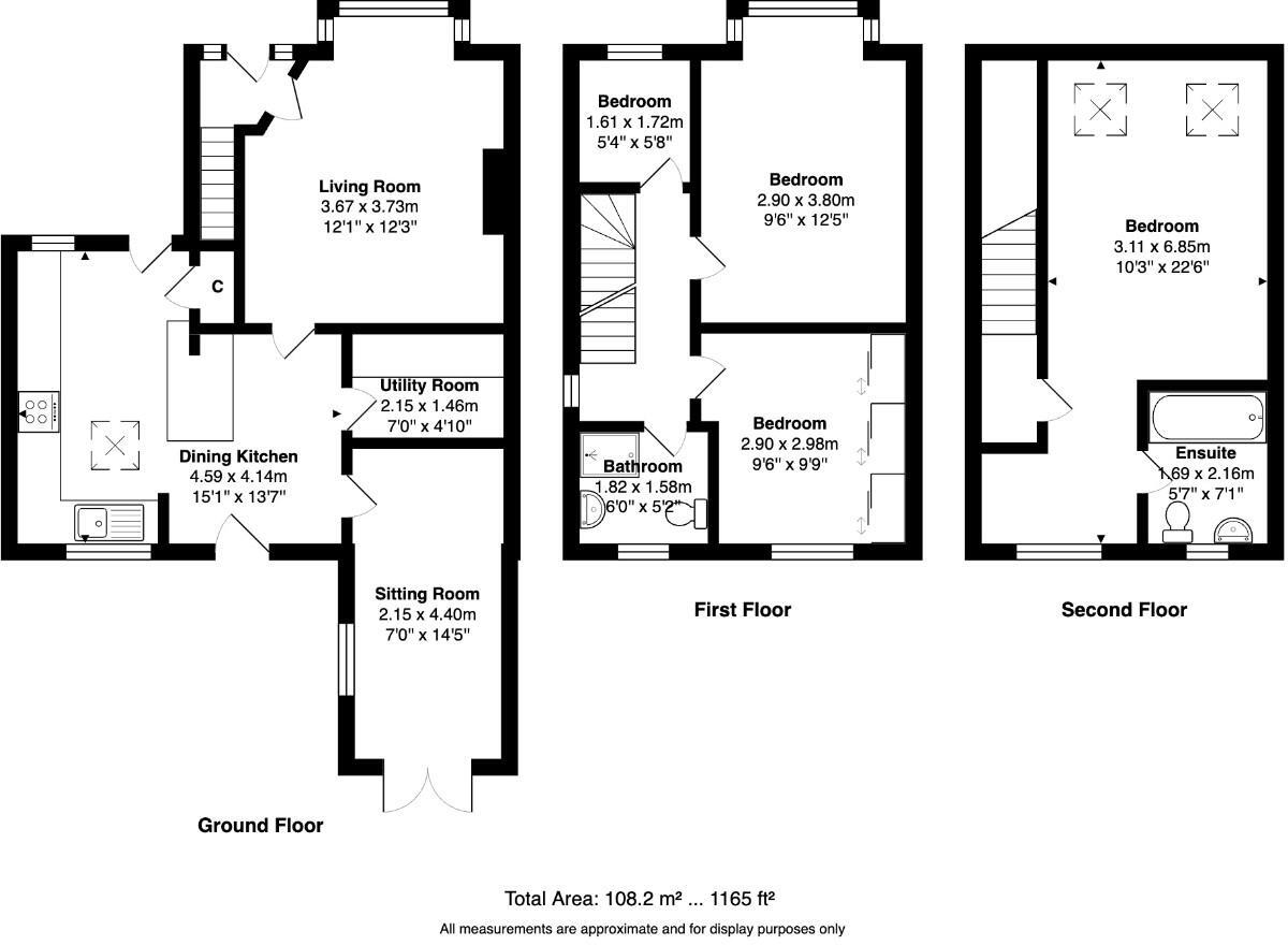
PROPERTY NOW AVAILABLE TO VIEW- PHOTOS & FLOOR PLAN TO FOLLOW SHORTLY. A splendid semi-detached house in a quiet cul-de-sac with stunning views over Queen's Park, featuring three double bedrooms, an extended kitchen, a converted loft, two exquisite bathrooms, two inviting reception rooms...
Property Oracle says ..
Therefore, we give this property 5 / 10. *Disclaimer: This is our option and does constitute a recommendation or financial advice. Do your own research. *
- Price
- 4
- Condition
- 6
- Location
- 7
- Land
- 5
- Bedrooms
- 3
- Bathrooms
- 2
The heatmap indicates the level of crime in the area. The color of the heatmap indicates the crime severity and recency.
Metrics Year-on-Year
- Average area value
- 303,941.00 £Increased by 18.76 %
- Average area rental value
- 896.00 £/moDecreased by 14.42 %
- Est rental Yield
- 3.54 %Decreased by 27.90 %
- Crime Rate
- 6.00 %Unchanged by 0.00 %
from 255,922.00 £
from 1,047.00 £/mo
from 4.91 %
from 6.00 %
Agent Activity
Hunters marked this listing as sold.
Hunters created the listing.
Nearby Schools
| Name | Type | Ofsted | Distance |
|---|---|---|---|
| Pudsey Waterloo Primary | Academy Converter | 0.29 KM | |
| Greenside Primary School | Community School | Good | 1.17 KM |
| Pudsey Primrose Hill Primary School | Academy Converter | 1.20 KM | |
| Farsley & Calverley Children'S Centre | Children's Centre | 1.35 KM | |
| Westroyd Primary School And Nursery | Community School | Good | 1.39 KM |
Images
Nearby Streets
| Name | Average Price | Average Sqft | Distance |
|---|---|---|---|
| Aspect Gardens | £ 0 | 0 | 0.00 KM |
| Owlcotes Terrace | £ 125,000 | 0 | 0.00 KM |
| Prospect Avenue | £ 220,000 | 0 | 0.00 KM |
| Gibraltar Road | £ 250,000 | 0 | 0.00 KM |
| Smalewell Close | £ 515,000 | 0 | 0.00 KM |
Nearby Transport
| Name | NLC | TLC | Distance |
|---|---|---|---|
| New Pudsey | 8506 | NPD | 0.87 KM |
| Bramley (West Yorkshire) | 8496 | BLE | 4.48 KM |
| Apperley Bridge | 8562 | APY | 5.85 KM |
| Kirkstall Forge | 6544 | KLF | 6.68 KM |
| Horsforth | 8499 | HRS | 7.59 KM |
Nearby Listings
| Address | Price | Type | Score | Distance |
|---|---|---|---|---|
| Owlcotes Drive, Pudsey, , LS28 7TB | £ 325,000 | BUY | 5 / 10 | 0.00 KM |
| Owlcotes Drive, Pudsey, Leeds | £ 249,000 | BUY | 7 / 10 | 0.01 KM |
| Victoria Rise, Pudsey, West Yorkshire | £ 399,950 | BUY | 7 / 10 | 0.04 KM |
| Cemetery Road, Pudsey, West Yorkshire | £ 150,000 | BUY | 6 / 10 | 0.07 KM |
| Highfield Street, Pudsey | £ 90,000 | BUY | Unknown | 0.07 KM |
Nearby Properties
| Address | Price | Distance |
|---|---|---|
| 4 Owlcotes Drive | £ 130,000 | 0.02 KM |
| 1 Owlcotes Drive | £ 42,000 | 0.02 KM |
| 5 Owlcotes Drive | £ 125,000 | 0.02 KM |
| 7 Owlcotes Drive | £ 162,000 | 0.02 KM |
| 14 Victoria Rise | £ 149,995 | 0.06 KM |