Crescent Gardens, St. Albans
JA

Crescent Gardens, St. Albans

By Jake Charles Property

£ 495,000

Reviews

3 out of 5 stars

Jake Charles Property says ..

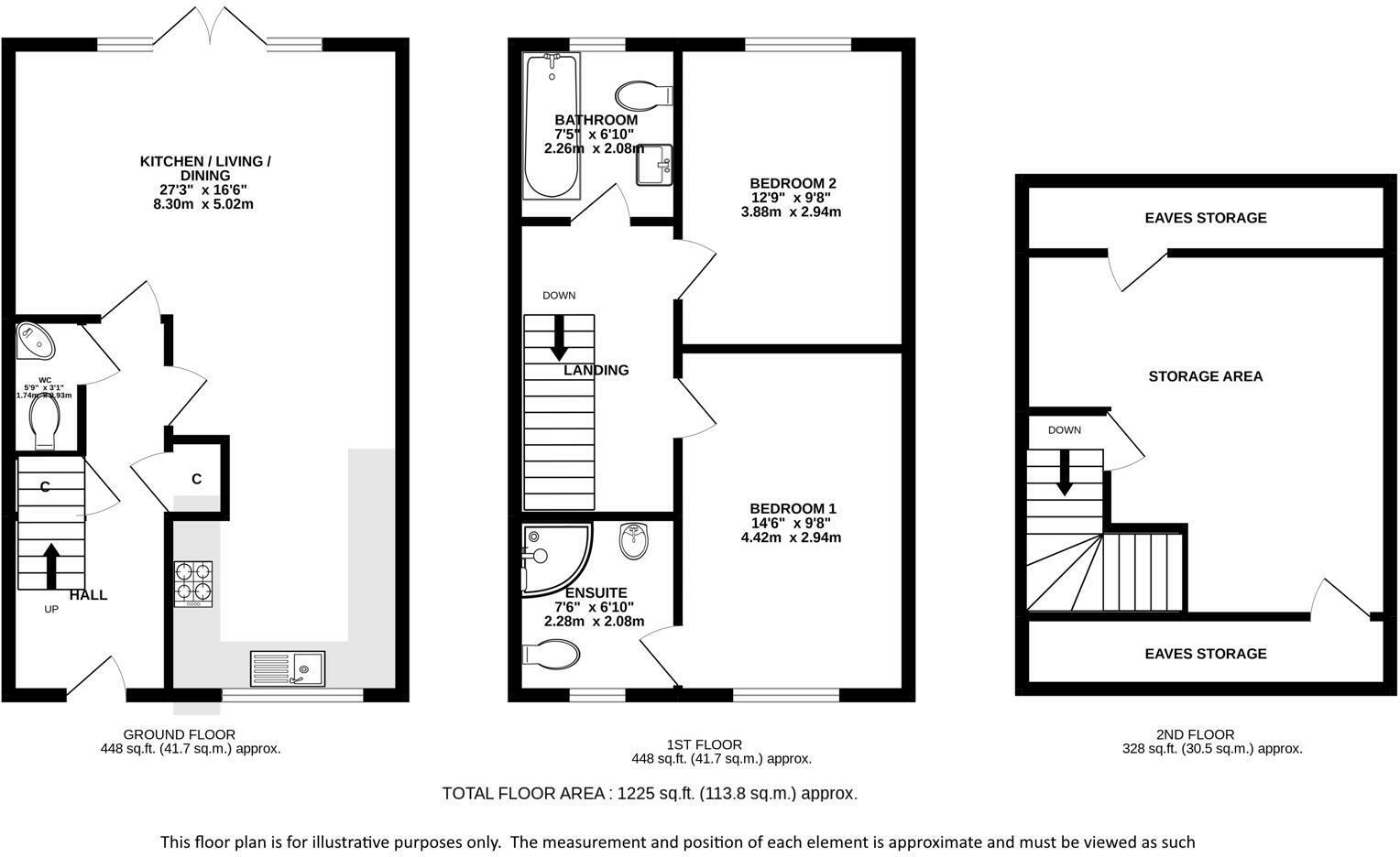
Jake Charles Property are proud to present this modern end of terrace home which features two spacious double bedrooms and two bathrooms, situated within an attractive gated development on the outskirts of St Albans. Complete with allocated parking and available with no onward chain. Crescent Gar...

Property Oracle says ..

This property is a 2 bedroom, 2 bathroom house located in St Albans, Hertfordshire. The property is modern and well-maintained, as seen in the provided photographs. It benefits from a good-sized rear garden. The location is convenient, with several schools and train stations within a reasonable distance. However, the list price is significantly below the average price for the area, and the plot size is 0.00 sqft. This discrepancy requires further investigation to determine the accuracy of the listing information.

Therefore, we give this property 7 / 10. *Disclaimer: This is our option and does constitute a recommendation or financial advice. Do your own research. *

Price
6
Condition
9
Location
8
Land
7
Bedrooms
2
Bathrooms
2
Sqft (est)
1,224.93

The heatmap indicates the level of crime in the area. The color of the heatmap indicates the crime severity and recency.

Metrics Year-on-Year

Average area value
688,333.00 £
Decreased by 8.54 %
from 752,601.00 £
Est sale value
895,423.83 £
Increased by 26.03 %
from 710,459.40 £
Average area rental value
1,650.00 £/mo
Decreased by 35.09 %
from 2,542.00 £/mo
Est letting value
1,224.93 £/mo
Unchanged by 0.00 %
from 1,224.93 £/mo
Est rental Yield
2.88 %
Decreased by 28.89 %
from 4.05 %
Crime Rate
17.00 %
Unchanged by 0.00 %
from 17.00 %

Agent Activity

  • Jake Charles Property created the listing.

Nearby Schools

NameTypeOfstedDistance
Nicholas Breakspear Catholic SchoolAcademy ConverterGood1.40 KM
Colney Heath Junior Mixed Infant And Nursery SchoolCommunity SchoolGood1.79 KM
Links AcademyAcademy Alternative Provision ConverterGood1.94 KM
Oaklands CollegeFurther EducationRequires improvement1.98 KM
Sa10 London Colney Family CentreChildren's Centre2.42 KM

Images

e6d77266-6d51-4f37-bede-a11a59bd0f7f.jpg 292f464a-1e6b-49ae-8d7c-1045a2d4a510.jpg e4762c2a-9349-472c-b267-0003645968a7.jpg c9eebb14-33e5-49bf-bff7-55953733045e.jpg 21399990-928a-4fe0-a35e-bd6682fd3352.jpg 954c4b38-cd0e-4ccc-b472-5b359b882c89.jpg f8aea6fb-74ef-4854-b6cb-30269f76b2dc.jpg a8aa1e2f-f1c9-497d-b2a9-5afd555da779.jpg 0e709922-58c7-4b6f-9596-3fac7d92627f.jpg dd5b2d60-e451-406f-abff-3a6f07c9c045.jpeg 6d1dc09c-b332-4c17-9c1a-3b5e2cbb6e9f.jpg 99a61475-57b2-467f-823e-12e37aec88ce.jpg 49728e04-cc72-4469-aa50-2387764a562b.jpg 5fa0c97c-e408-45cb-aa29-74cd801704f1.jpg 59b5f8cd-ca8c-4d6c-a06b-f218e8f4a74e.jpg 21a5f092-05da-4825-b896-732be08392f2.jpg 41ebbf26-d413-4a21-910e-8163f176552f.jpg c53cc334-19f6-43ec-bc9d-b01fc0333153.jpg d1160260-0abf-4eba-abab-0e4c13a1b75b.jpg 51892e9e-0c22-478f-ab8b-7b921f08eea9.jpg 36474380-0436-496b-838b-1cabe12275ae.jpg e47ab1d5-e30f-4f08-a99e-ed3f77f5a9b0.jpg c6026bbe-ad27-46cb-9555-8b4fa3f14042.jpg fa4ffa2a-e886-44b2-ae66-5df57912ad3a.jpg 1e27d209-da70-4da7-84e5-6b27904adf02.jpg

Nearby Streets

NameAverage PriceAverage SqftDistance
Merryfields £ 000.00 KM

Nearby Transport

NameNLCTLCDistance
St Albans City1548SAC5.52 KM
Park Street1561PKT6.99 KM
St Albans Abbey1562SAA7.08 KM
Radlett1546RDT7.43 KM
Hatfield (Herts)6070HAT7.48 KM

Nearby Listings

AddressPriceTypeScoreDistance
Crescent Gardens, St. Albans £ 495,000BUY7 / 100.00 KM
Crescent Gardens, St. Albans £ 475,000BUY7 / 100.01 KM
Crescent Gardens, St Albans, AL4 0FZ £ 600,000BUY8 / 100.03 KM
House 1, Barley Mews, St Albans, AL4 £ 885,000BUY7 / 100.05 KM
House 3, Barley Mews, St Albans, AL4 £ 765,000BUY7 / 100.05 KM

Nearby Properties

AddressPriceDistance
1 Barley Mow Lane £ 599,9500.48 KM
2 Barley Mow Lane £ 290,0000.48 KM
125 Colney Heath Lane £ 750,0000.87 KM
101 Colney Heath Lane £ 353,0000.87 KM
163 Colney Heath Lane £ 480,0000.87 KM