St. Leonards Road, Hythe, Kent
By Rogans Estate Agents
£ 995,000
Reviews
3 out of 5 stars
Rogans Estate Agents says ..
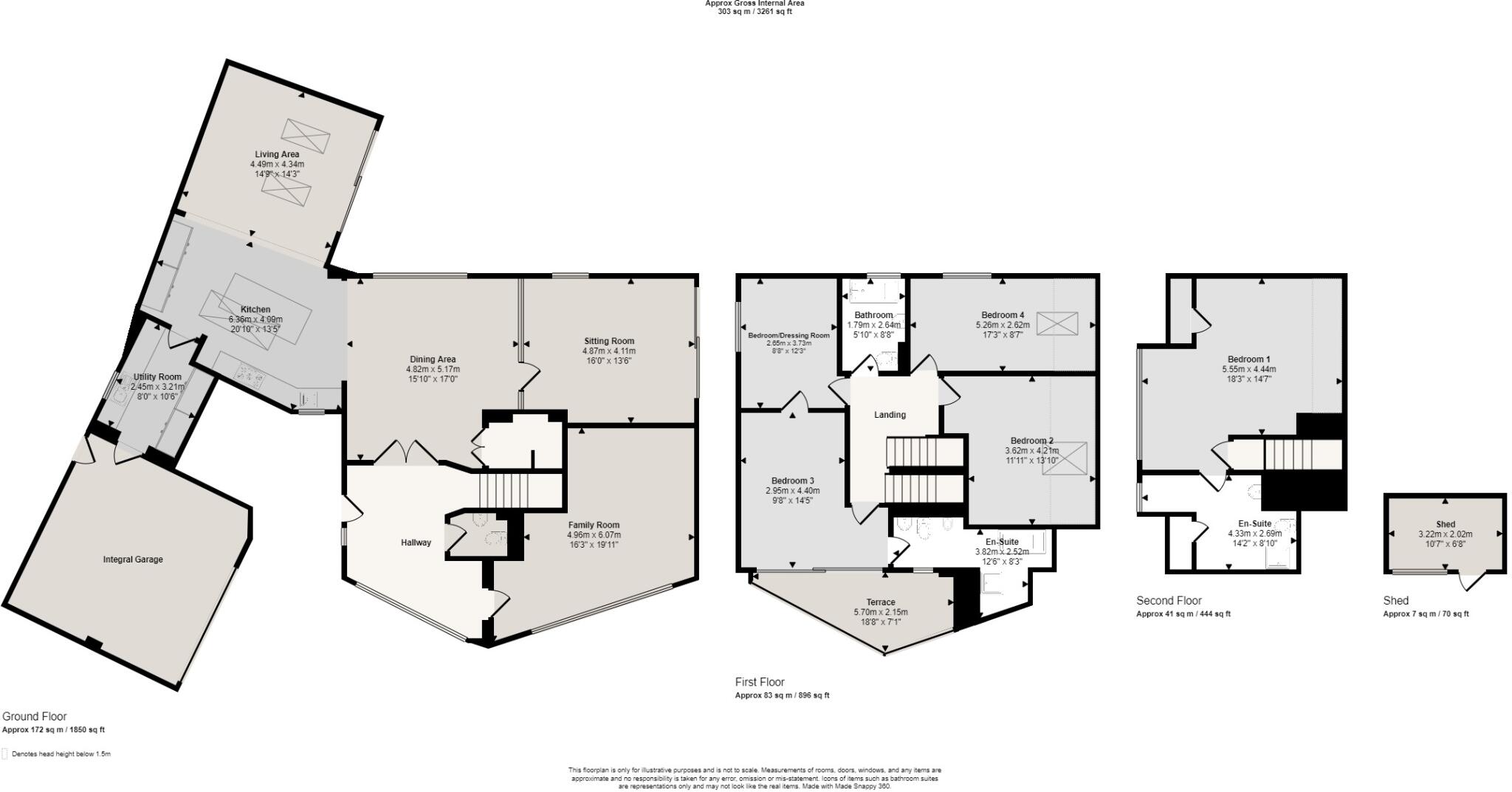
A simply stunning four/five bedroom black weather boarded detached house which has been finished to a high standard and located only a stones throw away from the beach. The property comprises of entrance hall, dining room, Nobilia German kitchen, living area, snug, utility room, cloakroom & famil...
Property Oracle says ..
This is a modern, detached property located in the coastal town of Hythe, Kent. The property has five bedrooms and three bathrooms, making it a good size for a family home. The property is in excellent condition, with modern fixtures and fittings throughout. It benefits from a garage, utility room and ensuite. The property has a good-sized garden with a patio area and lawn. The property is located within walking distance of local schools and amenities. The nearest train station is 3.15 KM away. The property is listed for £995,000, which is slightly higher than the average price for similar properties in the area.
Therefore, we give this property 7 / 10. *Disclaimer: This is our option and does constitute a recommendation or financial advice. Do your own research. *
- Price
- 6
- Condition
- 9
- Location
- 7
- Land
- 7
- Bedrooms
- 5
- Bathrooms
- 3
The heatmap indicates the level of crime in the area. The color of the heatmap indicates the crime severity and recency.
Metrics Year-on-Year
- Average area value
- 695,750.00 £Increased by 35.80 %
- Average area rental value
- 1,400.00 £/moDecreased by 11.56 %
- Est rental Yield
- 2.41 %Decreased by 35.04 %
- Crime Rate
- 6.00 %Unchanged by 0.00 %
Agent Activity
Rogans Estate Agents created the listing.
Nearby Schools
| Name | Type | Ofsted | Distance |
|---|---|---|---|
| Hythe Bay Children'S Centre | Children's Centre | 0.38 KM | |
| Hythe Bay Cofe Primary School | Voluntary Controlled School | Good | 0.39 KM |
| St Augustine'S Catholic Primary School | Voluntary Aided School | Good | 1.66 KM |
| Saltwood Cofe Primary School | Voluntary Aided School | Outstanding | 1.74 KM |
| Brockhill Park Performing Arts College | Academy Converter | Good | 2.34 KM |
Images
Nearby Streets
| Name | Average Price | Average Sqft | Distance |
|---|---|---|---|
| St. Hilda's Road | £ 1,500,000 | 0 | 0.00 KM |
| Bay Side | £ 0 | 0 | 0.00 KM |
| Ocean Gateway | £ 0 | 0 | 0.00 KM |
| St. Leonards Mews | £ 0 | 0 | 0.00 KM |
| Chapel Mews | £ 0 | 0 | 0.00 KM |
Nearby Transport
| Name | NLC | TLC | Distance |
|---|---|---|---|
| Sandling | 5025 | SDG | 3.15 KM |
| Westenhanger | 5030 | WHA | 5.59 KM |
| Folkestone West | 5027 | FKW | 8.61 KM |
Nearby Listings
| Address | Price | Type | Score | Distance |
|---|---|---|---|---|
| St. Leonards Road, Hythe, Kent | £ 995,000 | BUY | 7 / 10 | 0.00 KM |
| St Leonards Road, Hythe, CT21 | £ 695,000 | BUY | 7 / 10 | 0.00 KM |
| Bay, 98 St Leonards Road, Hythe, Kent | £ 1,500,000 | BUY | 6 / 10 | 0.04 KM |
| St. Hildas Road, Hythe | £ 650,000 | BUY | 8 / 10 | 0.07 KM |
| Range Road, Hythe | £ 450,000 | BUY | 6 / 10 | 0.09 KM |
Nearby Properties
| Address | Price | Distance |
|---|---|---|
| 79 St Leonards Road | £ 300,000 | 0.03 KM |
| 81 St Leonards Road | £ 425,000 | 0.03 KM |
| 2 Range Road | £ 283,000 | 0.10 KM |
| 16 Range Road | £ 75,000 | 0.10 KM |
| 75a St Leonards Road | £ 519,950 | 0.11 KM |