Newland Park Drive, Hull Road
By Churchills Estate Agents
£ 340,000
Reviews
3 out of 5 stars
Churchills Estate Agents says ..
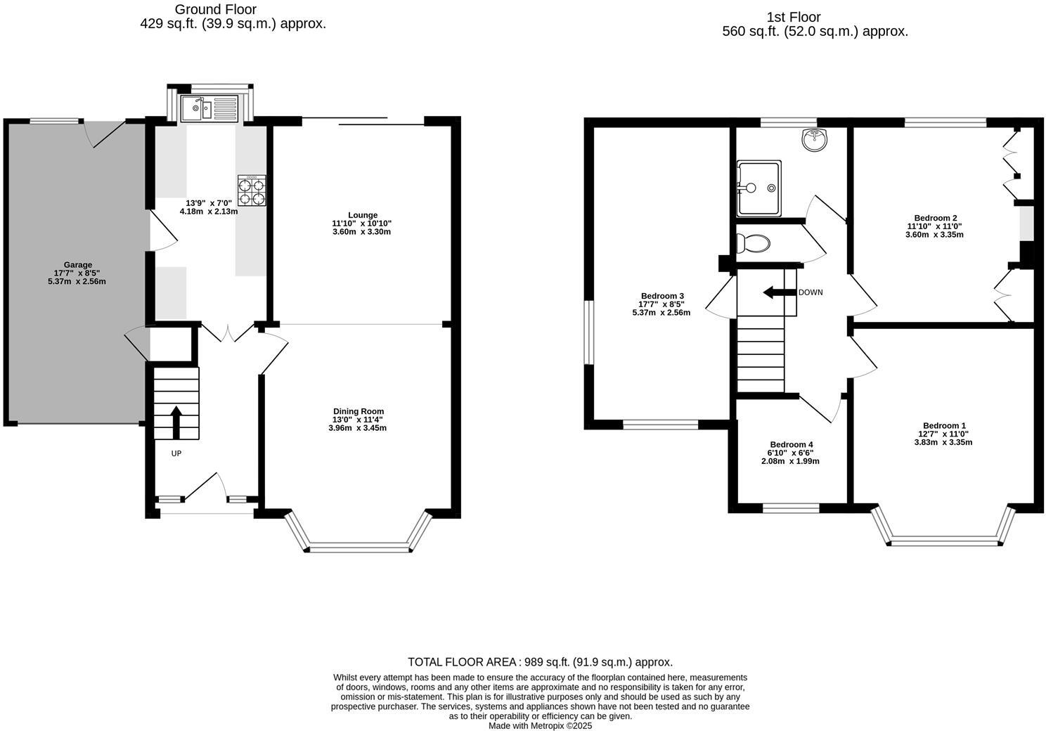
NO ONWARD CHAIN! An extended, traditional style four bedroom semi-detached home located on this popular residential street convenient for York city centre, the University and the outer ring road. Although in need of some cosmetic updating the house has the added benefit of double glazing, recentl...
Property Oracle says ..
This property is a 4-bedroom semi-detached house located on Newland Park Drive in York. The asking price of £340,000 is slightly below the average price for the area (£482,353), but significantly lower than the average price per square foot (£308). The property appears to be in generally good condition, although some rooms show their age and could benefit from modernisation. The property benefits from a garden, which is a desirable feature in this market. The location is convenient, with relatively close proximity to schools and transport links. However, the lack of plot size information makes it difficult to accurately assess the overall value.
Therefore, we give this property 7 / 10. *Disclaimer: This is our option and does constitute a recommendation or financial advice. Do your own research. *
- Price
- 7
- Condition
- 7
- Location
- 8
- Land
- 6
- Bedrooms
- 4
- Bathrooms
- 1
- Sqft (est)
- 989.00
The heatmap indicates the level of crime in the area. The color of the heatmap indicates the crime severity and recency.
Metrics Year-on-Year
- Average area value
- 591,875.00 £Increased by 5.13 %
- Est sale value
- 471,753.00 £Decreased by 6.47 %
- Average area rental value
- 1,194.00 £/moDecreased by 3.63 %
- Est letting value
- 0.00 £/moDecreased by 100.00 %
- Est rental Yield
- 2.42 %Decreased by 8.33 %
- Crime Rate
- 6.00 %Unchanged by 0.00 %
Agent Activity
Churchills Estate Agents created the listing.
Nearby Schools
| Name | Type | Ofsted | Distance |
|---|---|---|---|
| University Of York | Higher Education Institutions | 0.61 KM | |
| St Aelred'S Catholic Primary School - A Catholic Voluntary Academy | Academy Converter | 1.05 KM | |
| Archbishop Holgate'S School, A Church Of England Academy | Academy Converter | Outstanding | 1.08 KM |
| Badger Hill Primary Academy | Academy Converter | Good | 1.11 KM |
| Lord Deramore'S Primary School | Voluntary Controlled School | Good | 1.14 KM |
Images
Nearby Streets
| Name | Average Price | Average Sqft | Distance |
|---|---|---|---|
| Millfield Court | £ 180,000 | 0 | 0.00 KM |
| Mallard Close | £ 475,000 | 0 | 0.00 KM |
| Derwent Valley & Foss Islands Track | £ 0 | 0 | 0.00 KM |
| Old School Close | £ 0 | 0 | 0.00 KM |
| Rockingham Avenue | £ 0 | 0 | 0.00 KM |
Nearby Transport
| Name | NLC | TLC | Distance |
|---|---|---|---|
| York | 8263 | YRK | 4.71 KM |
Nearby Listings
| Address | Price | Type | Score | Distance |
|---|---|---|---|---|
| Newland Park Drive, Hull Road | £ 340,000 | BUY | 7 / 10 | 0.00 KM |
| Newland Park Drive, York | £ 340,000 | BUY | 7 / 10 | 0.02 KM |
| Newland Park Drive, York | £ 325,000 | BUY | 5 / 10 | 0.05 KM |
| Newland Park Drive, York | £ 300,000 | BUY | 6 / 10 | 0.05 KM |
| Norman Street, York | £ 245,000 | BUY | 6 / 10 | 0.11 KM |
Nearby Properties
| Address | Price | Distance |
|---|---|---|
| 149 Thief Lane | £ 124,000 | 0.05 KM |
| 181 Thief Lane | £ 225,000 | 0.05 KM |
| 179 Thief Lane | £ 146,000 | 0.05 KM |
| 145 Thief Lane | £ 87,000 | 0.05 KM |
| 173 Thief Lane | £ 140,000 | 0.05 KM |