HU
Greenside Walk, Dunnington, York YO19 5RQ
By Hudson Moody
£ 500,000
Reviews
3 out of 5 stars
Hudson Moody says ..
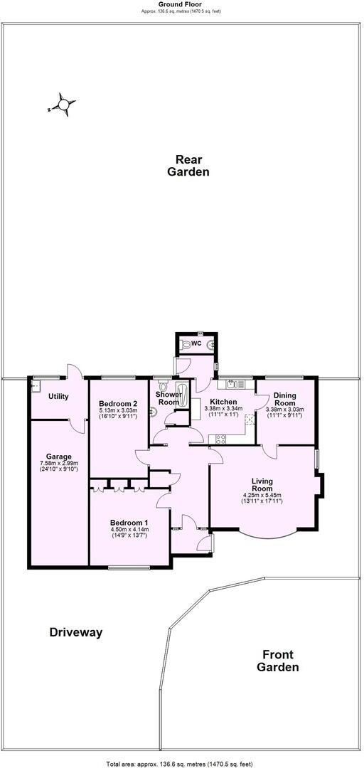
A FINELY POSITIONED bungalow standing on a GOOD SIZED PLOT with lovely lawned gardens backing onto open countryside. Complimented by TANDEM LENGTH GARAGE. Conveniently offered with no onward chain.
Property Oracle says ..
Therefore, we give this property 7 / 10. *Disclaimer: This is our option and does constitute a recommendation or financial advice. Do your own research. *
- Price
- 6
- Condition
- 8
- Location
- 7
- Land
- 7
- Bedrooms
- 2
- Bathrooms
- 1
- Sqft (est)
- 1,092.64
The heatmap indicates the level of crime in the area. The color of the heatmap indicates the crime severity and recency.
Metrics Year-on-Year
- Average area value
- 476,500.00 £Increased by 12.19 %
- Est sale value
- 462,186.72 £Increased by 50.53 %
- Average area rental value
- 1,850.00 £/moIncreased by 11.45 %
- Est letting value
- 1,092.64 £/moUnchanged by 0.00 %
- Est rental Yield
- 4.66 %Decreased by 0.64 %
- Crime Rate
- 31.00 %Unchanged by 0.00 %
from 424,744.00 £
from 307,031.84 £
from 1,660.00 £/mo
from 1,092.64 £/mo
from 4.69 %
from 31.00 %
Agent Activity
Hudson Moody created the listing.
Nearby Schools
| Name | Type | Ofsted | Distance |
|---|---|---|---|
| Dunnington Church Of England Primary School | Academy Converter | 0.94 KM | |
| Warthill Church Of England Voluntary Controlled Primary School | Voluntary Controlled School | Outstanding | 3.31 KM |
| Stockton-On-The-Forest Primary School | Community School | Good | 4.75 KM |
| Elvington Church Of England Voluntary Controlled Primary School | Voluntary Controlled School | Good | 5.85 KM |
| Osbaldwick Primary Academy | Academy Converter | 6.73 KM |
Images
Nearby Streets
| Name | Average Price | Average Sqft | Distance |
|---|---|---|---|
| Ashdale Road | £ 340,000 | 0 | 0.00 KM |
| The Glebe | £ 0 | 0 | 0.00 KM |
| Manor Drive | £ 0 | 0 | 0.00 KM |
| Twinam Court | £ 0 | 0 | 0.00 KM |
| Derwent Court | £ 170,000 | 0 | 0.00 KM |
Nearby Listings
| Address | Price | Type | Score | Distance |
|---|---|---|---|---|
| Greenside Walk, Dunnington, York YO19 5RQ | £ 500,000 | BUY | 7 / 10 | 0.00 KM |
| Greenside Walk, Dunnington, York | £ 425,000 | BUY | 6 / 10 | 0.11 KM |
| Greenside Close, Dunnington, York, YO19 5PF | £ 350,000 | BUY | 7 / 10 | 0.12 KM |
| Deerstone Way, Dunnington, York, YO19 5RB | £ 350,000 | BUY | Unknown | 0.16 KM |
| 64 Cedar Glade, Dunnington YO19 5PL | £ 375,000 | BUY | 7 / 10 | 0.22 KM |
Nearby Properties
| Address | Price | Distance |
|---|---|---|
| 21 Greenside Walk | £ 345,000 | 0.09 KM |
| 3 Greenside Walk | £ 171,000 | 0.09 KM |
| 11 Greenside Walk | £ 265,000 | 0.09 KM |
| 7 Greenside Walk | £ 445,000 | 0.09 KM |
| 17 Greenside Walk | £ 370,000 | 0.09 KM |