Conwy Old Road, Capelulo, Dwygyfylchi
By Fletcher & Poole
£ 220,000
Reviews
3 out of 5 stars
Fletcher & Poole says ..
A lovely two bedroom end terrace home (1 of 3) situated in the lovely and picturesque hamlet of Capelulo. The property enjoys superb views over the mountains to the front, side and rear and views of the sea and Dwgygyflchi to the front aspect. Located close to the Snowdonia National Park with lov...
Property Oracle says ..
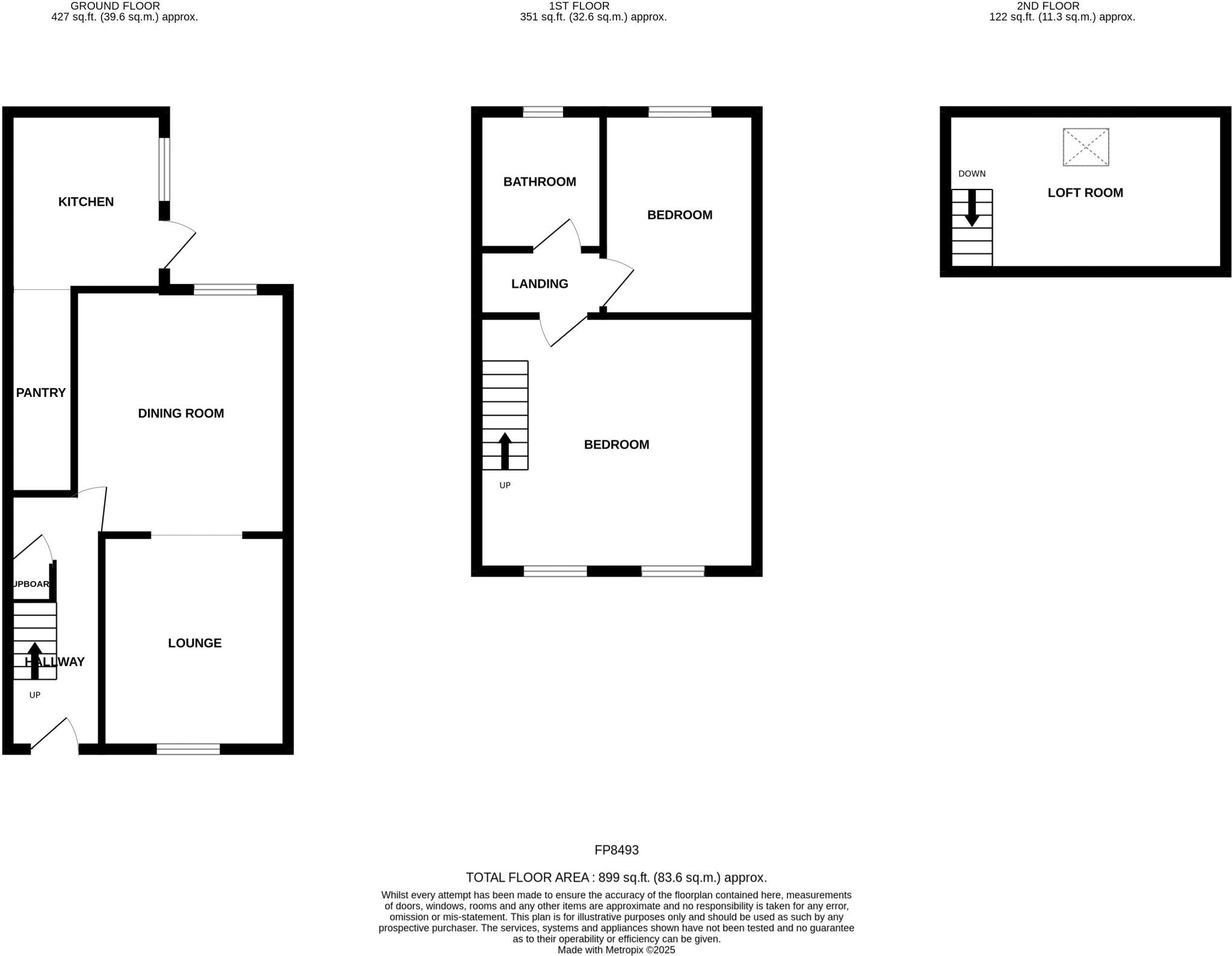
This terraced property in Capelulo, Dwygyfylchi, offers a blend of traditional charm and modern updates. The house includes two bedrooms and one bathroom, with a total area of 792 sqft. The modern kitchen is a definite plus, while the bathroom could use some updating. The property also features a garden that, while currently overgrown, offers potential for creating a lovely outdoor space. Located on Conwy Old Road, the house benefits from good transport links and proximity to local amenities. The asking price of £220,000 seems reasonable, especially considering the lower-than-average price per square foot compared to other properties in the area. This property is a good opportunity for buyers looking for a home with character that they can improve and personalize.
Therefore, we give this property 7 / 10. *Disclaimer: This is our option and does constitute a recommendation or financial advice. Do your own research. *
- Price
- 8
- Condition
- 6
- Location
- 7
- Land
- 7
- Bedrooms
- 2
- Bathrooms
- 1
- Sqft (est)
- 792.00
The heatmap indicates the level of crime in the area. The color of the heatmap indicates the crime severity and recency.
Metrics Year-on-Year
- Average area value
- 401,278.00 £Increased by 42.31 %
- Est sale value
- 392,832.00 £Increased by 69.28 %
- Average area rental value
- 1,053.00 £/moDecreased by 6.32 %
- Est letting value
- 792.00 £/moUnchanged by 0.00 %
- Est rental Yield
- 3.15 %Decreased by 34.10 %
- Crime Rate
- 2.00 %Unchanged by 0.00 %
Agent Activity
Fletcher & Poole created the listing.
Nearby Schools
| Name | Type | Ofsted | Distance |
|---|---|---|---|
| Ysgol Capelulo | Welsh Establishment | 1.86 KM | |
| Ysgol Pencae | Welsh Establishment | 3.01 KM | |
| Ysgol Llangelynnin | Welsh Establishment | 4.89 KM | |
| Ysgol Aberconwy | Welsh Establishment | 5.77 KM | |
| Ysgol Porth Y Felin | Welsh Establishment | 6.04 KM |
Images
Nearby Streets
| Name | Average Price | Average Sqft | Distance |
|---|---|---|---|
| Golygfa Sychnant | £ 0 | 0 | 0.00 KM |
| Groesffordd Lane | £ 0 | 0 | 0.00 KM |
| Maes Y Lan | £ 0 | 0 | 0.00 KM |
Nearby Transport
| Name | NLC | TLC | Distance |
|---|---|---|---|
| Penmaenmawr | 2494 | PMW | 4.00 KM |
| Conwy | 2486 | CNW | 6.35 KM |
| Deganwy | 2480 | DGY | 6.50 KM |
| Llandudno | 2484 | LLD | 8.64 KM |
| Llandudno Junction | 2485 | LLJ | 8.76 KM |
Nearby Listings
| Address | Price | Type | Score | Distance |
|---|---|---|---|---|
| Conwy Old Road, Capelulo, Dwygyfylchi | £ 220,000 | BUY | 7 / 10 | 0.00 KM |
| Conwy Old Road, Capelulo, Dwygyfylchi, Penmaenmawr, LL34 | £ 325,000 | BUY | 5 / 10 | 0.01 KM |
| Llwyn Celyn, Conwy Old Road, Dwygyfylchi, Penmaenmawr, Gwynedd, LL34 6SP | £ 230,000 | BUY | 6 / 10 | 0.29 KM |
| Fairy Glen Road, Dwygyfylchi | £ 575,000 | BUY | 7 / 10 | 0.30 KM |
| Brookside Cottages , Capelulo | £ 250,000 | BUY | Unknown | 0.34 KM |
Nearby Properties
| Address | Price | Distance |
|---|---|---|
| Pen Y Glyn | £ 700,000 | 0.01 KM |
| Woodbriar | £ 295,000 | 0.01 KM |
| Rhona | £ 159,000 | 0.16 KM |
| Heather Cottage | £ 399,950 | 0.16 KM |
| Aeronfa | £ 170,000 | 0.16 KM |