IA
Burscough Street, Ormskirk, L39 2EY
By Ian Anthony Estates
£ 194,950
Reviews
4 out of 5 stars
Ian Anthony Estates says ..
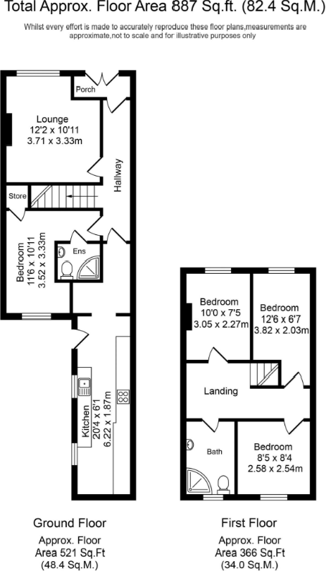
A fantastic investment opportunity on Burscough Street, Ormskirk, offering a high rental yield of over 12% at the current asking price. This fully tenanted, four-bedroom terraced house is a working HMO, fully compliant with West Lancashire Council regulations. The property comes complete with ...
Property Oracle says ..
Therefore, we give this property 8 / 10. *Disclaimer: This is our option and does constitute a recommendation or financial advice. Do your own research. *
- Price
- 9
- Condition
- 8
- Location
- 9
- Land
- 7
- Bedrooms
- 4
- Bathrooms
- 2
- Sqft (est)
- 609.75
The heatmap indicates the level of crime in the area. The color of the heatmap indicates the crime severity and recency.
Metrics Year-on-Year
- Average area value
- 307,500.00 £Increased by 15.00 %
- Est sale value
- 166,461.75 £Decreased by 8.39 %
- Average area rental value
- 831.00 £/moIncreased by 55.33 %
- Est letting value
- 0.00 £/mo
- Est rental Yield
- 3.24 %Increased by 35.00 %
- Crime Rate
- 18.00 %Unchanged by 0.00 %
from 267,396.00 £
from 181,705.50 £
from 535.00 £/mo
from 0.00 £/mo
from 2.40 %
from 18.00 %
Agent Activity
Ian Anthony Estates created the listing.
Nearby Schools
| Name | Type | Ofsted | Distance |
|---|---|---|---|
| Turning Point Academy | Other Independent School | Good | 0.41 KM |
| Ormskirk Church Of England Primary School | Voluntary Controlled School | Good | 0.71 KM |
| Moorgate Nursery School & Children'S Centre | Children's Centre | 0.92 KM | |
| Moorgate Nursery School | Local Authority Nursery School | Outstanding | 0.92 KM |
| Ormskirk West End School | Community School | Good | 1.01 KM |
Images
Nearby Streets
| Name | Average Price | Average Sqft | Distance |
|---|---|---|---|
| Atkinson Road | £ 0 | 0 | 0.00 KM |
| Leyland Way | £ 0 | 0 | 0.00 KM |
| Abbotsford | £ 125,000 | 0 | 0.00 KM |
| Green Lane Avenue | £ 0 | 0 | 0.00 KM |
| Grove Park | £ 289,000 | 0 | 0.00 KM |
Nearby Transport
| Name | NLC | TLC | Distance |
|---|---|---|---|
| Ormskirk | 2281 | OMS | 0.26 KM |
| Aughton Park | 2215 | AUG | 2.38 KM |
| Town Green | 2283 | TWN | 4.01 KM |
| New Lane | 2358 | NLN | 4.76 KM |
| Burscough Junction | 2280 | BCJ | 5.45 KM |
Nearby Listings
| Address | Price | Type | Score | Distance |
|---|---|---|---|---|
| Burscough Street, Ormskirk, L39 2EY | £ 194,950 | BUY | 8 / 10 | 0.00 KM |
| Burscough Street, Ormskirk, Lancashire, L39 | £ 220,000 | BUY | 5 / 10 | 0.02 KM |
| Burscough Street, Ormskirk | £ 225,000 | BUY | 7 / 10 | 0.06 KM |
| Burscough Street, Ormskirk, Lancashire, L39 | £ 235,000 | BUY | 7 / 10 | 0.07 KM |
| Chestnut Court, Ormskirk, Lancashire, L39 2JB | £ 217,000 | BUY | 6 / 10 | 0.16 KM |
Nearby Properties
| Address | Price | Distance |
|---|---|---|
| 172 Burscough Street | £ 138,000 | 0.00 KM |
| 154 Burscough Street | £ 160,000 | 0.00 KM |
| 196 Burscough Street | £ 280,000 | 0.00 KM |
| 194 Burscough Street | £ 118,000 | 0.00 KM |
| 168 Burscough Street | £ 56,500 | 0.00 KM |