Plot 3 Brooklands Park, Haverfordwest, Pembrokeshire, SA61
By John Francis
£ 425,000
Reviews
3 out of 5 stars
John Francis says ..
OPEN DAY 8TH FEBRUARY 11.00 - 3PM PLEASE CONTACT COME ALONG AND SEE HOW YOU CAN MAKE YOUR HOME BESPOKE - Rarely does an opportunity arise where you can personalise your brand new home with these superbly thought out contemporary, stylish and modern new homes!
Property Oracle says ..
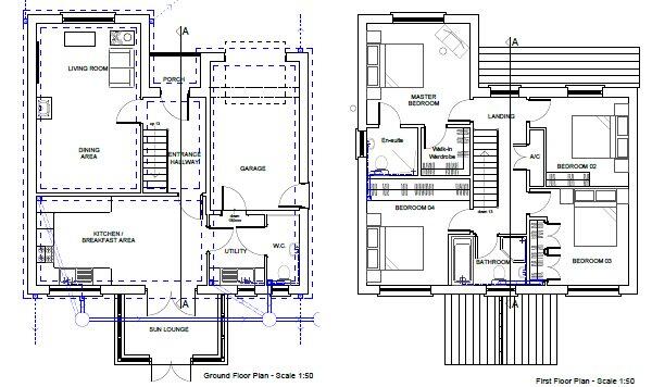
This property is a new build, four-bedroom house located in Brooklands Park, Haverfordwest. The images and floor plans suggest a modern, well-designed home with a contemporary aesthetic. The property appears to be in excellent condition, likely benefiting from warranties associated with new constructions. The location offers reasonable proximity to schools and Haverfordwest town center, although the immediate surroundings may be relatively quiet and residential. The lack of specific details regarding plot size and internal square footage makes a precise assessment of value challenging. The list price of £425,000 sits within the range of nearby properties, suggesting a reasonable asking price in the current market. Overall, this property could appeal to families seeking a modern home in a relatively convenient location. Buyers should consider the specifics of their needs and preferences when evaluating the property’s suitability and value. The absence of information regarding property size limits detailed analysis of the cost per square foot and the overall value proposition.
Therefore, we give this property 6 / 10. *Disclaimer: This is our option and does constitute a recommendation or financial advice. Do your own research. *
- Price
- 7
- Condition
- 9
- Location
- 7
- Land
- 4
- Bedrooms
- 4
- Bathrooms
- 0
The heatmap indicates the level of crime in the area. The color of the heatmap indicates the crime severity and recency.
Metrics Year-on-Year
- Average area value
- 240,047.00 £Decreased by 22.62 %
- Average area rental value
- 850.00 £/moIncreased by 30.77 %
- Est rental Yield
- 4.25 %Increased by 69.32 %
- Crime Rate
- 4.00 %Unchanged by 0.00 %
Agent Activity
John Francis created the listing.
Nearby Schools
| Name | Type | Ofsted | Distance |
|---|---|---|---|
| Redhill Preparatory School | Welsh Establishment | 0.08 KM | |
| Portfield School | Welsh Establishment | 0.43 KM | |
| Haverfordwest High Vc School | Welsh Establishment | 0.67 KM | |
| Mary Immaculate V.R.C. School | Welsh Establishment | 0.93 KM | |
| Fenton C.P | Welsh Establishment | 1.01 KM |
Images
Nearby Streets
| Name | Average Price | Average Sqft | Distance |
|---|---|---|---|
| Brooklands Park | £ 437,500 | 0 | 0.00 KM |
| Penn's Close | £ 0 | 0 | 0.00 KM |
| Spring Grove | £ 0 | 0 | 0.00 KM |
| Merlins Hill | £ 0 | 0 | 0.00 KM |
| Three Meadows | £ 0 | 0 | 0.00 KM |
Nearby Transport
| Name | NLC | TLC | Distance |
|---|---|---|---|
| Haverfordwest | 4079 | HVF | 3.00 KM |
| Johnston (Pembs) | 4081 | JOH | 4.20 KM |
Nearby Listings
| Address | Price | Type | Score | Distance |
|---|---|---|---|---|
| Plot 2 Brooklands Park, Haverfordwest, Pembrokeshire, SA61 | £ 425,000 | BUY | 6 / 10 | 0.00 KM |
| Plot 3 Brooklands Park, Haverfordwest, Pembrokeshire, SA61 | £ 425,000 | BUY | 6 / 10 | 0.00 KM |
| Plot 1 Brooklands Park, Haverfordwest, Pembrokeshire, SA61 | £ 450,000 | BUY | 6 / 10 | 0.00 KM |
| Brooklands Park, Haverfordwest, Pembrokeshire, SA61 | £ 530,000 | BUY | 7 / 10 | 0.06 KM |
| Tasker Way, Haverfordwest | £ 190,000 | BUY | 7 / 10 | 0.10 KM |
Nearby Properties
| Address | Price | Distance |
|---|---|---|
| Claremont House | £ 240,000 | 0.11 KM |
| 84 Scarrowscant Lane | £ 87,500 | 0.11 KM |
| 98a Scarrowscant Lane | £ 135,000 | 0.11 KM |
| 100 Scarrowscant Lane | £ 260,000 | 0.12 KM |
| 3 Nether Edge Drive | £ 400,000 | 0.16 KM |