Romney Road, Allington, Maidstone
By Foundation Estate Agents
£ 445,000
Reviews
3 out of 5 stars
Foundation Estate Agents says ..
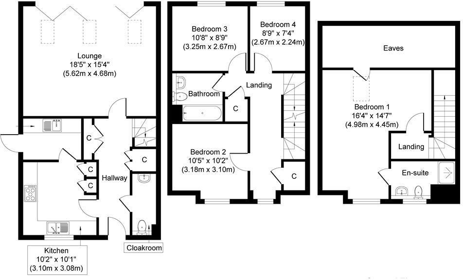
A striking, contemporary end-of-terrace home arranged over three floors, offering almost 1,500 sq. ft. of beautifully enhanced living space and a desirable south-facing garden. The current owners attention to detail and flair for interior design are evident throughout this stunning family h (cont.)
Property Oracle says ..
This end-of-terrace property in Allington, Maidstone, offers a blend of modern living and convenience. The house is in excellent condition, featuring a contemporary kitchen and well-appointed bathrooms. The presence of four bedrooms and two bathrooms makes it suitable for families. The garden, complete with a decked area and shed, provides ample outdoor space. Its location is advantageous, with proximity to schools and transportation links. The price appears to be in line with the market, making it an attractive option for potential buyers.
Therefore, we give this property 7 / 10. *Disclaimer: This is our option and does constitute a recommendation or financial advice. Do your own research. *
- Price
- 8
- Condition
- 9
- Location
- 7
- Land
- 7
- Bedrooms
- 4
- Bathrooms
- 2
- Sqft (est)
- 888.02
The heatmap indicates the level of crime in the area. The color of the heatmap indicates the crime severity and recency.
Metrics Year-on-Year
- Average area value
- 444,370.00 £Decreased by 0.41 %
- Est sale value
- 485,746.94 £Increased by 35.06 %
- Average area rental value
- 1,706.00 £/moIncreased by 21.86 %
- Est letting value
- 1,776.04 £/moIncreased by 100.00 %
- Est rental Yield
- 4.61 %Increased by 22.61 %
- Crime Rate
- 3.00 %Unchanged by 0.00 %
Agent Activity
Foundation Estate Agents created the listing.
Nearby Schools
| Name | Type | Ofsted | Distance |
|---|---|---|---|
| Allington Primary School | Academy Converter | 0.40 KM | |
| Palace Wood Primary School | Community School | Good | 0.50 KM |
| St Francis' Catholic Primary School, Maidstone | Voluntary Aided School | Good | 1.48 KM |
| St Simon Stock Catholic School | Academy Converter | Good | 1.59 KM |
| West Borough Children'S Centre | Children's Centre | 1.92 KM |
Images
Nearby Streets
| Name | Average Price | Average Sqft | Distance |
|---|---|---|---|
| Nursery Avenue | £ 583,333 | 0 | 0.00 KM |
| Woodpecker Close | £ 0 | 0 | 0.00 KM |
| Wyatt Road | £ 0 | 0 | 0.00 KM |
| Beaver Road | £ 600,000 | 0 | 0.00 KM |
| Dawsum Close | £ 0 | 0 | 0.00 KM |
Nearby Transport
| Name | NLC | TLC | Distance |
|---|---|---|---|
| Barming | 5133 | BMG | 1.42 KM |
| Maidstone Barracks | 5237 | MDB | 2.66 KM |
| Maidstone West | 5222 | MDW | 3.19 KM |
| Aylesford | 5162 | AYL | 3.29 KM |
| Maidstone East | 5115 | MDE | 3.40 KM |
Nearby Listings
| Address | Price | Type | Score | Distance |
|---|---|---|---|---|
| Romney Road, Allington, Maidstone | £ 445,000 | BUY | 7 / 10 | 0.00 KM |
| Nursery Avenue, Allington, Maidstone ME16 | £ 465,000 | BUY | 7 / 10 | 0.15 KM |
| Lamberhurst Road, Maidstone, Kent | £ 550,000 | BUY | 6 / 10 | 0.20 KM |
| Lamberhurst Road, Maidstone, Kent | £ 363,500 | BUY | 7 / 10 | 0.20 KM |
| London Road, Maidstone | £ 550,000 | BUY | 6 / 10 | 0.20 KM |
Nearby Properties
| Address | Price | Distance |
|---|---|---|
| 1a Trenton Close | £ 295,000 | 0.07 KM |
| 6 Trenton Close | £ 405,000 | 0.07 KM |
| 5 Trenton Close | £ 270,000 | 0.07 KM |
| 16 Trenton Close | £ 380,000 | 0.07 KM |
| 30 Allington Way | £ 316,500 | 0.13 KM |