Westlecot House, Westlecot Road, Swindon, SN1
By The House Group
£ 400,000
Reviews
3 out of 5 stars
The House Group says ..
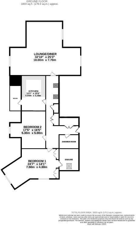
A large and spacious top floor apartment for sale with NO ONWARD CHAIN located within the desirable Westlecot House, just off Westlecot Road in the heart of Swindon's popular Old Town. The gated development benefits from private underground parking, plus visitors spaces and well main...
Property Oracle says ..
Westlecot House is a two-bedroom apartment located in Old Town, Swindon. The property benefits from communal gardens and a balcony. The apartment appears to be in generally good condition, with modern fixtures in the kitchen and bathrooms. The location is convenient, with schools and transportation links nearby. The price is slightly above the average for the area, but this may be justified by the property’s features and location.
Therefore, we give this property 6 / 10. *Disclaimer: This is our option and does constitute a recommendation or financial advice. Do your own research. *
- Price
- 6
- Condition
- 7
- Location
- 7
- Land
- 6
- Bedrooms
- 2
- Bathrooms
- 2
The heatmap indicates the level of crime in the area. The color of the heatmap indicates the crime severity and recency.
Metrics Year-on-Year
- Average area value
- 364,023.00 £Increased by 8.60 %
- Average area rental value
- 1,137.00 £/moDecreased by 2.15 %
- Est rental Yield
- 3.75 %Decreased by 9.86 %
- Crime Rate
- 0.00 %
Agent Activity
The House Group created the listing.
Nearby Schools
| Name | Type | Ofsted | Distance |
|---|---|---|---|
| The Commonweal School | Academy Converter | Good | 0.36 KM |
| Lethbridge Primary School | Academy Converter | Good | 0.72 KM |
| East Wichel Primary School & Nursery | Community School | Good | 0.89 KM |
| King William Street Church Of England Primary School | Academy Converter | Good | 0.96 KM |
| The Croft Primary School | Academy Sponsor Led | Outstanding | 1.03 KM |
Images
Nearby Streets
| Name | Average Price | Average Sqft | Distance |
|---|---|---|---|
| Okus Road | £ 385,000 | 0 | 0.00 KM |
| Blackberry Alley | £ 240,000 | 0 | 0.00 KM |
| Bow Court | £ 0 | 0 | 0.00 KM |
| Queensbury House | £ 140,000 | 0 | 0.00 KM |
| The Mews | £ 0 | 0 | 0.00 KM |
Nearby Transport
| Name | NLC | TLC | Distance |
|---|---|---|---|
| Swindon (Wilts) | 3333 | SWI | 2.04 KM |
Nearby Listings
| Address | Price | Type | Score | Distance |
|---|---|---|---|---|
| Westlecot House, Westlecot Road, Swindon, SN1 | £ 400,000 | BUY | 6 / 10 | 0.00 KM |
| Westlecot Road, Westlecot House Westlecot Road, SN1 | £ 350,000 | BUY | 6 / 10 | 0.01 KM |
| Westlecot Road, Old Town, Swindon, Wiltshire, SN1 | £ 420,000 | BUY | 6 / 10 | 0.01 KM |
| Westlecot House, Westlecot Road, Swindon, SN1 | £ 450,000 | BUY | 7 / 10 | 0.03 KM |
| Westlecot Road, Old Town, Swindon | £ 700,000 | BUY | 6 / 10 | 0.06 KM |
Nearby Properties
| Address | Price | Distance |
|---|---|---|
| 90 Goddard Avenue | £ 240,000 | 0.12 KM |
| 85 Goddard Avenue | £ 247,500 | 0.12 KM |
| 95 Goddard Avenue | £ 380,000 | 0.12 KM |
| 87 Goddard Avenue | £ 445,000 | 0.12 KM |
| 91 Goddard Avenue | £ 387,500 | 0.12 KM |