Vicarage Lane, Abersychan, Pontypool
By Peter Alan
£ 585,000
Peter Alan says ..
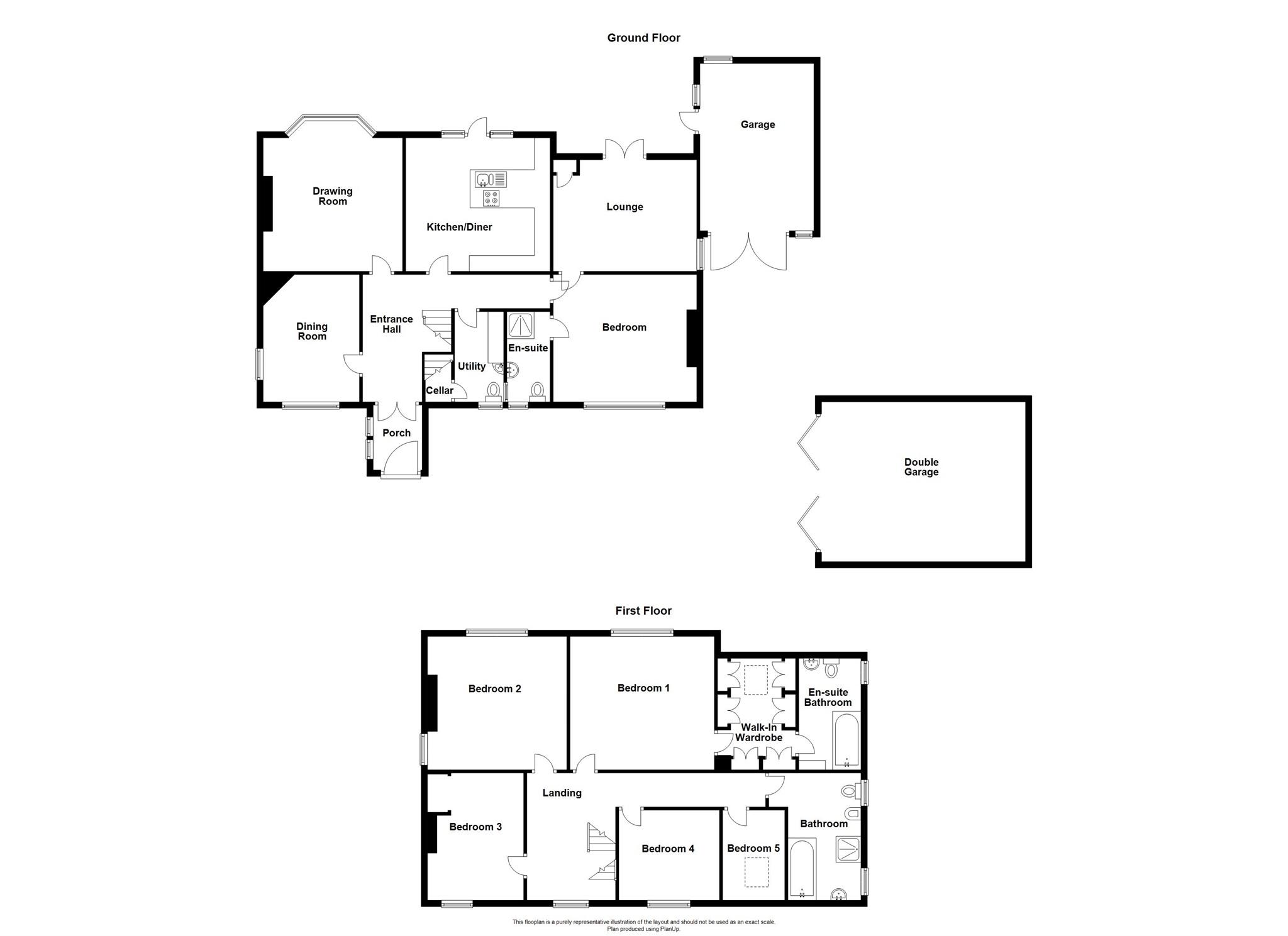
<br /><b>SUMMARY</b><br />Elegant detached period residence - former vicarage dating to 1856 is set within a 1/3rd of an acre. Boasting over 3,000 square footage of living space to include a granny annex. Benefiting from 2 large garages with exceptional off road parking. 5 bedrooms, 2 receptions, 3 bathrooms & annex.<br /><br /><br /><b>DESCRIPTION</b><br />Set within 1/3rd of an acre of grounds is this elegant former vicarage dating back to 1856. This imposing detached period residence retains the charm and character of a bygone era and offers a spacious and versatile home. Boasting over 3,000 square footage of living space over 2 floors. Benefiting from 2 large garages plus a large lawned enclosed rear garden and exceptional off road parking to the front. Includes a granny annex to the ground floor. Briefly comprising an entrance porch with original heavy pine front door, spacious entrance hall, elegant drawing room, formal dining room, spacious fitted kitchen/diner, utility room with wc and access via stone stairwell to a cellar with light & power & 7' in height. The annex comprises a spacious lounge with French doors onto a patio, 1 large double bedroom with a stylish en-suite shower room/wc. To the first floor there are 5 bedrooms plus spacious family bathroom/wc, the master has a walk in dressing room leading into a large en-suite shower room/wc. Complimented with gas central heating - 2 systems (annex - self contained) & double glazed windows - sealed unit. The delightful large rear lawned garden has outbuildings and established shrubs and trees timber. Viewing highly recommended<br /><br /><b>Porch</b> <br />Enter via the original heavy pine wide door still retaining original hardware including original locks into the entrance porch, vaulted ceiling plus 2 windows to side, quarry tiled flooring.<br /><br /><b>Entrance Hall</b> <br />Spacious and welcoming entrance hall allowing access to all rooms including the annex, original carved heavy pine staircase leading to a galleried landing, dado rail plus coving to the ceiling.<br /><br /><b>Drawing Room</b> 17' 1" into bay x 14' 7" max ( 5.21m into bay x 4.45m max )<br />Elegant and spacious main living room, with a deep bay window to the rear overlooking the rear garden, TV point, magnificent mahogany fireplace with over mantle mirror and inset cast iron log burner, dado rail plus picture rail & coving to the ceiling with ceiling rose.<br /><br /><b>Dining Room</b> 13' 5" x 10' ( 4.09m x 3.05m )<br />Spacious formal dining room, window to front with original timber shutters plus window to side, picture rail plus coving to the ceiling with ceiling rose.<br /><br /><b>Kitchen Diner</b> 15' x 13' 11" ( 4.57m x 4.24m )<br />Sizeable room and extensively fitted with a range of wall and base units with round edge worktop and inset china one & half bowl sink & drainer with mixer tap and English Delf tiled splash backs, plumbed for dishwasher and space for fridge & freezer, freestanding gas cooker, exposed painted floor boards, glazed door with glazed side panels lead to the garden, telephone point, picture rail.<br /><br /><b>Utility Cloakroom</b> 9' 5" x 5' 1" ( 2.87m x 1.55m )<br />With fitted base cupboards and round edge worktop, plumbed for washing machine with space for other white goods, fitted wall mounted corner wash hand basin and close coupled wc, window to side, door leading down to the cellar.<br /><br /><b>Basement Cellar</b> 12' 10" x 9' 10" ( 3.91m x 3.00m )<br />Stone steps lead down to a cellar with plenty of head height, light & power supply, floor mounted gas boiler, original flagstone paved floor and original cold slab.<br /><br /><b>Annexe</b> <br /><br /><b>Lounge</b> 14' 7" x 11' 9" ( 4.45m x 3.58m )<br />Spacious living room, upvc double glazed window to side plus hardwood French doors allowing access onto small courtyard patio area and garden, cupboard to one corner housing a combination boiler serving the annex, TV point, period fireplace.<br /><br /><b>Bedroom</b> 15' x 13' 5" ( 4.57m x 4.09m )<br />Large double bedroom, window to front.<br /><br /><b>En Suite Shower Room</b> <br />Fitted with a modern white suite comprising a shower cubicle with glass screen, pedestal wash hand basin and close coupled wc, tiling to all walls and tiled floor, heated towel rail, window to side.<br /><br /><b>First Floor Landing</b> <br />Spacious galleried landing allowing access to all rooms, window to rear.<br /><br /><b>Master Bedroom</b> 15' 6" max x 13' 10" ( 4.72m max x 4.22m )<br />Impressive master suite with bedroom, dressing room and en-suite, Commencing a large double bedroom, window to rear overlooking the garden, period fireplace.<br /><br /><b>Walk In Dressing Room</b> 9' 11" to robes x 8' 2" max ( 3.02m to robes x 2.49m max )<br />With an extensive range of fitted wardrobes on 3 walls plus room for dressing table, velux double glazed roof window.<br /><br /><b>En Suite Shower Room</b> <br />Spacious room fitted with a modern white suite comprising a generous shower cubicle, pedestal wash hand basin and close coupled wc, tiling to all walls, built in vanity tall cupboard with drawers, window to side.<br /><br /><b>Bedroom 2</b> 14' 6" max x 13' 10" ( 4.42m max x 4.22m )<br />Large double bedroom, windows to rear overlooking the garden and to the side, original period fireplace.<br /><br /><b>Bedroom 3</b> 13' 6" x 10' 1" max ( 4.11m x 3.07m max )<br />Double bedroom currently used as a home office, original period fireplace, window to front, beams to the ceiling, access to the loft.<br /><br /><b>Bedroom 4</b> 10' 7" x 9' 6" ( 3.23m x 2.90m )<br />Double bedroom, window to front.<br /><br /><b>Bedroom 5</b> 9' 7" x 6' 6" ( 2.92m x 1.98m )<br />Velux double glazed roof window.<br /><br /><b>Bathroom</b> 13' 6" x 7' 9" ( 4.11m x 2.36m )<br />Impressively spacious bathroom and fitted with a 5 piece suite comprising a panel bath, shower cubicle - electric shower, pedestal wash hand basin, close coupled wc and bidet, 2 windows to rear, part tongue & groove clad walls and ceiling, access to the rear loft, shaver point.<br /><br /><b>Attached Garage</b> 12' 6" x 11' 11" ( 3.81m x 3.63m )<br />Attached garage used currently as a log store, accessed via twin doors, window to rear plus door to the rear garden.<br /><br /><b>Double Garage</b> 21' 4" x 16' 8" ( 6.50m x 5.08m )<br />Detached large double garage, twin bi-fold doors allow access, light & power supply, storage within the roof area.<br /><br /><b>Grounds</b> <br />Deep and wide frontage entered by twin wrought iron gates, stone boundary wall, allows ample off road parking potentially for over 10 cars, exterior lighting, small lawn with established shrub borders and inner block paved courtyard area.<br />At the rear an impressively large lawned garden with mature trees and shrub borders, stone boundary wall, block paved patio area, outbuildings include 2 garden sheds.<br /><br /><br /><br />1. MONEY LAUNDERING REGULATIONS: Intending purchasers will be asked to produce identification documentation at a later stage and we would ask for your co-operation in order that there will be no delay in agreeing the sale. <br />2. General: While we endeavour to make our sales particulars fair, accurate and reliable, they are only a general guide to the property and, accordingly, if there is any point which is of particular importance to you, please contact the office and we will be pleased to check the position for you, especially if you are contemplating travelling some distance to view the property. <br />3. The measurements indicated are supplied for guidance only and as such must be considered incorrect. <br />4. Services: Please note we have not tested the services or any of the equipment or appliances in this property, accordingly we strongly advise prospective buyers to commission their own survey or service reports before finalising their offer to purchase. <br />5. THESE PARTICULARS ARE ISSUED IN GOOD FAITH BUT DO NOT CONSTITUTE REPRESENTATIONS OF FACT OR FORM PART OF ANY OFFER OR CONTRACT. THE MATTERS REFERRED TO IN THESE PARTICULARS SHOULD BE INDEPENDENTLY VERIFIED BY PROSPECTIVE BUYERS OR TENANTS. NEITHER PETER ALAN NOR ANY OF ITS EMPLOYEES OR AGENTS HAS ANY AUTHORITY TO MAKE OR GIVE ANY REPRESENTATION OR WARRANTY WHATEVER IN RELATION TO THIS PROPERTY.
- Bedrooms
- 6
- Bathrooms
- 3
The heatmap indicates the level of crime in the area. The color of the heatmap indicates the crime severity and recency.
Metrics Year-on-Year
- Average area value
- 283,000.00 £Decreased by 21.70 %
- Average area rental value
- 1,134.00 £/moIncreased by 19.24 %
- Est rental Yield
- 4.81 %Increased by 52.22 %
- Crime Rate
- 12.00 %Unchanged by 0.00 %
Agent Activity
Peter Alan created the listing.
Nearby Schools
| Name | Type | Ofsted | Distance |
|---|---|---|---|
| Abersychan Comprehensive School | Welsh Establishment | 0.54 KM | |
| Garnteg Primary School | Welsh Establishment | 0.97 KM | |
| Ysgol Bryn Onnen | Welsh Establishment | 1.64 KM | |
| Cwmffrwdoer Primary School | Welsh Establishment | 2.38 KM | |
| Ysgol Gyfun Gwynllyw | Welsh Establishment | 3.17 KM |
Images
Nearby Streets
| Name | Average Price | Average Sqft | Distance |
|---|---|---|---|
| Vicarage Lane | £ 220,000 | 0 | 0.00 KM |
| Victoria Road | £ 170,000 | 0 | 0.00 KM |
| Waterloo Road | £ 192,121 | 0 | 0.00 KM |
| Factory Lane | £ 0 | 0 | 0.00 KM |
| Brynteg | £ 0 | 0 | 0.00 KM |
Nearby Transport
| Name | NLC | TLC | Distance |
|---|---|---|---|
| Pontypool And New Inn | 3744 | PPL | 6.30 KM |
| Llanhilleth | 9916 | LTH | 8.99 KM |
| Cwmbran | 3738 | CWM | 9.65 KM |
Nearby Listings
| Address | Price | Type | Score | Distance |
|---|---|---|---|---|
| Vicarage Lane, Abersychan, Pontypool | £ 585,000 | BUY | Unknown | 0.00 KM |
| Victoria Road, Pontypool, NP4 | £ 525,000 | BUY | 7 / 10 | 0.04 KM |
| Victoria Road, Abersychan, NP4 | £ 700,000 | BUY | Unknown | 0.05 KM |
| Cwmavon Road, Abersychan, Pontypool | £ 220,000 | BUY | 5 / 10 | 0.14 KM |
| Greenwood Road, Abersychan, Pontypool | £ 170,000 | BUY | 5 / 10 | 0.14 KM |
Nearby Properties
| Address | Price | Distance |
|---|---|---|
| Langville | £ 136,000 | 0.00 KM |
| Amblelea | £ 239,000 | 0.00 KM |
| Cwmavon Lodge | £ 125,250 | 0.00 KM |
| Hillside | £ 284,950 | 0.04 KM |
| Ivydene | £ 151,950 | 0.04 KM |