Whitrout Road, King Oswy, Hartlepool
By Robinsons
£ 120,000
Reviews
3 out of 5 stars
Robinsons says ..
A stunning two bedroom end terraced property offering significantly enhanced and upgraded accommodation throughout. The home has undergone significant refurbishment both inside and out, with careful consideration taken to offer modern and contemporary accommodation which features a beautiful kit...
Property Oracle says ..
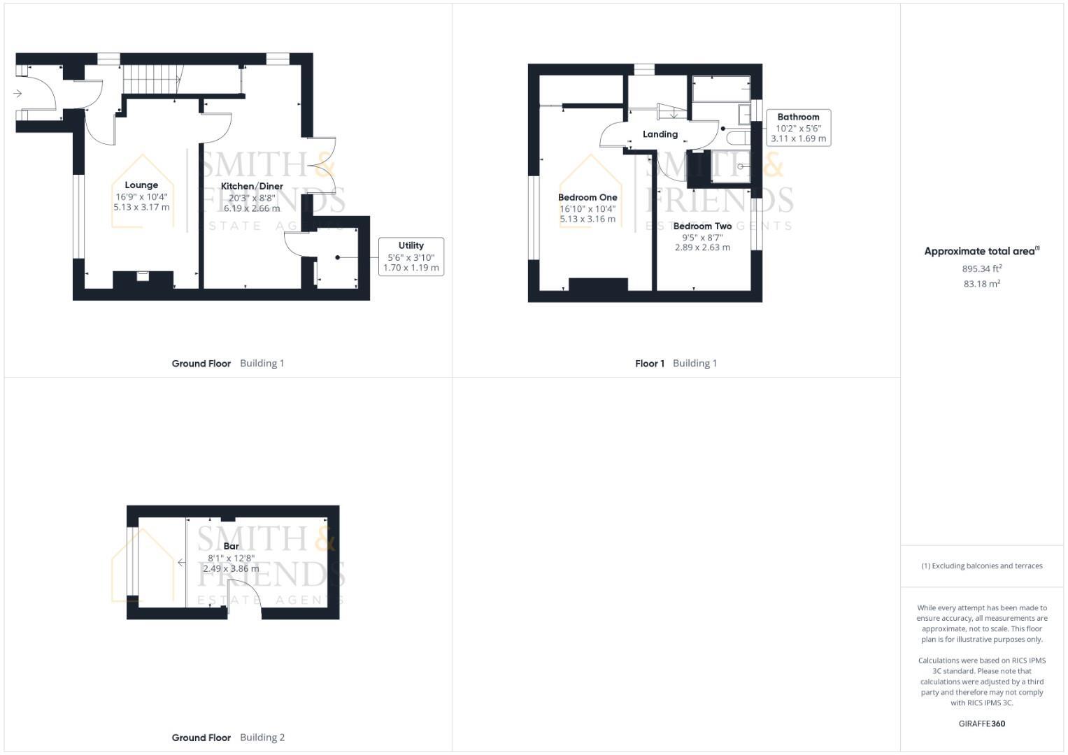
This property is a 2 bedroom, 1 bathroom house located in King Oswy, Hartlepool. The property has been recently renovated to a high standard, as seen in the photos. It benefits from a good-sized garden, which is relatively rare for properties in this area. While the list price of £120,000 is below the average price for the area (£253,159), it is important to consider that the average price per square foot is £288, and this property is smaller than average (787.92 sqft compared to 879 sqft). Considering the high standard of renovation, the presence of a garden, and its location near schools and transportation, the list price appears to be reasonable. However, potential buyers should conduct their own due diligence to ensure the property meets their needs and expectations.
Therefore, we give this property 7 / 10. *Disclaimer: This is our option and does constitute a recommendation or financial advice. Do your own research. *
- Price
- 8
- Condition
- 9
- Location
- 7
- Land
- 7
- Bedrooms
- 2
- Bathrooms
- 1
- Sqft (est)
- 787.92
- Lot (est)
- 895.34
The heatmap indicates the level of crime in the area. The color of the heatmap indicates the crime severity and recency.
Metrics Year-on-Year
- Average area value
- 926,998.00 £Increased by 247.85 %
- Est sale value
- 78,792.00 £Decreased by 67.53 %
- Average area rental value
- 1,034.00 £/moIncreased by 10.47 %
- Est letting value
- 0.00 £/moDecreased by 100.00 %
- Est rental Yield
- 1.34 %Decreased by 68.17 %
- Crime Rate
- 14.00 %Unchanged by 0.00 %
Agent Activity
Robinsons marked this listing as sold.
Robinsons created the listing.
Nearby Schools
| Name | Type | Ofsted | Distance |
|---|---|---|---|
| St Hild'S Church Of England School | Academy Sponsor Led | 0.41 KM | |
| St John Vianney Catholic Primary School, Hartlepool | Academy Converter | 0.60 KM | |
| St John Vianney Rc Primary School And Children'S Centre | Children's Centre Linked Site | 0.60 KM | |
| Barnard Grove Primary School | Academy Converter | 0.89 KM | |
| West View Primary School | Academy Converter | Good | 1.26 KM |
Images
Nearby Streets
| Name | Average Price | Average Sqft | Distance |
|---|---|---|---|
| Joyce Road | £ 0 | 0 | 0.00 KM |
| Baker Close | £ 0 | 0 | 0.00 KM |
| Waterlily Court | £ 0 | 0 | 0.00 KM |
| Hart Road | £ 125,000 | 0 | 0.00 KM |
| Honeysuckle Close | £ 305,000 | 0 | 0.00 KM |
Nearby Transport
| Name | NLC | TLC | Distance |
|---|---|---|---|
| Hartlepool | 8009 | HPL | 4.21 KM |
| Seaton Carew | 8007 | SEC | 7.13 KM |
Nearby Listings
| Address | Price | Type | Score | Distance |
|---|---|---|---|---|
| Whitrout Road, King Oswy | £ 50,000 | BUY | 5 / 10 | 0.05 KM |
| Pert Road, Hartlepool, Durham, TS24 9PP | £ 70,000 | BUY | 6 / 10 | 0.06 KM |
| Dobson Place, Hartlepool | £ 130,000 | BUY | 7 / 10 | 0.18 KM |
| Dobson Place, Hartlepool | £ 130,000 | BUY | Unknown | 0.18 KM |
| Joyce Road, Hartlepool | £ 80,000 | BUY | 5 / 10 | 0.19 KM |
Nearby Properties
| Address | Price | Distance |
|---|---|---|
| 2 Whitrout Road | £ 130,000 | 0.01 KM |
| 13 Whitrout Road | £ 55,000 | 0.01 KM |
| 20 Whitrout Road | £ 92,500 | 0.01 KM |
| 58 Whitrout Road | £ 96,000 | 0.01 KM |
| 44 Whitrout Road | £ 85,000 | 0.01 KM |