Garth Twentytwo, Killingworth NE12
By Alexander Hudson Estates
£ 140,000
Reviews
3 out of 5 stars
Alexander Hudson Estates says ..
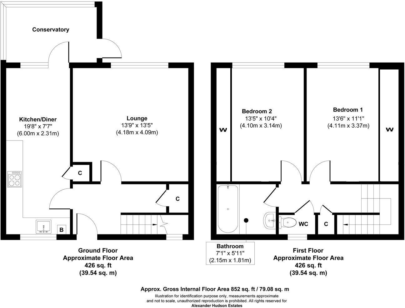
Alexander Hudson Estates introduces to market this well presented two-bedroom, terraced family home in the popular residential area of Killingworth, NE12. Bright and spacious throughout, the property briefly comprises of entrance hallway, living room and a modern kitchen/ dining room. In...
Property Oracle says ..
This property is a 2 bedroom, 1 bathroom terraced house located in Killingworth, North Tyneside. The property benefits from being close to local schools, including Amberley Primary School (0.44km), Killingworth Children’s Centre (0.55km), George Stephenson High School (0.83km), Percy Hedley School (1.00km), and Forest Hall Primary School (1.31km). Transport links are also convenient, with several train stations within a reasonable distance. The property itself appears to be in good condition, with a modern kitchen and bathroom. There is a small, enclosed rear garden. While the average house price in the area is significantly higher, the price of this property seems reasonable considering its size and features. However, it is important to note that the plot size is 0.00 sqft.
Therefore, we give this property 6 / 10. *Disclaimer: This is our option and does constitute a recommendation or financial advice. Do your own research. *
- Price
- 7
- Condition
- 8
- Location
- 7
- Land
- 3
- Bedrooms
- 2
- Bathrooms
- 1
- Sqft (est)
- 852.00
The heatmap indicates the level of crime in the area. The color of the heatmap indicates the crime severity and recency.
Metrics Year-on-Year
- Average area value
- 911,990.00 £Increased by 52.54 %
- Est sale value
- 407,256.00 £Decreased by 4.59 %
- Average area rental value
- 1,200.00 £/moDecreased by 18.81 %
- Est letting value
- 0.00 £/moDecreased by 100.00 %
- Est rental Yield
- 1.58 %Decreased by 46.80 %
- Crime Rate
- 9.00 %Unchanged by 0.00 %
Agent Activity
Alexander Hudson Estates created the listing.
Nearby Schools
| Name | Type | Ofsted | Distance |
|---|---|---|---|
| Amberley Primary School | Foundation School | Good | 0.44 KM |
| Killingworth Children'S Centre | Children's Centre Linked Site | 0.55 KM | |
| George Stephenson High School | Foundation School | Good | 0.83 KM |
| Percy Hedley School | Non-maintained Special School | Outstanding | 1.00 KM |
| Forest Hall Primary School | Foundation School | Good | 1.31 KM |
Images
Nearby Streets
| Name | Average Price | Average Sqft | Distance |
|---|---|---|---|
| The Croft | £ 0 | 0 | 0.00 KM |
| Green Lane | £ 380,000 | 0 | 0.00 KM |
| The Spinney | £ 0 | 0 | 0.00 KM |
| Granville Avenue | £ 0 | 0 | 0.00 KM |
| Hazelwood | £ 0 | 0 | 0.00 KM |
Nearby Transport
| Name | NLC | TLC | Distance |
|---|---|---|---|
| Cramlington | 7579 | CRM | 7.17 KM |
| Manors | 7603 | MAS | 8.59 KM |
| Heworth | 7766 | HEW | 9.40 KM |
| Newcastle | 7728 | NCL | 9.82 KM |
Nearby Listings
| Address | Price | Type | Score | Distance |
|---|---|---|---|---|
| Garth Twentytwo, Killingworth NE12 | £ 140,000 | BUY | 6 / 10 | 0.00 KM |
| Garth Twentytwo, Killingworth, Newcastle upon Tyne, Tyne and Wear, NE12 6LG | £ 150,000 | BUY | Unknown | 0.04 KM |
| The Paddock, Garth Thirtytwo, Killingworth NE12 | £ 130,000 | BUY | 7 / 10 | 0.18 KM |
| Crumstone Court, Killingworth, North Tyneside, NE12 | £ 260,000 | BUY | Unknown | 0.21 KM |
| Crumstone Court, Garth Twentyone, NE12 | £ 240,000 | BUY | 7 / 10 | 0.21 KM |
Nearby Properties
| Address | Price | Distance |
|---|---|---|
| 100 Garth Twentytwo | £ 112,000 | 0.01 KM |
| 96 Garth Twentytwo | £ 95,500 | 0.01 KM |
| 98 Garth Twentytwo | £ 105,000 | 0.01 KM |
| 86 Garth Twentytwo | £ 80,000 | 0.01 KM |
| 70 Garth Twentytwo | £ 79,950 | 0.06 KM |